Rarität am Markt - Exklusiver Baugrund direkt in der 1. Reihe an der Alten Donau – freier, unverbaubarer Blick aufs Wasser - 1 Wohneinheit
Grundstück
- Baugrund Eigenheim,
1220
Wien
,
An der unteren Alten Donau
Beschreibung der Immobilie
Stellen Sie sich vor, Sie wachen jeden Tag mit freiem Blick über die Alte Donau auf – ohne Nachbarn davor, ohne verbaubare Sicht.
Dieses Grundstück ist eine der seltensten Lagen in ganz Wien.
Zum Verkauf steht ein außergewöhnlich seltenes Grundstück in echter Premiumlage direkt an der Alten Donau. Baugründe in 1. Reihe mit freiem, unverbaubarem Wasserblick gelangen so gut wie nie mehr auf den Markt – entsprechend hoch ist die Nachfrage. Jetzt heißt es: schnell handeln.
Grundstücksdaten
-
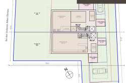
Grundstücksgröße: 309 m²
-
Bebauungsdichte: 25 %
-
Maximale Wohnnutzfläche: ca. 173 m² für eine Wohneinheit
-
Raumaufteilung: EG, OG und DG
-
Option: zusätzlicher Keller mit ca. 68 m² realisierbar
-
Ideal für: Bauträger, Investoren & exklusive Privatprojekte
Lage & Highlights
-
1. Reihe direkt am Wasser – unverbaubarer Blick auf die Alte Donau
-
Absolute Ruhelage bei gleichzeitig schneller Anbindung in die City
-
Hochwertige, gewachsene Nachbarschaftsbebauung
-
Wenige Gehminuten zu Badeplätzen, Gastronomie, Freizeitmöglichkeiten, Segel- & Bootsclubs
-
Öffentliche Verkehrsmittel in unmittelbarer Nähe
Besondere Chancen für Bauträger & Investoren
Das Grundstück bietet die Option, eine exklusive Wohneinheit zu errichten – perfekt für:
-
Luxus-Doppelhaushälfte
-
Ein eigenständiges Einfamilienhaus
-
Premium-Wohnen mit Wasserzugang
Die Nachfrage nach hochwertigen Immobilien an der Alten Donau ist dauerhaft hoch – ein Garant für Wertstabilität und attraktiven Wiederverkaufswert.
Warum dieses Grundstück eine absolute Rarität ist
-
Liegenschaften in dieser Lage sind extrem selten am Markt
-
Garantierter, unverbaubarer Wasserblick – ein unschätzbarer Mehrwert
-
Eine der gefragtesten Wohn- und Freizeitlagen Wiens
-
Optimal für architektonisch anspruchsvolle Projekte
-
Hervorragende Perspektiven für langfristige Wertsteigerung
Für Fragen oder weitere Informationen stehe ich Ihnen gerne telefonisch unter
+43 660 531 74 20 oder per E-Mail an zangger@decus.at zur Verfügung.
Hinweis gemäß Energieausweisvorlagegesetz: Ein Energieausweis wurde vom Eigentümer bzw. Verkäufer, nach unserer Aufklärung über die generell geltende Vorlagepflicht, sowie Aufforderung zu seiner Erstellung noch nicht vorgelegt. Daher gilt zumindest eine dem Alter und der Art des Gebäudes entsprechende Gesamtenergieeffizienz als vereinbart. Wir übernehmen keinerlei Gewähr oder Haftung für die tatsächliche Energieeffizienz der angebotenen Immobilie.
Wir weisen darauf hin, dass zwischen dem Vermittler und dem zu vermittelnden Dritten ein familiäres oder wirtschaftliches Naheverhältnis besteht.
Der Vermittler ist als Doppelmakler tätig.
DECUS Immobilien GmbH – Wir beleben Räume
Für weitere Informationen und Besichtigungen steht Ihnen gerne Herr Gerhard Zangger unter der Mobilnummer +43 660 531 74 20und per E-Mail unter zangger@decus.at persönlich zur Verfügung.
www.decus.at | office@decus.at
Wichtige Informationen
Bitte beachten Sie, dass per 13.06.2014 eine neue Richtlinie für Fernabsatz- und Auswärtsgeschäfte in Kraft getreten ist.
Ab 1.4.2024 entfallen die Grundbuchs- und Pfandrechtseintragungsgebühren vorübergehend für Eigenheime bis zu einer Bemessungsgrundlage von EUR 500.000,-. Voraussetzung ist das dringende Wohnbedürfnis, ausgenommen davon sind vererbte oder geschenkte Immobilien. Die Befreiung ist jedoch für den Einzelfall zu prüfen, DECUS Immobilien übernimmt hierzu keine Haftung.
Ab 01.07.2023 gilt das Erstauftraggeber-Prinzip bei Wohnungsmietverträgen, ausgenommen davon sind Dienst-/Natural-/Werkswohnungen. Wir dürfen gem. § 17 Maklergesetz darauf hinweisen, dass wir auf die Doppelmaklertätigkeit gem. § 5 Maklergesetz bei Wohnungsmietverträgen verzichten und nur noch einseitig tätig sind (bei den restlichen Vermittlungsarten nicht) und ein wirtschaftliches Naheverhältnis zu unseren Auftraggebern besteht.
Im Falle eines Abschlusses mit Ihnen oder einem von Ihnen namhaft gemachten Dritten bzw. bei beidseitiger Willensübereinstimmung beträgt unser Honorar (lt. Honorarverordnung für Immobilienmakler) 2 Bruttomonatsmieten (BMM) bei Dienst-/Natural-/Werkwohnungen sowie Suchaufträgen, 3 BMM bei Gewerbe-, PKW-, Keller- und Lagermietverträgen sowie bei Kaufobjekten 3 % des Kaufpreises, zuzüglich der gesetzlichen Umsatzsteuer.
Dieses Objekt wird Ihnen unverbindlich und freibleibend angeboten. Oben angeführte Angaben basieren auf Informationen und Unterlagen des Eigentümers und sind unsererseits ohne Gewähr.
Nähere Informationen sowie unsere AGBs und die Nebenkostenübersichtsblatt finden Sie auf unserer Homepage www.decus.at unter "Service" - "Rechtliches zum FAGG" sowie im Anhang der zugesendeten Objekt-Exposés!
Infrastruktur / Entfernungen
Gesundheit
Arzt <1.000m
Apotheke <1.000m
Klinik <2.000m
Krankenhaus <2.250m
Kinder & Schulen
Schule <750m
Kindergarten <1.000m
Universität <2.250m
Höhere Schule <3.250m
Nahversorgung
Supermarkt <750m
Bäckerei <1.000m
Einkaufszentrum <1.750m
Sonstige
Geldautomat <1.250m
Bank <1.250m
Post <1.250m
Polizei <1.250m
Verkehr
Bus <500m
U-Bahn <1.000m
Straßenbahn <1.500m
Bahnhof <1.000m
Autobahnanschluss <750m
Angaben Entfernung Luftlinie / Quelle: OpenStreetMap
Eckdaten
| Kaufpreis: | 870.000,00 € |
| Fläche: | 309,00 m² |
Basisdaten zur Immobilie
| Objektnr: | 1151691 |
| Art: | Grundstück - Baugrund Eigenheim |
| Land: | Österreich |
| Kaufpreis: | 870.000,00 € |
| Provision: | 3% des Kaufpreises zzgl. 20% USt. |
| Grundstücksfl.: | 309,00 m² |
Internet und TV
Information zur Internet und TV Versorgung hier
Ihre persönliche Beratung
Gerhard Zangger
DECUS Immobilien GmbH
zangger@decus.at
+43 660 531 74 20
+43 660 531 74 20
F +43 1 35 600 10
