| AB SOFORT | 6 ZIMMER | NEUWALDEGGER STRASSE | BÜRO | GROSSE TERRASSE | 1170
Büro / Praxis
,
1170
Wien
,
Neuwaldegger Straße
Lage der Immobilie
- Ruhige, grüne Wohnlage im 17. Bezirk (Neuwaldegg / Hernals) - Nähe zum Wienerwald – ideal für Spaziergänge, Joggen, Radfahren - Endstation Straßenbahn 43 in wenigen Minuten erreichbar (direkte Verbindung ins Zentrum) - Buslinie 43A als zusätzliche Anbindung - Neuwaldegger Bad in unmittelbarer Umgebung - Nahversorgung gut erreichbar: Supermärkte, Bäckereien, Gastronomie, Schul- und Kinderbetreuungseinrichtungen in der Nähe - Familienfreundliche, naturnahe Lage mit dennoch guter StadtanbindungBeschreibung der Immobilie
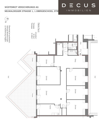
Saniertes 6-Zimmer Büro in ruhiger Lage!
Ein saniertes 6-Zimmer Büro mit neuer Küche und Bad gelangt in die Vermarktung. Das Büro hat 6 getrennt begehbare Zimmer sowie eine separate Küche.
Das Büro kann teilweise als Wohnung genutzt werden wenn gewünscht.
In den meisten Räumen ist eine Klimaanlage vorhanden.
Der Einbau eines weiteres Badezimmers ist nicht möglich.
Anlieferung vom Spar hofseitig (rechts unter großer Terrasse) - ein Schallgutachten ist vorhanden
Wir weisen darauf hin, dass zwischen dem Vermittler und dem zu vermittelnden Dritten ein familiäres oder wirtschaftliches Naheverhältnis besteht.
Der Vermittler ist als Doppelmakler tätig.
DECUS Immobilien GmbH – Wir beleben Räume
Für weitere Informationen und Besichtigungen steht Ihnen gerne Frau Jasmin Heida unter der Mobilnummer +43 660 850 78 07und per E-Mail unter heida@decus.at persönlich zur Verfügung.
www.decus.at | office@decus.at
Wichtige Informationen
Bitte beachten Sie, dass per 13.06.2014 eine neue Richtlinie für Fernabsatz- und Auswärtsgeschäfte in Kraft getreten ist.
Ab 1.4.2024 entfallen die Grundbuchs- und Pfandrechtseintragungsgebühren vorübergehend für Eigenheime bis zu einer Bemessungsgrundlage von EUR 500.000,-. Voraussetzung ist das dringende Wohnbedürfnis, ausgenommen davon sind vererbte oder geschenkte Immobilien. Die Befreiung ist jedoch für den Einzelfall zu prüfen, DECUS Immobilien übernimmt hierzu keine Haftung.
Ab 01.07.2023 gilt das Erstauftraggeber-Prinzip bei Wohnungsmietverträgen, ausgenommen davon sind Dienst-/Natural-/Werkswohnungen. Wir dürfen gem. § 17 Maklergesetz darauf hinweisen, dass wir auf die Doppelmaklertätigkeit gem. § 5 Maklergesetz bei Wohnungsmietverträgen verzichten und nur noch einseitig tätig sind (bei den restlichen Vermittlungsarten nicht) und ein wirtschaftliches Naheverhältnis zu unseren Auftraggebern besteht.
Im Falle eines Abschlusses mit Ihnen oder einem von Ihnen namhaft gemachten Dritten bzw. bei beidseitiger Willensübereinstimmung beträgt unser Honorar (lt. Honorarverordnung für Immobilienmakler) 2 Bruttomonatsmieten (BMM) bei Dienst-/Natural-/Werkwohnungen sowie Suchaufträgen, 3 BMM bei Gewerbe-, PKW-, Keller- und Lagermietverträgen sowie bei Kaufobjekten 3 % des Kaufpreises, zuzüglich der gesetzlichen Umsatzsteuer.
Dieses Objekt wird Ihnen unverbindlich und freibleibend angeboten. Oben angeführte Angaben basieren auf Informationen und Unterlagen des Eigentümers und sind unsererseits ohne Gewähr.
Nähere Informationen sowie unsere AGBs und die Nebenkostenübersichtsblatt finden Sie auf unserer Homepage www.decus.at unter "Service" - "Rechtliches zum FAGG" sowie im Anhang der zugesendeten Objekt-Exposés!
Infrastruktur / Entfernungen
Gesundheit
Arzt <750m
Apotheke <250m
Klinik <2.250m
Krankenhaus <1.500m
Kinder & Schulen
Schule <1.500m
Kindergarten <750m
Universität <1.750m
Höhere Schule <3.250m
Nahversorgung
Supermarkt <250m
Bäckerei <500m
Einkaufszentrum <2.250m
Sonstige
Geldautomat <2.250m
Bank <2.250m
Post <250m
Polizei <2.500m
Verkehr
Bus <250m
Straßenbahn <250m
U-Bahn <2.500m
Bahnhof <2.500m
Autobahnanschluss <5.500m
Angaben Entfernung Luftlinie / Quelle: OpenStreetMap
Eckdaten
| Objektnr: | 1151688 |
| Art: | Büro / Praxis |
| Land: | Österreich |
| Baujahr: | 1989 |
| Zustand: | Voll_saniert |
| Alter: | Neubau |
| Kaltmiete (netto): | 2.149,84 € |
| Kaltmiete: | 2.828,63 € |
| Betriebskosten: | 649,28 € |
| Heizkosten: | 245,53 € |
| MwSt Gesamt: | 614,84 € |
| Nutzfläche: | 215,00 m² |
| Zimmer: | 6 |
| Bäder: | 1 |
| WC: | 1 |
| Terrassen: | 2 |
| Heizwärmebedarf: | 141,60 kWh/m²a |
Ausstattung
Fliesen, Parkett, Gas, Einbauküche, Personenaufzug, Dusche, Garage, Tiefgarage
Internet und TV
Information zur Internet und TV Versorgung hier
Ihre persönliche Beratung
Jasmin Heida
DECUS Immobilien GmbH
E heida@decus.at
T +43 660 850 78 07
H +43 660 850 78 07
F +43 1 35 600 10
