Exklusives Dachgeschossbüro nahe dem Wiener Schwarzenbergplatz – Stil trifft Lage. | ZELLMANN IMMOBILIEN

Büro / Praxis , 1040 Wien , Gußhausstraße

Lage der Immobilie

Schwarzenbergplatz

Beschreibung der Immobilie

Repräsentatives Altbaubüro mit Stil, Charakter und Komfort

Diese außergewöhnliche Bürofläche im Dachgeschoss eines prachtvollen Gründerzeithauses vereint klassische Eleganz und moderne Funktionalität in einer der begehrtesten Innenstadtlagen Wiens.
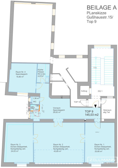
Mit rund 145 m² Nutzfläche und hohen Räumen mit Flügeltüren, edlen Parkettböden und stilvollen Details bietet dieses Objekt das perfekte Umfeld für Kanzleien, Agenturen, Beratungen oder kreative Unternehmen, die Wert auf ein repräsentatives Umfeld legen.

Highlights auf einen Blick

  • Unbefristeter Mietvertrag – langfristige Planungssicherheit

  • Erstklassige Lage – wenige Meter vom Schwarzenbergplatz und der Technischen Universität Wien

  • Helle und gleichmäßig belichtete Räume – durch ideale Nordausrichtung

  • Neue Miniküche aus Edelstahl mit Mikrowelle, Cerankochfeld, Geschirrspüler und Kühlschrank

  • Moderne EDV-Verkabelung (Patchschrank, Kabelkanäle Unterputz & Oberputz)

  • KlimaanlageGasetagenheizungLiftrepräsentativer Eingangsbereich

  • Absolut ruhige Lage trotz zentraler Innenstadtadresse

Raumaufteilung:

  • 4 Büro Räume: hell & freundlich

  • Küche: ca. 5 m²

  • 2 getrennte Toiletten

  • Großzügiger Empfangsbereich

Ausstattung & Zustand

  • Baujahr: 1896, Generalsanierung: 2004, letzte Sanierung: 2021

  • Bodenbeläge: hochwertiger Parkett & Feinsteinzeug

  • Bauweise: massive Altbaukonstruktion

  • Fahrstuhl: Personenaufzug vorhanden

  • Heizung: Gasetagenheizung

  • Klimatisierung: Split-Klimaanlage

  • Zustand: neuwertig, sofort beziehbar

Lage & Infrastruktur

Die Gußhausstraße liegt im Herzen des vierten Bezirks, nur wenige Schritte vom Schwarzenbergplatz, der TU Wien, dem Belvedere und der Innenstadt entfernt. Beste öffentliche Anbindung mit U1, U2, U4 KarlsplatzStraßenbahn D / 71 / 2, Buslinien und Bahnanschluss (Wien Hauptbahnhof). Nahversorgung, Gastronomie, Banken und Dienstleister befinden sich in unmittelbarer Umgebung.

Mietkonditionen

Miete netto € 2.400,00
Kaution 3 Bruttomieten
Provision erm. 2 Bruttomonatsmieten + 20 % USt
Beziehbar ab:        sofort
Mietdauer: unbefristet

Objektdetails

  • Nutzfläche gesamt: 145,19 m²

  • Etage: 1. Dachgeschoss

  • Zimmer: 4 + Nebenräume

  • WC / Bad: getrennt

  • Nutzungsart: Büro / Praxis / Atelier

  • Lagebewertung: sehr gut

  • Lärmpegel: absolute Ruhelage

Besonderheiten

Diese Bürofläche überzeugt durch ihre zeitlose Architektur, den repräsentativen Altbaucharme und den modernen Komfort.
Die Kombination aus Ruhe, Licht und Funktionalität macht sie zur idealen Adresse für anspruchsvolle Geschäftstätigkeit in der Wiener Innenstadt.

Unser Service – Vertrauen. Service. Qualität.

Bei ZELLMANN IMMOBILIEN legen wir größten Wert auf persönliche Beratung, Transparenz und Service auf höchstem Niveau. Jede Besichtigung ist unverbindlich und findet in entspannter Atmosphäre statt. Nach Vertragsabschluss übernehmen wir selbstverständlich sämtliche Formalitäten – von der Übergabedokumentation bis zur Abstimmung mit Hausverwaltung und Energieversorgern. Ihr Anliegen ist bei uns in den besten Händen – auch nach Vertragsabschluss.

Rechtliche Hinweise

Bitte kontrollieren Sie auch Ihren SPAM- bzw. WERBE-Ordner, da E-Mails manchmal dort landen können. Wir antworten in der Regel innerhalb weniger Stunden – auch am Wochenende. Teilen Sie uns gerne Ihre Telefonnummer mit, damit wir Sie zusätzlich per SMS über die Versendung des Exposés informieren können. Dieses Objekt wird unverbindlich und freibleibend angeboten. Alle Angaben basieren auf Informationen des Eigentümers sowie dem vorliegenden Gutachten und wurden mit größter Sorgfalt zusammengestellt. Für die Richtigkeit, Vollständigkeit und Aktualität dieser Angaben wird keine Gewähr übernommen. Änderungen, Irrtümer und Zwischenvermietung bleiben ausdrücklich vorbehalten. Maßangaben sind Circa-Angaben. Das Exposé stellt kein verbindliches Angebot dar. Bei erfolgreichem Abschlussfall fällt eine ermäßigte Provision in Höhe von 2 Bruttomonatsmieten zzgl. 20 % USt. an – gemäß Immobilienmaklerverordnung BGBI. 262 und 297/1996.

Noch nichts gefunden? Wir informieren Sie über geeignete Immobilienangebote noch vor allen anderen.
Legen Sie jetzt Ihren individuellen Suchagenten unter folgendem Link an. Wir schicken Ihnen passende Immobilien exklusiv vorab zu. 

-> Suchagent anlegen

Hinweis gemäß Energieausweisvorlagegesetz: Ein Energieausweis wurde vom Eigentümer bzw. Verkäufer, nach unserer Aufklärung über die generell geltende Vorlagepflicht, sowie Aufforderung zu seiner Erstellung noch nicht vorgelegt. Daher gilt zumindest eine dem Alter und der Art des Gebäudes entsprechende Gesamtenergieeffizienz als vereinbart. Wir übernehmen keinerlei Gewähr oder Haftung für die tatsächliche Energieeffizienz der angebotenen Immobilie.

Der Vermittler ist als Doppelmakler tätig.

ZELLMANN IMMOBILIEN GmbH
Vertrauen. Service. Qualität.

Infrastruktur / Entfernungen

Gesundheit
Arzt <250m
Apotheke <500m
Klinik <500m
Krankenhaus <1.500m

Kinder & Schulen
Schule <500m
Kindergarten <250m
Universität <250m
Höhere Schule <500m

Nahversorgung
Supermarkt <250m
Bäckerei <250m
Einkaufszentrum <750m

Sonstige
Geldautomat <250m
Bank <500m
Post <500m
Polizei <500m

Verkehr
Bus <250m
U-Bahn <250m
Straßenbahn <250m
Bahnhof <500m
Autobahnanschluss <3.000m

Angaben Entfernung Luftlinie / Quelle: OpenStreetMap

Eckdaten

Objektnr: 24299
Art: Büro / Praxis
Land: Österreich
Baujahr: 1896
Zustand: Neuwertig
Alter: Altbau
Kaltmiete (netto): 2.450,96 €
Kaltmiete: 2.824,92 €
Miete / m²: 16,88 €
Provision: 3 Bruttomonatsmieten zzgl. 20% USt.
Betriebskosten: 319,42 €
MwSt Gesamt: 554,79 €
Wohnfläche: 145,19 m²
Nutzfläche: 145,19 m²
Gesamtfläche: 145,19 m²
Bürofläche: 145,19 m²
Zimmer: 4
Bäder: 1
WC: 1
Immobilie merken Exposé

Ausstattung

Parkett, Fliesen, Gas, Etagenheizung, Personenaufzug, DV-Verkabelung, Kabel/Satelliten-TV


Internet und TV

Information zur Internet und TV Versorgung hier


Immobilie anfragen


Ihre persönliche Beratung

ZELLMANN IMMOBILIEN GmbH | Vertrauen. Service. Qualität.

Christian Zellmann

ZELLMANN IMMOBILIEN GmbH | Vertrauen. Service. Qualität.

E office@zellmann.at

H +43 699 15 15 22 00