Beinahe Erstbezug: Hervorragend angebundene Drei Zimmer Neubauwohnung

Wohnung - Etage, 1230 Wien

Beschreibung der Immobilie

Moderne großzügige 3 Zimmer Neubauwohnung bei Alt Erlaa – 6 Jahre jung mit Freifläche und jeder Menge "Goodies"!

Die Wohnung ist noch bis Juli 2028, der optionale Parkplatz bis Juli 2027 zu sehr gutem Mietzins befristet vermietet -
Gesamtrendite / Bruttoanfangrendite: attraktive ca. 3,8 %!

Nach Auslaufen der Mietverträge können Wohnung und Parkplatz entweder selbst bezogen / genutzt oder weitervermietet werden.


Nur wenige Schritte von der U6-Station Alt Erlaa entfernt befindet sich diese erst sechs Jahre alte großzügige Wohnanlage in Top-Zustand. Schon beim Betreten werden Sie von einem großzügigen, hellen Stiegenhaus empfangen – neben Postempfangsboxen natürlich auch praktische Kinderwagen- und Fahrradabstellräume. Auch digitale Info boards der Hausverwaltung und sogar ein Defibrillator sind vorhanden und sprechen für die durchdachte Planung.
Zudem sind umfangreiche Außengemeinschaftseinrichtungen wie Allgemeingärten und eine tolle große Familienterrasse vorhanden!

Ihre neue Wohnung im 3. Stock erreichen Sie über den modernen Lift durch eine hochwertige Sicherheitstür – das bringt ein Gefühl der Geborgenheit und Komforts.

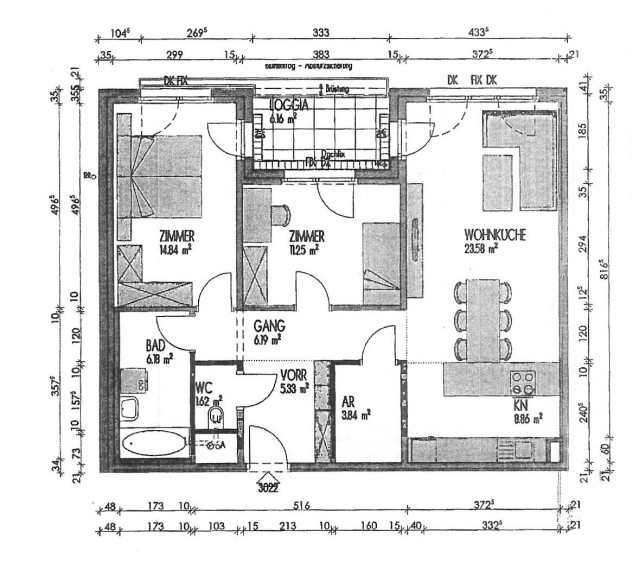
Der Vorraum bietet mehr als ausreichend Platz für Ihre Garderobe und führt Sie in den Flur, von dem aus alle Räume zentral begehbar sind. Ein erstes Highlight ist der riesige Abstellraum – ein Traum von Stauraum, der sogar als kleiner Arbeitsplatz dienen könnte.
Das Badezimmer mit einer großen Wanne lädt zum Entspannen ein und läßt sich ganz nach Ihren Wünschen gestalten.

Die über 32 m² große moderne Wohnküche ist der Dreh- und Angelpunkt der Wohnung. Mit einer neuwertigen Eckeinbauküche, Kühl-Gefrierkombination und viel Stauraum können Sie hier nach Herzenslust kochen und genießen. Genug Platz für einen großen Familientisch ist ebenfalls vorhanden.

Westseitig orientiert mit teilweisem Fernblick fühlen Sie sich auch im Wohnbereich sicher pudelwohl: hell und freundlich gestaltet unterstreichen der feine Eichenparkettboden und die hochwertigen Isolierfenster die Qualität dieser Wohnung.

Vom Wohnraum aus haben Sie– wie auch von den beiden Schlafzimmern - Zugang zu Ihrer geräumigen Loggiamit Pflanztrögen: Der perfekte Ort, um frische Luft zu tanken, den Frühstückskaffee zu genießen oder abends den Elektrogriller anzuwerfen.

Entdecken Sie Ihr neues Zuhause in Liesing, Ideal für alle, die hochwertige private Wohnatmosphäre mit Möglichkeiten einer lebendigen Gemeinschaft zu kombinieren.
Optional ist ein Tiefgaragenabstellplatz um 25.000,- Euro zusätzlich erwerbbar!

Für nähere Informationen, link zur virtuellen Tour der Wohnung sowie mehr Bildern kontaktieren Sie mich gerne unverbindlich!


---------------
Besichtigungen
Geführte Einzelbesichtigungen finden erstmals Mitte Dezember statt - verfügbare Termine stehen bis 10.12. fest - Sie erhalten dann automatisch die Möglichkeit zur bequemen online Buchung eines passenden Termins.

Alle Zusatzunterlagen zur Wohnung (Pläne, Abrechnungen, Protokoll Eigentümerversammlung, etc.) stellen wir bei Interesse auch gerne zur Verfügung!

Verkauf
Der angegebene Preis ist als Startpreis / Richtpreis zu verstehen und kann sich je nach Marktlage bzw. Gebotshöhe verändern.

Eine Angebotsabgabe ist nur ohne Finanzierungsvorbehalt und nach Besichtigung möglich.
Die Vertragserrichtung ist an Mag. Sabrina Oberlojer, Kanzlei am Kai, 1010 Wien, zu einem Honorar von 1% des Kaufpreises + USt + Barauslagen gebunden.
Da wir die Wohnung für den Eigentümer bereits einmal vermietet haben wiesen wir auf ein mögliches wirtschaftliches Naheverhältnbis hin.
Angaben gemäß gesetzlichem Erfordernis:
Heizwärmebedarf:21.9 kWh/(m²a)
Klasse Heizwärmebedarf:A
Faktor Gesamtenergieeffizienz:0.81
Klasse Faktor Gesamtenergieeffizienz:A

Haben Sie eine Immobilie zu vermieten oder zu verkaufen? Vereinbaren Sie noch heute Ihren kostenlosen Beratungstermin unter 01/714 83 70 oder unter www.remax-solutions.at.
Wir freuen uns von Ihnen zu hören!

Eckdaten

Objektnr: 1608_12381
Art: Wohnung - Etage
Land: Österreich
Baujahr: 2019
Zustand: Gepflegt
Alter: Neubau
Kaufpreis: 348.750,00
Provision: 3.00 %
Wohnfläche: 88,00 m²
Zimmer: 3
Bäder: 1
WC: 1
Stellplätze: 1
Keller: 4,00 m²
Heizwärmebedarf:  A  21,90 kWh/m²a
fGEE:  A  0,81
Immobilie merken Exposé

Ausstattung

Zentralheizung, Personenaufzug, Kabel/Satelliten-TV, Garage, Wasch/Trockenraum


Internet und TV

Information zur Internet und TV Versorgung hier


Immobilie anfragen


Ihre persönliche Beratung

RE/MAX Solutions in Wien 1

Roald Austraat

RE/MAX Solutions in Wien 1

E r.austraat@remax-solutions.at

H +43 699/ 17 17 11 11

F +43 1/714 83 70-11