Schöne und zugleich preiswerte Bürofläche in etabliertem Gewerbepark zu mieten - 5020 Salzburg

Büro / Praxis - Bürofläche, 5020 Salzburg

Lage der Immobilie

- direkte Anbindung ( 5 Minuten) an die A1 in Richtung Wien & München - zentrumsnah - 15 Gehminuten zum Salzburger Hauptbahnhof I direkte Anbindung an den Nah & Fernverkehr - 5 Gehminuten zu den Buslinien 120,121,140,911 - Lage in zweiter Reihe zur Vogelweiderstraße.

Beschreibung der Immobilie

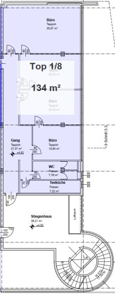
Der Gewerbepark Vogelweiderstraße wurde im Jahre 1996 errichtet und mit dem Salzburger Architekturpreis ausgezeichnet. Die Büroeinheit samt kleiner Lagereinheit befindet sich im 1. Obergeschoß und ist über ein helles Stiegenhaus mit Lift zugänglich. Aufgeteilt auf mehrere kleinere Büroräume sowie ein Großraumbüro, ein großes Besprechungszimmer, Empfang, Lager, Serverraum und Teeküche bietet die Fläche alles was Sie benötigen. Die in der Einheit integrierte Lagerfläche (welche aktuell als Meetingraum bzw. Sozialbereich genutzt wird) im Ausmaß von ca. 132 m² ist auch über den Lastenlift 2 und die entsprechende vorgelagerte Laderampe an der Gebäudenordseite aufgeschlossen. Durchgangsbreiten sind ausgelegt auf die Benutzung mittels Palettenhubwägen und dem Format Europalette. Eine WC-Einheit (getrennt in Damen- und Herren-WC) ergänzt das Raumangebot. Zusätzlich können außerdem Stellplätze in der TG angemietet werden.

Eckdaten

Objektnr: 505250152_17
Art: Büro / Praxis - Bürofläche
Land: Österreich
Baujahr: 1996
Gesamtmiete: 2.169,19
Kaltmiete (netto): 1.474,00 €
Kaltmiete: 1.807,66 €
Miete / m²: 11,00 €
Provision: 3 BMM
Betriebskosten: 333,66 €
Bürofläche: 134,00 m²
Heizwärmebedarf:  C  74,00 kWh/m²a
fGEE:  C  1,32
Immobilie merken Exposé

Ausstattung

Zentralheizung, Fernwärme, Lastenaufzug, Personenaufzug, DV-Verkabelung


Internet und TV

Information zur Internet und TV Versorgung hier


Immobilie anfragen


Ihre persönliche Beratung

ÖRAG Immobilien West GmbH

Rainer Kutschera

ÖRAG Immobilien Vermittlung GmbH

E rainer.kutschera@oerag.at

T 004366287766621

H 004366488710733