Geförderte, neuwertige 2 Zimmer Wohnung mit großem BALKON in Innenhoflage - Puchstraße 44 - Top 009

Wohnung - Etage, 8020 Graz

Lage der Immobilie

Das Objekt - Puchstraße 44 - liegt im fünften Bezirk von Graz, nahe der Mur. Sehr gut angebunden an den öffentlichen Verkehr, umgeben von Nahversorgern und nachgefragter Infrastruktur wie Kindergärten, Schulen und medizinischer Versorgung. Einkaufszentren wie der Citypark und das Center West sind nahe. Das Naherholungsgebiet, direkt an der Mur, ist ebenfalls fußläufig schnell zu erreichen.

Beschreibung der Immobilie

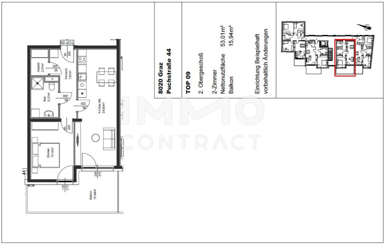
Diese ca. 53,01 m² große, GEFÖRDERTE Wohnung befindet sich in INNENHOFLAGE im 2.Obergeschoß des Hauses Puchstraße 44 in einem modernen, neuwertigen Wohnhaus. Mit der geräumigen Wohnküche und dem Schlafzimmer ist diese Wohnung ein perfektes Zuhause für Singles, Paare und Familien. Das helle, freundliche Ambiente und die moderne Ausstattung sorgt dafür, dass Sie sich hier mit Sicherheit wohl fühlen werden! RAUMAUFTEILUNG: Vorraum, offenen Wohnküche, Schlafzimmer, Bad, Toilette, Abstellraum, Kellerabteil, BALKON AUSSTATTUNG : Die Wohnungen sind mit hochwertigen Parkettböden in den Wohn- und Schlafbereichen sowie schönen Fliesenböden in den Bädern ausgestattet. Das Badezimmer ist unter anderem mit einer Dusche ausgestattet. Darüber hinaus verfügt die Wohnung über eine exklusive Einbauküche inklusive Elektrogeräten. Die Wohnung wird mittels Fernwärme beheizt. Das Warmwasser wird ebenfalls zentral mit Fernwärme aufbereitet. Dieser Wohnung ist darüber hinaus ein Kellerabteil zugeteilt. LAGE: zentrale, schöne Lage in der Puchstraße 44 HEIZUNG: die Heizkosten werden direkt vom Wärmelieferanten verrechnet und sind in den Betriebskosten nicht enthalten PARKEN: Es besteht die Möglichkeit, Parkplätze in der hauseigenen Tiefgarage anzumieten. Der Immobilienmakler erklärt, dass er - entgegen dem in der Immobilienwirtschaft üblichen Geschäftsgebrauch des Doppelmaklers - einseitig nur für den Vermieter tätig ist.

Eckdaten

Objektnr: 125331_37
Art: Wohnung - Etage
Land: Österreich
Baujahr: 2024
Zustand: Neuwertig
Gesamtmiete: 698,17
Kaltmiete (netto): 533,50 €
Kaltmiete: 586,85 €
Provision: Gemäß Erstauftraggeberprinzip bezahlt der Abgeber die Provision.
Betriebskosten: 101,20 €
Wohnfläche: 53,01 m²
Zimmer: 2
Bäder: 1
WC: 1
Balkone: 1
Keller: 3,00 m²
Heizwärmebedarf:  B  35,20 kWh/m²a
fGEE:  A  0,75
Immobilie merken Exposé

Ausstattung

Parkett, Fliesen, Zentralheizung, Einbauküche, Personenaufzug, Dusche


Internet und TV

Information zur Internet und TV Versorgung hier


Immobilie anfragen


Ihre persönliche Beratung

IMMOcontract Immobilien Vermittlung GmbH

Jan Sarkantyu

IMMOcontract Immobilien Vermittlung GmbH

E J.Sarkantyu@IMMOcontract.at

H 00436644231913

F 004331689080092781