23. Bezirk!!! Zur Vermietung gelangt eine schöne Wohnung mit Terrasse!! 360° Grad Besichtigung!! Nähe U6 PERFEKTASTRAẞE!!
Wohnung
,
1230
Wien
Lage der Immobilie
Perfektastraße, Siebenhirten, Kellerberg, SCSBeschreibung der Immobilie
Lassen Sie Sich von unserer 360° - 3D Besichtigung überzeugen - Von der Parkbank, vom Sofa oder auch vom Bett, gemütlich über Handy, Tablett, Computer oder Ihrem Internetfähigen Fernseher.
360 Grad Besichtigung Link: https://my.matterport.com/show/?m=WRiVVbFFafn
Zur Vermietung eine schöne sonnendurchflutete Wohnung in einer ruhig gelegene Lage im 23. Bezirk.
Die Wohnung verfügt über eine hochmoderne Küche, Parkett Böden und geflieste Bäder.
Heizkosten und Wasser Akonto Incl. MWST. 204,00€ werden nach Bedarf abgerechnet.
Die Lage dieses Neubaues ist einfach Ideal. Durch die direkte Nähe zur Ubahn, ist man in kurzer Zeit in ganz Wien unterwegs, der Kellerberg ist Fußläufig erreichbar und in wenigen Minuten kommt man zur SCS. Dies sind nur ein paar der vielen Vorteile, die Sie haben werden, wenn Sie hier wohnen.
Die Wohnung kann jederzeit, nach Vereinbarung, besichtigt werden.
KEINE ABLÖSE
KAUTION: 5 BMM €
PROVISION: KEINE
BEZIEHBAR: 15.01.26
Interessiert? Kontaktieren Sie uns für eine unverbindliche Besichtigung!
Der Immobilienmakler erklärt, dass er – entgegen dem in der Immobilienwirtschaft üblichen Geschäftsgebrauch des Doppelmaklers – einseitig nur für den Vermieter tätig ist.
Eckdaten
| Objektnr: | 55469 |
| Art: | Wohnung |
| Land: | Österreich |
| Baujahr: | 2020 |
| Alter: | Neubau |
| Gesamtmiete: | 1.425,20 € |
| Kaltmiete (netto): | 1.295,64 € |
| Kaltmiete: | 1.295,64 € |
| Provision: | Gemäß Erstauftraggeberprinzip bezahlt der Abgeber die Provision. |
| MwSt Gesamt: | 129,56 € |
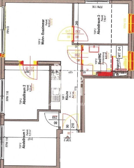
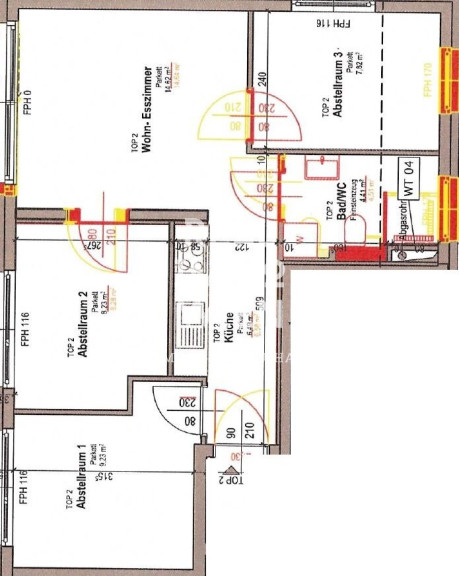
| Wohnfläche: | 59,50 m² |
| Zimmer: | 4 |
| Bäder: | 1 |
| WC: | 1 |
| Terrassen: | 1 |
| Heizwärmebedarf: | B 42,06 kWh/m²a |
| fGEE: | A 0,75 |
Ausstattung
Parkett, Fliesen, Etagenheizung, Einbauküche, Personenaufzug, Dusche
Internet und TV
Information zur Internet und TV Versorgung hier
Ihre persönliche Beratung
Philipp Stummer
Real Immo Wien Immobilientreuhand - Inh. Gerald Frank
E stummer@realimmo.wien
T +4315120488
H +4366499651213
Real Immo Wien Immobilientreuhand - Inh. Gerald Frank
Rabensteig 1 / 13, 1010 Wien
Tel.: +43 1 512 04 88