FREUNDLICHE 2 ZIMMERWOHNUNG MIT BALKON IN WELS - TOP 31
Wohnung
,
4600
Wels
,
Leopold-Bauer-Straße 14
Lage der Immobilie
Die Wohnung in der Leopold-Bauer-Straße 4600 Wels besticht durch ihre zentrale Lage. In unmittelbarer Nähe finden Sie alles, was das Herz begehrt: Ärzte, Apotheken und eine Klinik sorgen für Ihre Gesundheit, während Schulen und Kindergärten ideale Bildungsangebote bieten. Supermärkte und Bäckereien sind schnell erreichbar, ebenso Banken, Geldautomaten und die Post. Auch die Anbindung an öffentliche Verkehrsmittel wie Bus und Bahnhof ist hervorragend. Hier wohnen Sie komfortabel und gut versorgt!Beschreibung der Immobilie
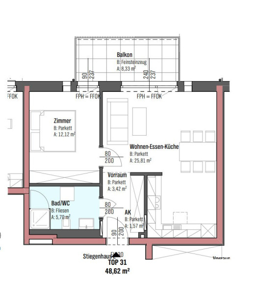
Willkommen in Ihrem neuen Zuhause in der charmanten Stadt Wels in Oberösterreich! Diese wunderbare Wohnung befindet sich in der 3. Etage eines gepflegten Mehrfamilienhauses und bietet mit 48,62 m² ausreichend Platz für Singles, Paare oder kleine Familien, die das urbane Leben schätzen.
Die monatliche Miete von 802,67 € macht diese Wohnung zu einer attraktiven Option für all jene, die nach einem komfortablen und modernen Wohnraum suchen. Das Highlight dieser Wohnung ist der sonnige Balkon, der Ihnen die Möglichkeit bietet, den Tag mit einem Frühstück im Freien zu beginnen oder den Abend bei einem Glas Wein ausklingen zu lassen – ein Rückzugsort, der zum Entspannen einlädt.
Die offene Wohnküche ist der zentrale Treffpunkt dieser Wohnung. Hier können Sie Ihre Kochkünste entfalten und gleichzeitig mit Freunden und Familie kommunizieren. Der durchdachte Grundriss ermöglicht eine optimale Raumnutzung und sorgt für ein angenehmes Wohngefühl. Dank des Personenaufzugs gelangen Sie bequem und ohne große Anstrengung zu Ihrer Wohnung.
Ein weiteres Plus ist das moderne Bad mit WC, das Ihnen den Komfort bietet, den Sie sich wünschen. Die gesamte Wohnung ist hell und einladend gestaltet, sodass Sie sich sofort wohlfühlen werden.
Die Lage dieser Immobilie könnte nicht besser sein. Mit hervorragenden Verkehrsanbindungen an Bus und Bahnhof sind Sie in kürzester Zeit in der Innenstadt oder auf dem Weg zu Ihrem Arbeitsplatz. Für die alltäglichen Besorgungen benötigen Sie nicht lange: In unmittelbarer Nähe finden Sie Ärzte, eine Apotheke, eine Klinik, Schulen, Kindergärten, Supermärkte und Bäckereien. Alles, was Sie für ein angenehmes Leben benötigen, ist nur einen kurzen Spaziergang entfernt.
Nutzen Sie die Chance, in dieser attraktiven Wohnung in Wels zu leben, und genießen Sie die Vorzüge einer zentralen Lage kombiniert mit modernem Wohnkomfort. Vereinbaren Sie noch heute einen Besichtigungstermin und lassen Sie sich von diesem charmanten Wohnraum begeistern! Ihr neues Zuhause wartet bereits auf Sie!
Tiefgaragenplatz: wird derzeit mit 49,40 € zzgl. 20% USt und BK somit 72,50 € akontiert
Heizkosten: werden derzeit mit 37,64 € zzgl. 20% USt somit 45,17 € akontiert
Wir weisen darauf hin, dass zwischen dem Vermittler und dem zu vermittelnden Dritten ein familiäres oder wirtschaftliches Naheverhältnis besteht.
Der Immobilienmakler erklärt, dass er – entgegen dem in der Immobilienwirtschaft üblichen Geschäftsgebrauch des Doppelmaklers – einseitig nur für den Vermieter tätig ist.
Infrastruktur / Entfernungen
Gesundheit
Arzt <25m
Apotheke <225m
Klinik <925m
Krankenhaus <1.525m
Kinder & Schulen
Schule <250m
Kindergarten <475m
Universität <1.175m
Nahversorgung
Supermarkt <250m
Bäckerei <200m
Einkaufszentrum <2.150m
Sonstige
Bank <125m
Geldautomat <125m
Post <200m
Polizei <800m
Verkehr
Bus <125m
Autobahnanschluss <1.825m
Bahnhof <900m
Flughafen <2.975m
Angaben Entfernung Luftlinie / Quelle: OpenStreetMap
Eckdaten
| Objektnr: | 1937/7645949 |
| Art: | Wohnung |
| Land: | Österreich |
| Gesamtmiete: | 802,67 € |
| Kaltmiete (netto): | 561,96 € |
| Kaltmiete: | 729,70 € |
| Provision: | Gemäß Erstauftraggeberprinzip bezahlt der Abgeber die Provision. |
| Betriebskosten: | 167,74 € |
| MwSt Gesamt: | 72,97 € |
| Wohnfläche: | 48,62 m² |
| Bäder: | 1 |
| WC: | 1 |
| Balkone: | 1 |
| Heizwärmebedarf: | 32,50 kWh/m²a |
Ausstattung
Wohnküche / offene Küche, Personenaufzug, Tiefgarage
Internet und TV
Information zur Internet und TV Versorgung hier
Ihre persönliche Beratung
Christa Sinzinger
AREV Immobilien GmbH
E christa.sinzinger@arev.at
T T: +43 732 605533 361
H M:+43 664 81 85 361