| ATTRAKTIVES APARTMENTHAUS | GUT VERMIETET | 32 KLEINWOHNUNGEN & 21 PARKPLÄTZE | BEZIRK WETZELSDORF
Zinshaus Renditeobjekt
,
8052
Graz
,
Straßganger Straße
Lage der Immobilie
Belgier KaserneBeschreibung der Immobilie
Zum Verkauf steht ein gut vermietetes Apartmenthaus im Bezirk Wetzelsdorf.
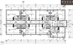
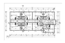
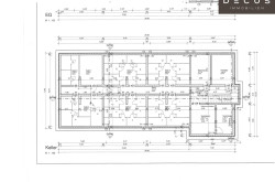
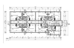
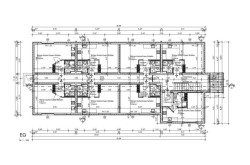
Die Wohnnutzfläche von ca. 855 m² erstreckt sich über drei Etagen sowie das Erdgeschoss und umfasst insgesamt 32 komfortable Tops. In jeder Etage befinden sich 8 Wohneinheiten à ca. 27 m². Zu jeder Wohnung gehört ein Kellerabteil.
Optional lässt sich ein Zubau von Balkonen realisieren – ein bewilligter Plan liegt bereits vor. Zudem verfügt die Liegenschaft über 21 KFZ-Abstellplätze.
Highlights auf einen Blick:
- Ca. 855 m² Wohnnutzfläche, 32 Tops
- Vier Ebenen inkl. Erdgeschoss
- Jede Einheit hat ein Kellerabteil
- Planbarer Balkonzubau (bewilligter Plan vorhanden)
- 21 Pkw-Stellplätze
- Hervorragende Infrastruktur und Verkehrsanbindung
Gerne übermitteln wir Ihnen detaillierte Unterlagen und stehen für Besichtigungstermine zur Verfügung.
Wir weisen darauf hin, dass zwischen dem Vermittler und dem zu vermittelnden Dritten ein familiäres oder wirtschaftliches Naheverhältnis besteht.
Der Vermittler ist als Doppelmakler tätig.
DECUS Immobilien GmbH – Wir beleben Räume
Für weitere Informationen und Besichtigungen steht Ihnen gerne Frau Katharina Hammerl unter der Mobilnummer +43 660 688 33 43und per E-Mail unter hammerl@decus.at persönlich zur Verfügung.
www.decus.at | office@decus.at
Wichtige Informationen
Bitte beachten Sie, dass per 13.06.2014 eine neue Richtlinie für Fernabsatz- und Auswärtsgeschäfte in Kraft getreten ist.
Ab 1.4.2024 entfallen die Grundbuchs- und Pfandrechtseintragungsgebühren vorübergehend für Eigenheime bis zu einer Bemessungsgrundlage von EUR 500.000,-. Voraussetzung ist das dringende Wohnbedürfnis, ausgenommen davon sind vererbte oder geschenkte Immobilien. Die Befreiung ist jedoch für den Einzelfall zu prüfen, DECUS Immobilien übernimmt hierzu keine Haftung.
Ab 01.07.2023 gilt das Erstauftraggeber-Prinzip bei Wohnungsmietverträgen, ausgenommen davon sind Dienst-/Natural-/Werkswohnungen. Wir dürfen gem. § 17 Maklergesetz darauf hinweisen, dass wir auf die Doppelmaklertätigkeit gem. § 5 Maklergesetz bei Wohnungsmietverträgen verzichten und nur noch einseitig tätig sind (bei den restlichen Vermittlungsarten nicht) und ein wirtschaftliches Naheverhältnis zu unseren Auftraggebern besteht.
Im Falle eines Abschlusses mit Ihnen oder einem von Ihnen namhaft gemachten Dritten bzw. bei beidseitiger Willensübereinstimmung beträgt unser Honorar (lt. Honorarverordnung für Immobilienmakler) 2 Bruttomonatsmieten (BMM) bei Dienst-/Natural-/Werkwohnungen sowie Suchaufträgen, 3 BMM bei Gewerbe-, PKW-, Keller- und Lagermietverträgen sowie bei Kaufobjekten 3 % des Kaufpreises, zuzüglich der gesetzlichen Umsatzsteuer.
Dieses Objekt wird Ihnen unverbindlich und freibleibend angeboten. Oben angeführte Angaben basieren auf Informationen und Unterlagen des Eigentümers und sind unsererseits ohne Gewähr.
Nähere Informationen sowie unsere AGBs und die Nebenkostenübersichtsblatt finden Sie auf unserer Homepage www.decus.at unter "Service" - "Rechtliches zum FAGG" sowie im Anhang der zugesendeten Objekt-Exposés!
Infrastruktur / Entfernungen
Gesundheit
Arzt <250m
Apotheke <500m
Klinik <1.500m
Krankenhaus <250m
Kinder & Schulen
Schule <250m
Kindergarten <500m
Universität <2.250m
Höhere Schule <2.250m
Nahversorgung
Supermarkt <500m
Bäckerei <500m
Einkaufszentrum <2.750m
Sonstige
Geldautomat <250m
Bank <250m
Post <1.000m
Polizei <1.000m
Verkehr
Bus <250m
Straßenbahn <1.000m
Autobahnanschluss <2.500m
Bahnhof <750m
Flughafen <8.000m
Angaben Entfernung Luftlinie / Quelle: OpenStreetMap
Eckdaten
| Kaufpreis: | 3.450.000,00 € |
| Fläche: | 855,00 m² |
Basisdaten zur Immobilie
| Objektnr: | 1151685 |
| Art: | Zinshaus Renditeobjekt |
| Land: | Österreich |
| Baujahr: | 1993 |
| Alter: | Neubau |
| Kaufpreis: | 3.450.000,00 € |
| Kaufpreis / m²: | auf Anfrage |
| Provision: | 3% des Kaufpreises zzgl. 20% USt. |
| Nutzfläche: | 855,00 m² |
| Grundstücksfl.: | 1.392,00 m² |
| Stellplätze: | 21 |
| Heizwärmebedarf: | D 108,00 kWh/m²a |
| fGEE: | C 1,74 |
Ausstattung
Fernwärme
Internet und TV
Information zur Internet und TV Versorgung hier
Ihre persönliche Beratung
Katharina Hammerl
DECUS Immobilien GmbH
hammerl@decus.at
+43 660 688 33 43
+43 660 688 33 43
F +43 1 35 600 10
