Pottendorf, 18 Minuten nach Wien! Doppelhaushälfte mit Garten! BAUSTART bereits erfolgt!

Haus - Doppelhaushälfte, 2486 Pottendorf

Lage der Immobilie

Pottendorf, absolute Grünruhelage!

Beschreibung der Immobilie

ERSTBEZUG, Doppelhaushälfte in Pottendorf in absoluter Ruhelage! H1B

+ Ziegelmassivbauweise 
+ Eigengrund mit 2 Parkplätzen 
+ Fussbodenheizung mit Luftwärmepumpe 
+ belagsfertig
+ 93,95 m² Wohnnutzfläche, 19 m² Terrasse, ca. 158 m² Garten
+ optional 2 oder 3 Schlafzimmer im Obergeschoss 
+ Baustart bereits erfolgt!

HAUS 1A, BEREITS VERGEBEN! 

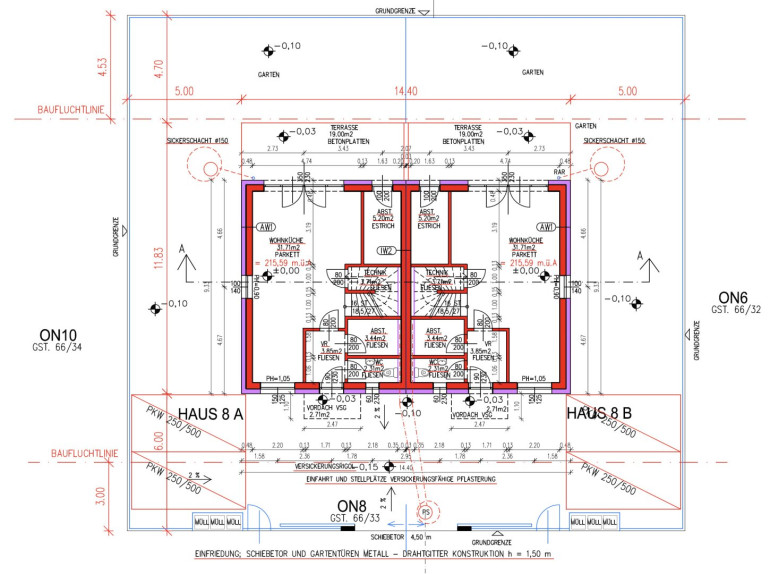
Verkauft wird eine Doppelhaushälfte in Ziegelmassivbauweise auf einemEigengrundmit ca. 158 m2 großen Garten in Pottendorf welches sich bereits in Bau befindet. Das Haus verfügt über 3 Zimmer (optional 4 Zimmer)und die Wohnfläche beläuft sich auf 93,95 m2 aufgeteilt auf zwei Geschosse. Das Haus wird belagsfertig übergeben, somit können Sie die Innenausstattung vollkommen nach Ihren Vorstellungen gestalten. 

Das Haus teilt sich wie folgt auf: 

Erdgeschoß:

- ein großzügiger Eingangsbereich
- eine 31,72 m2 große Wohnküche mit Ausgang zur 19 m2 Terrasse und zum Garten
- eine separate Toilette mit Fenster 
- eine Garderobe oder Abstellraum 
- ein von aussen begehbarer Technikraum 

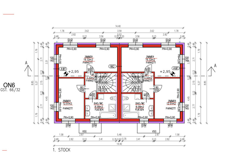
Obergeschoss:

- ein 19,32 m2 großes, helles Schlafzimmer welches optional teilbar ist und man dadurch insgesamt 3 Schlafzimmer hat
- ein weiteres 12,51 m2 großes Schlafzimmer
- ein geräumiges Badezimmer mit Vorbereitungen für Dusche und Badewanne und WC
 

Es sind 2 Autoabstellplätze vorhanden. Der genannte Kaufpreis von 359.000,- Euro versteht sich belagsfertig. Die Beheizung erfolgt über eine Fußbodenheizung mit einer effizienten Luftwärmepumpe samt Warmwasserspeicher. 

Infrastruktur:

Die Lage des Hauses ist als absolute Ruhelage in einer Wohnhaussiedlung zu bezeichnen. Der nächstgelegene Bahnhof Pottendorf-Landegg befindet sich 1,8 km entfernt. Mit der S-Bahn 35 Minuten Fahrzeit bis Wien Meidling (U4, U6). Supermärkte, Drogerien, Apotheken und Ärzte, sowie auch Schulen und Kindergärten sind der Umgebung. 

Baubeginn bereits erfolgt! Voraussichtliche Fertigstellung ist Ende zweites Quartal 2026 (Wetterabhängig)! Bei den gezeigten Bildern handelt es sich um Aufnahmen eines abgeschlossenen Projekts, die lediglich als Referenz bzw. Beispielbilder dienen.

Kaufpreis belagsfertig: 359.000,-
Provision: 3% zzgl. Ust 
Die Vertragsabwicklung und Treuhandabwicklung wird von einem Anwalt, Herr Mag. Thomas Steiner für 1,5 % zzgl. Ust und Barauslagen durchgeführt.

Kontakt und Besichtigungstermine

Für weitere Fragen oder einen unverbindlichen und kostenlosen Besichtigungstermin kontaktieren Sie gleich Herr Bigus unter 0699 / 12 47 15 92 oder per E-Mail bigus@immobilienquartier.at oder Herr Uyar unter 0699 / 17 10 59 18 oder per E-Mail uyar@immobilienquartier.at. 

Ich bitte um schriftliche Anfragen mit vollständiger Angabe Ihrer Kontaktdaten ( Name, Adresse, Telefonnummer).

Infrastruktur / Entfernungen

Gesundheit
Arzt <1.000m
Apotheke <1.000m
Klinik <6.000m

Kinder & Schulen
Kindergarten <1.500m
Schule <1.500m

Nahversorgung
Supermarkt <1.000m
Bäckerei <1.000m

Sonstige
Bank <1.000m
Geldautomat <1.000m
Post <1.000m
Polizei <1.000m

Verkehr
Bus <500m
Bahnhof <1.500m
Autobahnanschluss <1.500m

Angaben Entfernung Luftlinie / Quelle: OpenStreetMap

Eckdaten

Objektnr: 5526
Art: Haus - Doppelhaushälfte
Land: Österreich
Baujahr: 2025
Zustand: Erstbezug
Alter: Neubau
Kaufpreis: 359.000,00
Provision: 3% des Kaufpreises zzgl. 20% USt.
Betriebskosten: 120,00 €
MwSt Gesamt: 12,00 €
Wohnfläche: 93,95 m²
Zimmer: 3
Bäder: 1
WC: 2
Terrassen: 1
Stellplätze: 2
Garten: 158,00 m²
Heizwärmebedarf:  B  31,00 kWh/m²a
fGEE:  A+  0,69
Immobilie merken Exposé

Ausstattung

Estrichboden, Fußbodenheizung, Wohnküche / offene Küche, Bad mit Fenster, Parkplatz


Internet und TV

Information zur Internet und TV Versorgung hier


Immobilie anfragen


Ihre persönliche Beratung

Immobilienquartier

Peter Bigus

Immobilienquartier

E bigus@immobilienquartier.at

H +43699 124 715 92