Lage der Immobilie
Alserbachstraße / Lichtensteinstraße / Franz Josef Bahnhof / LichtensteinparkBeschreibung der Immobilie
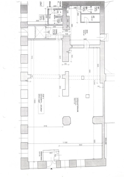
Vermietet wird ein 223,9 m2 großes Geschäftslokal im Erdgeschoß mit einem zirka 150 m2 großen Lager in sehr guter zentraler Lage im 9. Wiener Bezirk in unmittelbarer Nähe zum Lichtensteinpark. Das Objekt kann für sämtliche Branchen ausser Gastronomie benützt werden.
Das Objekt teilt sich wie folgt auf:
- ein zirka 190 m2 großer, heller straßenseitiger Verkaufsraum
- zirka 30 m2 Neben und Nassräume mit zwei WC's
- ein zirka 80 m2 großes Lager im Souterain, Zugang mit Lastenaufzug sowohl vom Geschäftslokal als auch straßenseitig
Das Objekt wird durch eine Gaszentralheizung beheizt.
Verfügbar ab 1. Dezember 2025
Miete inkl. BK und UST: € 5.000,-
unbefristeter Mietvertrag
Kaution: € 40.000,-
Provision: 3 BMM Provision + 20 % UST
Für Besichtigungstermine bzw. weitere Informationen kontaktieren Sie bitte Herrn Uyar unter 0699 / 171 05 918 oder per Email uyar@immobilienquartier.at
Mieter gesucht? www.immobilienquartier.at/vermieten
Infrastruktur / Entfernungen
Gesundheit
Arzt <500m
Apotheke <500m
Klinik <500m
Krankenhaus <1.000m
Kinder & Schulen
Schule <500m
Kindergarten <500m
Universität <500m
Höhere Schule <500m
Nahversorgung
Supermarkt <500m
Bäckerei <500m
Einkaufszentrum <2.500m
Sonstige
Geldautomat <500m
Bank <500m
Post <500m
Polizei <500m
Verkehr
Bus <500m
U-Bahn <500m
Straßenbahn <500m
Bahnhof <500m
Autobahnanschluss <2.000m
Angaben Entfernung Luftlinie / Quelle: OpenStreetMap
Eckdaten
| Kaltmiete (netto): | 4.166,67 € |
| Fläche: | 223,90 m² |
Basisdaten zur Immobilie
| Objektnr: | 5520 |
| Art: | Einzelhandel |
| Land: | Österreich |
| Baujahr: | 1900 |
| Zustand: | Sanierungsbeduerftig |
| Alter: | Altbau |
| Kaltmiete (netto): | 4.166,67 € |
| Kaltmiete: | 4.166,67 € |
| Provision: | 3 Bruttomonatsmieten zzgl. 20% USt. |
| MwSt Gesamt: | 833,33 € |
| Nutzfläche: | 223,90 m² |
| Gesamtfläche: | 373,00 m² |
| Lagerfläche: | 150,00 m² |
| Verkaufsfläche: | 189,51 m² |
| Bäder: | 1 |
| WC: | 1 |
| Heizwärmebedarf: | E 162,40 kWh/m²a |
| fGEE: | C 1,34 |
Ausstattung
Fliesen, Gas, Zentralheizung, Lastenaufzug
Internet und TV
Information zur Internet und TV Versorgung hier
Ihre persönliche Beratung
Ömer Uyar
Immobilienquartier
uyar@immobilienquartier.at
+43699 171 059 18
