• NEU! • ZIEGELMASSIV • HAUS MIT PARKPLATZ UND GARTEN • SCHLÜSSELFERTIG • BAUJAHR 2025 • 1220 WIEN •

Haus - Doppelhaushälfte, 1220 Wien

Beschreibung der Immobilie

  • ZIEGELMASSIVBAU:

Hier bekommen Sie ein stabiles, ziegelmassives Haus in hochwertiger Baumeisterausführung mit echter Handschlagqualität ohne exotische, in Werbeslogans verpackte Materialien, sondern genau das, was sich jeder wünscht: langlebige Bauweise und ein Zuhause, das Generationen überdauert.

  • PROJEKT UND LAGE:

Nahe der Lobau, dem grünen Herzen Wiens, entsteht ein ganzjähriges Familienparadies mit modernen, schlüsselfertigen Einfamilienhäusern und Doppelhaushälften.

Großzügige Gärten, Terrassen und PKW-Stellplätze sowie die Nähe zu Natur, Wasser, Spielplätzen, Schulen und einer ausgezeichneten Infrastruktur garantieren höchste Lebensqualität für Sie und Ihre Liebsten.

Die idyllische Umgebung lädt zu Spaziergängen, Radtouren und Outdoor-Aktivitäten ein – ideal für Sportler sowie für gemeinsame Erlebnisse mit der ganzen Familie!

Detailliertes LAGEEXPOSÉ (66 Seiten!) Bereits vorhanden und erfolgt umgehend nach Anfrage.

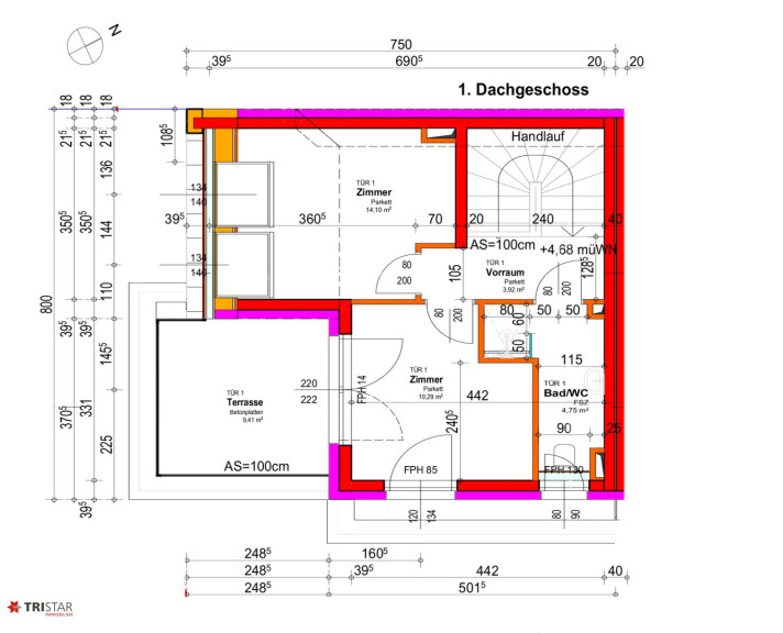
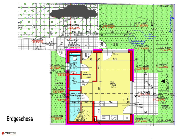
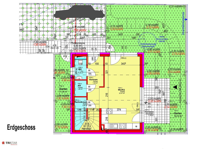
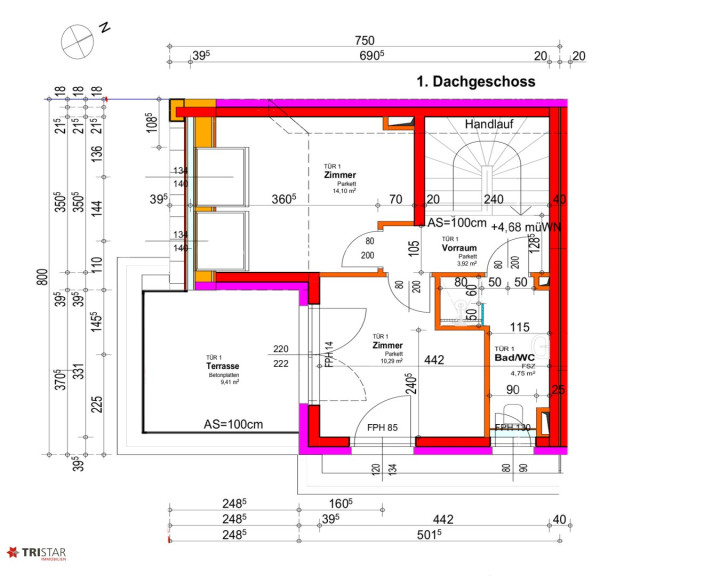
  • ERDGESCHOSS / OBERGESCHOSS / DACHGESCHOSS:

———

163

  • HAUS 1: VERKAUFT! 

  • HAUS 2: VERKAUFT! 

———

  • EINFAMILIENHAUS 3, Grundanteil ca. 240 m²:

  • WNFLca. 128,20 m² (5 Zimmer) + GARTEN ca. 71,10 m2 + 2 TERRASSEN ca. 20,57 m2  + PKW-Stellplatz ca. 12,50 m² = EUR 599.000 - SCHLÜSSELFERTIG!

———

165

  • HAUS 1, Grundanteil ca. 190 m²:

  • WNFL. ca. 127,69 m² (5 Zimmer) + GARTEN ca. 25,17 m2 + 2 TERRASSEN ca. 21,06 m2  + PKW-Stellplatz ca. 13,80 m² = EUR 588.000 - SCHLÜSSELFERTIG! 

———

  • HAUS 2, Grundanteil ca. 216 m²:

  • WNFL. ca. 127,52 m² (5 Zimmer) + GARTEN ca. 50,52 m2 + 2 TERRASSEN ca. 21,06 m2  + PKW-Stellplatz ca. 13,80 m² = EUR 576.000 - SCHLÜSSELFERTIG!

———

  •  EINFAMILIENHAUS 3:  VERKAUFT!

———

  • KEIN BAURECHT, KEINE PACHT:

Sie erwerben hier IHR EIGENHEIM und EIGENTUMSGRUND

  • TOP-AUSSTATTUNG:

Für ein behagliches Raumklima sorgt eine Fußbodenheizung, die von einer äußerst effizienten Luft-Wasser-Wärmepumpe versorgt wird – dies ermöglicht eine kostengünstige Warmwasseraufbereitung ohne Schadstoffausstoß! Um einen erhöhten Schutz vor Sonne, Gewitter und Kälte zu gewährleisten, sind die Fenster mit 3-fach Isolierverglasung und Außenjalousien ausgestattet.

———

Die Möblierung auf einzelnen Bildern wurde mittels KI (künstlicher Intelligenz) generiert und dient ausschließlich der Veranschaulichung.

———

  • VERMITTLUNGSPROVISION / DOPPELMAKLERTÄTIGKEIT:

Der Ordnung halber wird darauf hingewiesen, dass die Vermittlungsprovision 3 % des Kaufpreises zuzüglich 20 % USt. (insgesamt 3,6 %) beträgt und mit Zustandekommen des vermittelten Rechtsgeschäfts (Annahme des Kaufanbots ohne aufschiebende Bedingungen durch den Verkäufer) fällig wird. Der Makler ist als Doppelmakler tätig.

• NEU! • ZIEGELMASSIV • HAUS MIT PARKPLATZ UND GARTEN • SCHLÜSSELFERTIG • BAUJAHR 2025 • 1220 WIEN •

Wir weisen darauf hin, dass zwischen dem Vermittler und dem zu vermittelnden Dritten ein familiäres oder wirtschaftliches Naheverhältnis besteht.

Der Vermittler ist als Doppelmakler tätig.

Eckdaten

Objektnr: 27444
Art: Haus - Doppelhaushälfte
Land: Österreich
Baujahr: 2025
Zustand: Erstbezug
Alter: Neubau
Kaufpreis: 588.000,00
Kaufpreis / m²: auf Anfrage
Provision: 3% des Kaufpreises zzgl. 20% USt.
Wohnfläche: 127,69 m²
Zimmer: 5
Bäder: 2
WC: 3
Terrassen: 2
Stellplätze: 1
Garten: 25,17 m²
Heizwärmebedarf:  B  34,00 kWh/m²a
fGEE:  A+  0,64
Immobilie merken Exposé

Ausstattung

Fliesen, Parkett, Fußbodenheizung, Bad mit Fenster, Dusche, Parkplatz


Internet und TV

Information zur Internet und TV Versorgung hier


Immobilie anfragen


Ihre persönliche Beratung

TRISTAR Immobilien

TRISTAR Immobilien

TRISTAR Immobilien

E tristar@tristar.at

H +43 676 901 73 74