TOP ERSTBEZUG NACH HOCHWERTIGER SANIERUNG ++ HELLE HOHE RÄUME ++ Im 16. Bezirk wartet deine neue Eigentumswohnung - Altbaustil mit modernen Anspruch

Wohnung , 1160 Wien

Lage der Immobilie

Wilhelminenberg

Beschreibung der Immobilie

TOP SANIERTER ALTBAU MIT SMARTEM GRUNDRISS UND ERSTKLASSIGER AUSSTATTUNG ++++ FÜR ALTBAULIEBHABER

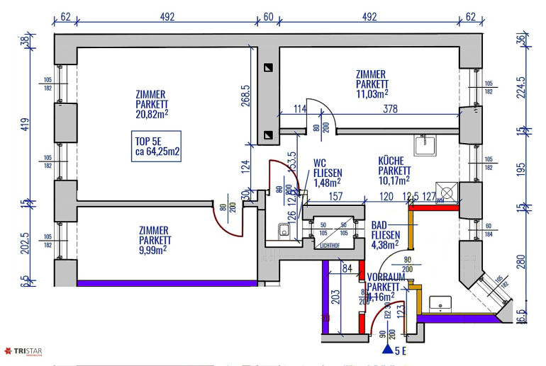
Diese helle charmante und hochwertig sanierte Wohnung punktet mit ihrem ausgezeichneten Grundriss. Auf nur 64 m² erwarten Sie drei helle Zimmer, eine offene Küche und sogar ein separater Abstellraumperfekt für alle, die mehr aus ihrem Wohnraum machen wollen.

Ob gemütliches Schlafzimmer, kreatives Homeoffice, Kinderzimmer oder stilvoller Rückzugsort – Ihre Wohnträume  werden wahr. Dank der Höhe der Räume entsteht eine luftige, lichtdurchflutete Wohnung mit Wohlfühlfaktor. Die Raumaufteilung ist bis ins Detail durchdacht: Kein Quadratmeter wird verschenkt, jeder Winkel sinnvoll genutzt. Das trockene Kellerabteil bietet zusätzlichen Stauraum.

Die Ausstattung lässt keine Wünsch offen. Hochwertiger Fischgrät-Parkett im Wohnbereich, edles Feinsteinzeug in Bad und WC – stilvoll, pflegeleicht und langlebig. Eine Fußbodenheizung und ein modernes Bad mit großer Dusche und hochwertigen Armaturen – kombinieren einen klassischen Altbaustil mit moderner Funktion und Elementen. 

Das Haus selbst wurde ebenfalls  so saniert, dass sie sich vom Hauseingang bis zur Wohnungstüre rundum wohlfühlen können:

•      Sanierung Stiegenhaus

•      Erneuerung der Steigleitungen

•      Modernisierte Hauselektrik

•      Sanierung Hauseingangstor

Einziehen und losleben: Die Wohnung wird schlüsselfertig übergeben – kein Baustress, kein Warten. Einfach ankommen.

Jetzt besichtigen und ihr Eigentum sichern – kein weiterer Mietvertrag. Diese Wohnung ist mehr als nur vier Wände – sie ist Ihr neues Zuhause. Ein Ort, der Ihnen gehört.

Eckdaten:

Fläche: 64m2

Kaufpreis:  Eur 329.000,-

Provision: 3% zzgl Ust vom Kaufpreis

Im Haus stehen noch folgende Wohnungen zum Verkauf

1. STOCK:

TOP 5A: VERKAUFT

TOP 5B: VERKAUFT

TOP 5C: VERKAUFT

TOP 5D: ca. 64,25 m² (3 Zimmer), EUR 329.000

2. STOCK:

TOP 6A: VERKAUFT

TOP 6B: ca. 57,68 m² (2 Zimmer), EUR 289.500

TOP 6D: ca. 55,03 m² (2 Zimmer), EUR 280.000

TOP 6E: VERKAUFT

Sehr gerne stehen wir Ihnen für weitere Fragen oder einen Besichtigungstermin unter anderle@tristat.at oder unter der Telefonnummer +43650/8209830 zur Verfügung

Wir weisen darauf hin, dass zwischen dem Vermittler und dem zu vermittelnden Dritten ein familiäres oder wirtschaftliches Naheverhältnis besteht.

Der Vermittler ist als Doppelmakler tätig.

Eckdaten

Objektnr: 28287
Art: Wohnung
Land: Österreich
Baujahr: 1900
Zustand: Voll_saniert
Alter: Altbau
Kaufpreis: 329.000,00
Kaufpreis / m²: 5.120,62 €
Provision: 3% des Kaufpreises zzgl. 20% USt.
Betriebskosten: 172,60 €
MwSt Gesamt: 17,26 €
Wohnfläche: 64,25 m²
Nutzfläche: 64,25 m²
Gesamtfläche: 64,25 m²
Zimmer: 3
Bäder: 1
WC: 1
Heizwärmebedarf:  D  108,00 kWh/m²a
fGEE:  D  1,92
Immobilie merken Exposé

Ausstattung

Dusche


Internet und TV

Information zur Internet und TV Versorgung hier


Immobilie anfragen


Ihre persönliche Beratung

TRISTAR Immobilien

Mag. Mario Anderle

TRISTAR Immobilien

E anderle@tristar.at

H +43 650 820 98 30