Modern sanierte Eigentumswohnung mit perfekter Ausstattung & optionalen Garagenplätzen | ZELLMANN IMMOBILIEN

Wohnung , 1230 Wien

Beschreibung der Immobilie

Elegant wohnen – modern, effizient & hochwertig saniert

Diese Wohnung verbindet anspruchsvolle Modernität mit einer ruhigen Wohnatmosphäre und einem außergewöhnlichen Freiraumangebot. Bereits beim Betreten entsteht jener hochwertige Ersteindruck, der stilbewusste Interessenten anspricht: klare Linien, helle Räume, zeitgemäße Materialien und eine umfassende Sanierung, die ein Wohngefühl auf aktuellem Qualitätsniveau ermöglicht.

Ein besonderes Highlight ist die großzügige Südterrasse, die sich wie ein erweitertes Wohnzimmer im Freien anfühlt. Sie ist ideal für Sonnenliebhaber, lädt zu entspannten Stunden im Freien ein und bietet einen seltenen Mehrwert, der in dieser Form nur schwer zu finden ist.

Die Highlights auf einen Blick

Modernisierung & Energieeffizienz

  • Hochwertige, umfassend modern sanierte Wohnung

  • Vollwärmeschutz der gesamten Wohnhausanlage – dadurch äußerst geringe Energiekosten

  • Dreifach verglaste Qualitätsfenster für optimale Dämmung, Ruhe und Stabilität des Raumklimas

  • Energetisch optimierte Gebäudestruktur

  • Geringe Betriebskosten & ausgezeichnete Zukunftssicherheit

 

Südterrasse – Sonne, Raum & Lebensqualität

  • Sehr große, südseitige Terrasse

  • Ideal für Lounge-Möbel, Essbereich im Freien, Pflanzenarrangements oder Home-Gardening

  • Den ganzen Tag über sonnendurchflutet, gleichzeitig durch die Ausrichtung hervorragend geschützt

  • Ein privater Rückzugsort mit außergewöhnlichem Freiraumgefühl

  • Seltener Außenbereich in dieser Größe – wertsteigernd & emotional absolut überzeugend

 

Komfort & Ausstattung

  • Aufzug im Haus – bequem, komfortabel und barrierearm

  • Helle, gut proportionierte Wohnräume

  • Modernisierte Oberflächen, hochwertige Böden und ästhetische Raumgestaltung

  • Ruhiges Wohngefühl durch exzellente Schall- und Wärmedämmung

  • Zeitgemäße Haustechnik für effizienten Betrieb

Garagenplätze optional

  • Zwei Garagenstellplätze separat erwerbbar

  • Kaufpreis pro Stellplatz: € 27.000,-

  • Ideal für Eigennutzer, Pendler oder Haushalte mit zwei Autos

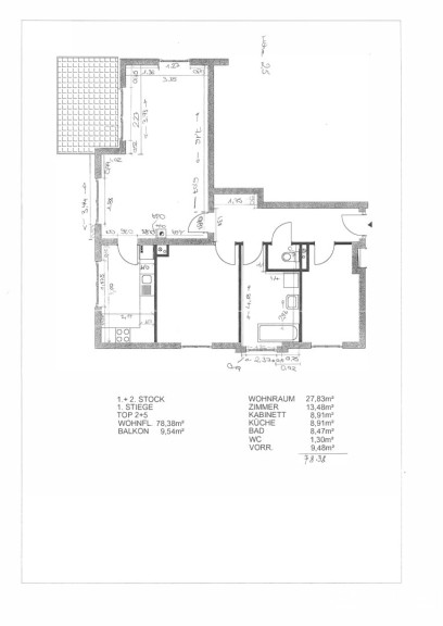
Die Wohnung – modern, hell und durchdacht

Die Wohnung wurde umfassend modern saniert – mit einem klaren Fokus auf elegante Linienführung, hochwertige Materialien und langlebige technische Lösungen. Alle Räume vermitteln ein harmonisches Gesamtbild und bieten gleichzeitig funktionale Klarheit.
Das Wohn- und Esszimmer ist lichtdurchflutet und öffnet sich direkt zur großen Südterrasse, wodurch ein fließender Übergang zwischen Innen- und Außenbereich entsteht. Die modernisierten Nassräume präsentieren sich zeitlos, pflegeleicht und hochwertig. Insgesamt ergibt sich ein Wohngefühl, das sofort bezugsfertig ist und langfristig Wertstabilität verspricht.

Große Südterrasse – ein Rückzugsort mit Seltenheitswert

Die südseitige Terrasse zählt zweifellos zu den besonderen Highlights dieser Immobilie. Sie bietet viel Platz für Erholung, Geselligkeit und Gestaltungsmöglichkeiten. Ob Sonnenliegen, Lounge-Bereich, Outdoor-Dining oder eine kleine Pflanzwelt – die Terrassengröße eröffnet vielfältige Möglichkeiten für individuelle Nutzung.

Die perfekte Ausrichtung sorgt für angenehme Sonnenstunden über den gesamten Tag hinweg, ohne dass der Bereich überhitzt. Gleichzeitig bleibt die Terrasse privat und gut nutzbar – ein echtes „Wohnzimmer im Freien“.

Gebäude & Wohnhausanlage

Die Wohnhausanlage präsentiert sich gepflegt, modernisiert und energetisch gut aufgestellt. Dank Vollwärmeschutz, dreifach verglasten Fenstern und erneuerter Gebäudetechnik ergibt sich ein ruhiges Wohnklima bei zugleich sehr niedrigen Energiekosten. Der Aufzug erleichtert den Alltag deutlich und unterstreicht die Wohnqualität des Objekts. Die Allgemeinflächen sind sauber, gepflegt und vermitteln einen rundum stimmigen Gesamteindruck.

Optionale Garagenplätze

Zur Wohnung können zwei Garagenstellplätze erworben werden – jeweils zum Preis von € 27.000,-.
Die Stellplätze bieten nicht nur Komfort im Alltag, sondern steigern zusätzlich die Wertigkeit der Immobilie.

Unser Service – Vertrauen. Service. Qualität.

Bei ZELLMANN IMMOBILIEN legen wir größten Wert auf persönliche Beratung, Transparenz und Service auf höchstem Niveau. Jede Besichtigung ist unverbindlich und findet in entspannter Atmosphäre statt. Nach Vertragsabschluss übernehmen wir selbstverständlich sämtliche Formalitäten – von der Übergabedokumentation bis zur Abstimmung mit Hausverwaltung und Energieversorgern. Ihr Anliegen ist bei uns in den besten Händen – auch nach Vertragsabschluss.

Rechtliche Hinweise

Bitte kontrollieren Sie auch Ihren SPAM- bzw. WERBE-Ordner, da E-Mails manchmal dort landen können. Wir antworten in der Regel innerhalb weniger Stunden – auch am Wochenende. Teilen Sie uns gerne Ihre Telefonnummer mit, damit wir Sie zusätzlich per SMS über die Versendung des Exposés informieren können.

Dieses Objekt wird unverbindlich und freibleibend angeboten. Alle Angaben basieren auf Informationen des Eigentümers sowie dem vorliegenden Gutachten und wurden mit größter Sorgfalt zusammengestellt. Für die Richtigkeit, Vollständigkeit und Aktualität dieser Angaben wird keine Gewähr übernommen. Änderungen, Irrtümer und Zwischenverkauf bleiben ausdrücklich vorbehalten. Maßangaben sind Circa-Angaben. Das Exposé stellt kein verbindliches Angebot dar. Bei erfolgreichem Abschlussfall fällt eine Käuferprovision in Höhe von 3 % des Kaufpreises zzgl. 20 % USt. an – gemäß Immobilienmaklerverordnung BGBI. 262 und 297/1996.

Noch nichts gefunden? Wir informieren Sie über geeignete Immobilienangebote noch vor allen anderen.
Legen Sie jetzt Ihren individuellen Suchagenten unter folgendem Link an. Wir schicken Ihnen passende Immobilien exklusiv vorab zu. 

-> Suchagent anlegen

Der Vermittler ist als Doppelmakler tätig.

Infrastruktur / Entfernungen

Gesundheit
Arzt <500m
Apotheke <500m
Klinik <1.000m
Krankenhaus <2.000m

Kinder & Schulen
Schule <500m
Kindergarten <500m
Universität <6.000m
Höhere Schule <7.000m

Nahversorgung
Supermarkt <500m
Bäckerei <1.000m
Einkaufszentrum <1.000m

Sonstige
Geldautomat <1.000m
Bank <1.000m
Post <1.000m
Polizei <1.000m

Verkehr
Bus <500m
U-Bahn <3.000m
Straßenbahn <500m
Bahnhof <1.000m
Autobahnanschluss <2.500m

Angaben Entfernung Luftlinie / Quelle: OpenStreetMap

Eckdaten

Objektnr: 24320
Art: Wohnung
Land: Österreich
Baujahr: 1995
Zustand: Gepflegt
Alter: Neubau
Kaufpreis: 390.000,00
Betriebskosten: 197,16 €
Heizkosten: 91,69 €
MwSt Gesamt: 35,01 €
Wohnfläche: 78,37 m²
Zimmer: 3
Bäder: 1
WC: 1
Balkone: 1
Keller: 2,84 m²
Heizwärmebedarf:  C  70,80 kWh/m²a
fGEE:  C  1,38
Immobilie merken Exposé

Ausstattung

Parkett, Dielenboden, Steinboden, Gas, Etagenheizung, Einbauküche, Wohnküche / offene Küche, Personenaufzug, Bad mit Fenster, Badewanne, Dusche, Kabel/Satelliten-TV, Garage


Internet und TV

Information zur Internet und TV Versorgung hier


Immobilie anfragen


Ihre persönliche Beratung

ZELLMANN IMMOBILIEN GmbH | Vertrauen. Service. Qualität.

Christian Zellmann

ZELLMANN IMMOBILIEN GmbH | Vertrauen. Service. Qualität.

E office@zellmann.at

T +43 699 15 15 22 00

H +43 699 15 15 22 00


ZELLMANN IMMOBILIEN GmbH | Vertrauen. Service. Qualität. - Immobilen Makler

Stuhlhofergasse 8, 1230 Wien-Mauer

Tel.: +43 699 15 15 22 00

https://www.zellmann.at