„Hietzinger Residenz – herrschaftliche Villa mit Parkcharakter“ | ZELLMANN IMMOBILIEN

Haus - Villa, 1130 Wien,Hietzing

Lage der Immobilie

Die Villa liegt in einer der renommiertesten Gegenden Wiens, im traditionsreichen 13. Bezirk Hietzing. Die Umgebung ist geprägt von herrschaftlichen Villen, großzügigen Gärten und einer ruhigen, grünen Atmosphäre, die ein Höchstmaß an Privatsphäre bietet. Trotz der exklusiven Ruhelage ist die städtische Infrastruktur bestens erschlossen: Einkaufsmöglichkeiten, elegante Gastronomie, renommierte Schulen und medizinische Versorgung befinden sich in unmittelbarer Nähe. Die Anbindung an das öffentliche Verkehrsnetz ist hervorragend, sodass die Wiener Innenstadt rasch erreichbar ist, während der Flughafen Wien-Schwechat über die Westausfahrt in nur etwa 35 Minuten erreicht werden kann. Für Erholung und Freizeit bieten das Schloss Schönbrunn mit seiner Parkanlage, der Lainzer Tiergarten sowie zahlreiche weitere Grünflächen ein unvergleichliches Umfeld, das Natur und Kultur miteinander verbindet. Diese Lage vereint somit städtische Eleganz mit grünem Rückzugscharakter und zählt zweifellos zu den prestigeträchtigsten Adressen Wiens.

Beschreibung der Immobilie

Historische Villa mit parkähnlichem Grundstück in Hietzing

Einzigartiges Anwesen in einer der nobelsten Lagen Wiens

Im traditionsreichen 13. Bezirk, wo prachtvolle Villen und historische Residenzen das Bild prägen, gelangt eine Villa aus dem Jahr 1928 zur Vermietung. Dieses außergewöhnliche Anwesen verbindet klassische Wiener Architektur mit einem parkähnlichen Grundstück – eine Rarität inmitten von Hietzing, dem Synonym für mondänes Wohnen in Wien.

Objektbeschreibung – Großzügigkeit & Eleganz

Das herrschaftliche Wohnhaus in Massivbauweise verkörpert die typische Wiener Villenarchitektur der Zwischenkriegszeit und bietet ein Ambiente, das historische Eleganz und repräsentative Großzügigkeit vereint. Hohe Räume, edle Fischgrätparkettböden, Stuckelemente und Holzkastenfenster schaffen ein Wohngefühl, das Stil und Tradition widerspiegelt.

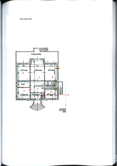
Eckdaten zur Gesamtnutzfläche (ca. 730 m²):

  • Souterrain: ca. 213 m²

  • Hochparterre: ca. 212 m²

  • Obergeschoss: ca. 156 m²

  • Dachgeschoss: ca. 148 m²

Raumaufteilung & Ausstattung:

  • repräsentative Gesellschafts- und Wohnräume mit Zugang zu Garten und Terrassen

  • mehrere Schlafzimmer und Gästezimmer in den oberen Ebenen

  • moderne Bäder und Sanitäranlagen in gehobenem Standard

  • vielseitig nutzbares Souterrain mit Weinkeller, Hauswirtschaftsbereich und direktem Garagenzugang

  • architektonische Details wie Erker, Flügeltüren und lichtdurchflutete Räume

Grundstück & Außenbereich – Parkähnliches Refugium

Das Anwesen umfasst zwei Grundstücke mit insgesamt 2.112 m² (genaue Aufteilung siehe unten) und bietet einen weitläufigen, uneinsehbaren Garten mit altem Baumbestand. Die parkähnliche Anlage vermittelt absolute Privatsphäre und das Gefühl einer privaten Residenz inmitten der Stadt.

Ein idealer Rahmen für erholsame Stunden im Grünen, repräsentative Empfänge oder exklusive Gartenfeste – eine Kombination, die in dieser Lage nur äußerst selten zu finden ist.

Lage – Mondäne Exklusivität in Hietzing

Hietzing zählt seit jeher zu den feinsten Adressen Wiens. Schon zur Kaiserzeit zog das Viertel den Adel, Diplomaten und das großbürgerliche Wien an – nicht zuletzt aufgrund der unmittelbaren Nähe zu Schloss Schönbrunn, der Sommerresidenz der Habsburger.

Bis heute verkörpert Hietzing ein Wohngefühl, das Tradition, Diskretion und Eleganz vereint. Villen aus der Jahrhundertwende, historische Residenzen und Botschaftsvillen prägen die Umgebung. Hier entsteht ein unvergleichliches Flair, das Ruhe und Exklusivität bietet und zugleich die Nähe zur pulsierenden Innenstadt wahrt.

Lebensqualität & Infrastruktur:

  • renommierte Schulen (inkl. internationale Einrichtungen), Ärzte und Nahversorgung in unmittelbarer Nähe

  • ein vielfältiges Angebot an feiner Gastronomie, Cafés und traditionellen Wiener Restaurants

  • zahlreiche Grünanlagen wie der Lainzer Tiergarten oder der Schönbrunner Schlosspark nur wenige Minuten entfernt

Anbindung:

  • Straßenbahn, Bus und die U-Bahnlinie U4 fußläufig erreichbar

  • Wiener Innenstadt in ca. 15 Minuten

  • Flughafen Wien-Schwechat in ca. 35 Minuten

Hietzing steht für ein Lebensgefühl, das urbane Nähe und ländliche Ruhe vereint – ein Refugium für höchste Ansprüche.

Besonderheiten auf einen Blick

  • prachtvolle Villa mit über 90-jähriger Geschichte

  • großzügige Wohn- und Repräsentationsflächen auf ca. 730 m²

  • parkähnliches Grundstück mit 2.112 m² und altem Baumbestand

  • Souterrain mit Weinkeller, Gäste- und Wirtschaftsräumen

  • exklusive Lage in einer der prestigeträchtigsten Wohngegenden Wiens

Zusammenfassung der Flächenzuordnung

  • Grundstück 1 (bebaut): Mietgegenstand
    Enthält die Villa mit Garten- und Zufahrtsbereich laut Plan.

  • Grundstück 2 (unbebaut): Präkarium
    Wird dem Mieter, bis auf federzeitigen Widerruf, zur Nutzung überlassen.

Interesse?

Wir freuen uns auf Ihre Anfrage über dieses Webportal und übermitteln Ihnen gerne sämtliche Unterlagen zeitnah.

_____________

WICHTIG:

Da e-mails leider manchmal in SPAM oder WERBE Ordnern landen, ersuchen wir Sie diese zu kontrollieren. Wir antworten in der Regel binnen weniger Stunden. Auch am Wochenende! Teilen Sie uns bitte auch Ihre Telefonnummer mit, da wir Sie per SMS über die Versendung des Exposés verständigen können! Dieses Objekt wird Ihnen unverbindlich und freibleibend zur Miete angeboten. Oben angeführte Angaben basieren auf Informationen und Unterlagen des Eigentümers und sind unsererseits ohne Gewähr. 

Noch nichts gefunden? Wir informieren Sie über geeignete Immobilienangebote noch vor allen anderen.
Legen Sie jetzt Ihren individuellen Suchagenten unter folgendem Link an. Wir schicken Ihnen passende Immobilien exklusiv vorab zu. 

-> Suchagent anlegen

Hinweis gemäß Energieausweisvorlagegesetz: Ein Energieausweis wurde vom Eigentümer bzw. Verkäufer, nach unserer Aufklärung über die generell geltende Vorlagepflicht, sowie Aufforderung zu seiner Erstellung noch nicht vorgelegt. Daher gilt zumindest eine dem Alter und der Art des Gebäudes entsprechende Gesamtenergieeffizienz als vereinbart. Wir übernehmen keinerlei Gewähr oder Haftung für die tatsächliche Energieeffizienz der angebotenen Immobilie.

Der Immobilienmakler erklärt, dass er – entgegen dem in der Immobilienwirtschaft üblichen Geschäftsgebrauch des Doppelmaklers – einseitig nur für den Vermieter tätig ist.

ZELLMANN IMMOBILIEN GmbH
Vertrauen. Service. Qualität.

Infrastruktur / Entfernungen

Gesundheit
Arzt <500m
Apotheke <500m
Klinik <1.500m
Krankenhaus <2.000m

Kinder & Schulen
Schule <500m
Kindergarten <500m
Universität <1.500m
Höhere Schule <4.000m

Nahversorgung
Supermarkt <500m
Bäckerei <500m
Einkaufszentrum <3.500m

Sonstige
Geldautomat <500m
Bank <500m
Post <500m
Polizei <1.000m

Verkehr
Bus <500m
U-Bahn <1.000m
Straßenbahn <500m
Bahnhof <1.000m
Autobahnanschluss <4.500m

Angaben Entfernung Luftlinie / Quelle: OpenStreetMap

Eckdaten

Objektnr: 24334
Art: Haus - Villa
Land: Österreich
Baujahr: 1928
Zustand: Gepflegt
Alter: Altbau
Gesamtmiete: 6.600,00
Kaltmiete (netto): 6.000,00 €
Kaltmiete: 6.000,00 €
Provision: Gemäß Erstauftraggeberprinzip bezahlt der Abgeber die Provision.
MwSt Gesamt: 600,00 €
Wohnfläche: 729,00 m²
Grundstücksfl.: 2.112,00 m²
Zimmer: 14,50
Bäder: 3
WC: 4
Balkone: 1
Terrassen: 1
Garten: 1.900,00 m²
Keller: 213,25 m²
Immobilie merken Exposé

Ausstattung

Parkett, Fliesen, Laminatboden, Steinboden, Gas, Zentralheizung, Etagenheizung, Einbauküche, Bad mit Fenster, Badewanne, Dusche, Kabel/Satelliten-TV, Garage, Sauna, Teeküche


Internet und TV

Information zur Internet und TV Versorgung hier


Immobilie anfragen


Ihre persönliche Beratung

ZELLMANN IMMOBILIEN GmbH | Vertrauen. Service. Qualität.

Nicole Zellmann

ZELLMANN IMMOBILIEN GmbH | Vertrauen. Service. Qualität.

E nicole@zellmann.at

T +43 699 15 15 22 01

H +43 699 15 15 22 01