Sehr gepflegte 2-Zimmer Balkonwohnung, in ruhiger- hofseitiger Lage!
Wohnung
,
1210
Wien
Lage der Immobilie
Die Entfernung zur Donauinsel ist zum Greifen nahe, am Fußweg, ca. 1,2 km entfernt, befindet sich die Neue Donau und ebenso ladet dort ein Grillplatz zu einem sommerlichen Nachmittag ein.
Es bietet sich eine gute Erreichbarkeit und wesentliche Einkaufsmöglichkeiten des täglichen Bedarfs sind zu Fuß erreichbar.
Umliegend befinden sich mehrere Schulen und Bildungseinrichtungen.
In unmittelbarer Nähe befinden sich Anbindungen an das öffentliche Verkehrsnetz zu folgenden Linien:
Straßenbahn: 26 u. 27
Bus: 36A, 36B, 34B
Bahnhof Floridsdorf U-Bahn U6 div. Zuganbindungen ca. 1,9 KM ca. 22 min.Fußweg
Nächstgelege Hauptverkehrsstraßen sind die Prager Straße und Knoten Floridsdorf A22.
Beschreibung der Immobilie
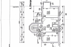
Diese sehr gepflegte und geschmackvoll ausgestattete Apartmentwohnung befindet sich im 2. Stock (ohne Lift) eines kleinen, hofseitig gelegenen Wohnhauses und bietet ein besonders ruhiges, angenehmes Wohnambiente. Die Wohnung überzeugt durch ihre neuwertige Erscheinung, einen kompakten und gut durchdachten Grundriss sowie die hochwertige Ausstattung.
Wohnfläche & Raumaufteilung - Wohnfläche 59,53m²
- 2 Zimmer mit optimaler Flächenaufteilung
- Großzügige Küche, aufgrund ihrer Größe ideal als Wohnküche nutzbar
- Vorraum und Badezimmer mit zusätzlichem Tageslicht durch Dachlukenfenster; im Bad auch Lüftungsmöglichkeit über das Fenster
- separate Toilette
Ausstattung
- Einbauküche inklusive, Wohnung wird teilmöbliert übergeben (Einbaumöbel)
- Fußbodenheizung in allen Räumen
- Verflieste Böden in Küche, Vorraum und Nassräumen
- Hochwertiger Parkettboden in den Wohnbereichen
- Gasetagenheizung für die Wärmeversorgung
Freifläche - Balkon 4m²
- Balkon in idealer Größe
- Wunderschöne Süd-Ost-Ausrichtung
- Blick in einen ruhigen Innenhof, perfekte Kombination aus Sonnenlicht und Privatsphäre
Weitere Highlights
- Ruhige, hofseitige Lage
- Helle Wohnung durch optimale Ausrichtung und zusätzliche Dachluken
- Sehr geräumiges Kellerabteil
Kosten
Betriebskosten inkl. Reparaturrücklage:
ab 01/2026: EUR 192,34
Diese Balkonwohnung eignet sich ideal für Singles, Paare oder als stilvolle Stadtwohnung mit hoher Wohnqualität. Die ruhige Lage, die helle Atmosphäre und die hochwertige Ausstattung machen dieses Apartment zu einem besonderen Angebot.
Eckdaten
| Kaufpreis: | 235.000,00 € |
| Fläche: | 59,53 m² |
| Zimmer: | 2,50 |
Basisdaten zur Immobilie
| Objektnr: | 0001011095 |
| Art: | Wohnung |
| Land: | Österreich |
| Baujahr: | 1932 |
| Kaufpreis: | 235.000,00 € |
| Provision: | 3% des Kaufpreises plus 20% USt. |
| Betriebskosten: | 113,70 € |
| Wohnfläche: | 59,53 m² |
| Nutzfläche: | 59,53 m² |
| Gesamtfläche: | 59,53 m² |
| Zimmer: | 2,50 |
| Bäder: | 1 |
| WC: | 1 |
| Balkone: | 1 |
| Keller: | 5,45 m² |
| Heizwärmebedarf: | E 181,00 kWh/m²a |
| fGEE: | F 3,29 |
Ausstattung
Gas, Etagenheizung, Fußbodenheizung
Internet und TV
Information zur Internet und TV Versorgung hier
Ihre persönliche Beratung
Alexander Jaksch
Raiffeisen Immobilien Vermittlung
teamwien@riv.at
+43517517
+43 664 60 517 517 27
