WOHNEN IM ZENTRUM VON HAGENBERG II ERSTBEZUG (01.03.2026) II GROSSZÜGIGE FREIFLÄCHEN
Wohnung
- Erdgeschoß,
4232
Hagenberg im Mühlkreis
,
Tumlerstraße 17
Lage der Immobilie
Hagenberg befindet sich rd. 20 km südlich der Bezirkshauptstadt Freistadt und nur rd. 25 km nordöstlich der Landeshauptstadt Linz, in einer aufstrebenden und sehr gut angebundenen Region (A 7, S 10, B 123, B 124, B 125). Der überregional bekannte Softwarepark Hagenberg ist nur ca. 0,9 km entfernt und beheimatet bereits zahlreiche Firmen, Ausbildungsprogramme und Forschungsinstitute. Geschäfte des täglichen Bedarfes und alle wichtigen Infrastruktureinrichtungen (Ärzte, Schulen, Kindergarten, Hort, Gemeindeamt, Apotheke etc.) befinden sich im Nahbereich. Eine Buseinstiegsstelle liegt vor dem Haus (mit spezieller Verbindung zur Johannes Keppler Universität in Linz/Urfahr). Der Bahnhof Pregarten, der in Zukunft auch als Endstation für die geplante Regio-Tram (Linz-Gallneukirchen-Pregarten) fungieren soll, ist nur 16 Gehminuten entfernt. In der direkten Umgebung befinden sich weitere Ein- und Mehrfamilienhäuser sowie Grünflächen. Das bekannte Natur- und Naherholungsgebiet Feldaisttal, mit einem Wassererlebnispark, befindet sich ebenfalls in fußläufiger Distanz.Beschreibung der Immobilie
Das nur 6 Wohneinheiten umfassende 3-geschoßige Wohnhaus wurde vom renommierten Bauunternehmen SINGER aus Pregarten in Massivbauweise errichtet und besticht durch hohe Qualität und sehr guter Ausstattung. Jede Wohnung verfügt über eine großzügige Terrasse samt Eigengarten bzw. Wohnbalkon, die/der den Wohnraum auf attraktive Weise vergrößert.
In allen Wohnungen wurde hochwertiger Parkett verlegt und die Bäder mit sehr guten Produkten deutscher Qualitätshersteller ausgestattet.
Die behagliche Fußbodenheizung (zentrale Luftwärmepumpe mit Kühlfunktion) sowie die Lüftungsgeräte in den Wohnräumen sorgen ebenso wie die Kunststoff-Aluminium-Fenster mit 3-Scheiben-Isolierverglasung für hohe Energieeffizienz und optimales Wohnklima.
Alle Außenflächen verfügen über eine Außenbeleuchtung, eine Steckdose und einen frostsicheren Wasseranschluss (Gartenwohnungen).
Eine Vorbereitung für Breitband-Internet von Liwest (samt Leerverrohrung in die Aufenthaltsräume) ist bis in den Medienverteiler der Wohnungen verlegt.
Zusammenfassung II Highlights:
- Zentrumslage von Hagenberg (Nähe zum Softwarepark)
- großzügige Freiflächen
- Wohnraumlüftung mittels dezentraler Lüftungsgeräte
- effiziente Luftwärmepumpe mit KÜHLFUNKTION
- niedrige Betriebs- und Heizkosten (kein Lift)
- Beschattung mittels Raffstores (Funkfernbedienung)
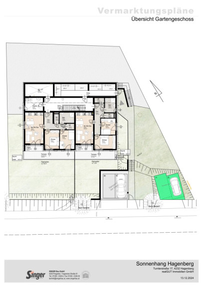
BESCHREIBUNG TOP 3:
INKLUSIVE EINBAUKÜCHE !!
WOHNEN-ESSEN-KOCHEN 24,72 m² mit Ausgang zur Loggia u. Terrasse
BAD 6,78 m²
WC 1,88 m²
VORRAUM/GARDEROBE 9,69 m²
SCHLAFZIMMER 1 11,70 m² mit Ausgang zur Terrasse
SCHLAFZIMMER 2 11,70 m² mit Ausgang zur Terrasse
ABSTELLRAUM 2,03 m²
GESAMTE WOHNFLÄCHE ca. 68,50 m²
LOGGIA ca. 3,93 m²
TERRASSE ca. 16,60 m²
sowie:
1 KELLERABTEIL ca. 3,64 m²
1 Carportplatz und 1 Freistellplatz
Der Immobilienmakler erklärt, dass er – entgegen dem in der Immobilienwirtschaft üblichen Geschäftsgebrauch des Doppelmaklers – einseitig nur für den Vermieter tätig ist.
Eckdaten
| Objektnr: | 458 |
| Art: | Wohnung - Erdgeschoß |
| Land: | Österreich |
| Baujahr: | 2025 |
| Zustand: | Erstbezug |
| Alter: | Neubau |
| Gesamtmiete: | 878,00 € |
| Kaltmiete (netto): | 725,00 € |
| Kaltmiete: | 835,00 € |
| Provision: | Gemäß Erstauftraggeberprinzip bezahlt der Abgeber die Provision. |
| Betriebskosten: | 110,00 € |
| Heizkosten: | 43,00 € |
| Wohnfläche: | 68,50 m² |
| Grundstücksfl.: | 991,00 m² |
| Zimmer: | 3 |
| Bäder: | 1 |
| WC: | 1 |
| Terrassen: | 1 |
| Stellplätze: | 2 |
| Keller: | 3,64 m² |
| Heizwärmebedarf: | B 39,00 kWh/m²a |
| fGEE: | 0,63 |
Ausstattung
Fliesen, Parkettboden, Fußbodenheizung, Dusche, Carport, Parkplatz, Wasch/Trockenraum
Internet und TV
Information zur Internet und TV Versorgung hier
Ihre persönliche Beratung
Kooperationspartner: Hr. Bernhard Wolfsegger
marktwert Immobilien GmbH
E office@bernhardwolfsegger.at
T +43 699 13413316
