Beschreibung der Immobilie
Diese großzügige Bürofläche im 1. Liftstock (Belle Etage) eines revitalisierten Gründerzeithauses in bester Lage des 12. Bezirks verbindet historischen Charme mit funktionaler Raumaufteilung.
Die aufwendig sanierte Einheit besticht durch ihren klassischen Altwiener Stil:
-
- edles Fischgrätparkett
- Altwiener Flügeltüren
- stilvolle Stuckelemente
- Jugendstilfliesen im Vorzimmer und Küchenbereich
Diese Details verleihen dem Objekt einen repräsentativen Charakter und machen es ideal für Kanzleien, Beratungsunternehmen oder Agenturen.
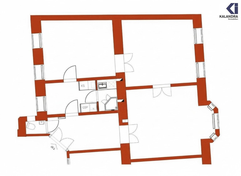
Raumaufteilung
Die Büroeinheit umfasst ca. 98,11 m² Nutzfläche und gliedert sich wie folgt:
-
- großzügiger Vorraum/Wartebereich mit separatem WC
- drei helle Bürozimmer
- hochwertige Tischlerküche
- Pausenraum
- Badezimmer mit Waschmaschinenanschluss
Die flexible Raumanordnung ermöglicht unterschiedliche Nutzungskonzepte – von Einzel- und Teambüros bis hin zu Besprechungs- und Kanzleistruktur.
Mietkonditionen
Der Mietzins stellt sich derzeit wie folgt dar:
-
- Nettomietzins: EUR 1.650,00
- Allgemeine Betriebskosten: EUR 210,46
- Betriebskosten Aufzug: EUR 39,13
- Gesamtbelastung Netto: EUR 1.899,59
Umsatzsteuer: EUR 379,92
Bruttomietzins gesamt: EUR 2.279,50
Kaution: EUR 7.000, --
Lage
Lage & Infrastruktur
Die Lage überzeugt durch die öffentliche Anbindung und eine sehr gute Infrastruktur:
-
- U4-Station „Längenfeldgasse“ in unmittelbarer Nähe
- in wenigen Minuten mit der U4 zum Schlosspark Schönbrunn
- nur fünf U-Bahn-Stationen bis Karlsplatz / Wiener Staatsoper
- die Meidlinger Hauptstraße mit zahlreichen Geschäften, Gastronomie und Nahversorgern ist in wenigen Gehminuten erreichbar
In den umliegenden Liegenschaften stehen bei Bedarf Garagenstellplätze zur Anmietung zur Verfügung, wodurch die Erreichbarkeit mit dem Auto zusätzlich attraktiv ist.
Infrastruktur / Entfernungen
Gesundheit
Arzt <500m
Apotheke <500m
Klinik <500m
Krankenhaus <1.500m
Kinder & Schulen
Schule <500m
Kindergarten <500m
Universität <500m
Höhere Schule <1.000m
Nahversorgung
Supermarkt <500m
Bäckerei <500m
Einkaufszentrum <500m
Sonstige
Geldautomat <500m
Bank <500m
Post <500m
Polizei <500m
Verkehr
Bus <500m
U-Bahn <500m
Straßenbahn <1.000m
Bahnhof <500m
Autobahnanschluss <3.500m
Angaben Entfernung Luftlinie / Quelle: OpenStreetMap
Eckdaten
| Objektnr: | 18556 |
| Art: | Büro / Praxis |
| Land: | Österreich |
| Kaufpreis: | auf Anfrage |
| Kaufpreis / m²: | auf Anfrage |
| Provision: | 3% des Kaufpreises zzgl. 20% USt. |
| Betriebskosten: | 1.650,00 € |
| Heizkosten: | 210,46 € |
| MwSt Gesamt: | 379,92 € |
| Nutzfläche: | 100,00 m² |
Internet und TV
Information zur Internet und TV Versorgung hier
Ihre persönliche Beratung
Mag. Robin Kalandra
KALANDRA Immobilien Robert Kalandra e.U.
E robin@kalandra.at
T +43-1533326913
H +43-69911804004
F +43-1-533-32-69-20

