Familienglück im Grünen – nachhaltige Reihenhäuser am Kanal
Haus
- Reihenhaus,
2700
Wiener Neustadt
,
Ackergasse
Beschreibung der Immobilie
Die frisch fertiggestellten Reihenhäuser in ökologischer Holzbauweise richten sich an Familien, die modernes Wohnen mit Natur verbinden möchten. Eingebettet in eine grüne Umgebung nahe dem Wiener Neustädter Kanal genießen Sie hier Ruhe, Weite und zahlreiche Freizeitmöglichkeiten direkt vor der Haustür. Spazier- und Radwege, Wasserlandschaft und viel Grün schaffen ein Wohngefühl wie im Urlaub.
Auch verkehrstechnisch liegt das Ensemble ideal: Der Bahnhof Civitas Nova ist schnell erreichbar und sorgt für eine bequeme Anbindung in Richtung Wien und Wiener Neustadt. So wohnen Sie entspannt im Grünen und bleiben gleichzeitig bestens vernetzt.
Wohnkonzept mit viel Platz und klarer Funktion
Diese Häuser wurden von Beginn an auf Alltagstauglichkeit, Nachhaltigkeit und Komfort hin geplant. Auf zwei Ebenen verteilt sich eine großzügige Wohnfläche von rund 118 m² – ideal für Familien, Paare mit Platzbedarf oder alle, die Homeoffice & Privatleben entspannt unter einem Dach vereinen möchten.
Erdgeschoss
Ein offener, heller Wohn- und Essbereich mit direktem Ausgang auf die Terrasse. Der Garten schließt nahtlos an – ein privater Lieblingsplatz für Frühstück in der Sonne, Spielen im Grünen oder entspannte Abende draußen.
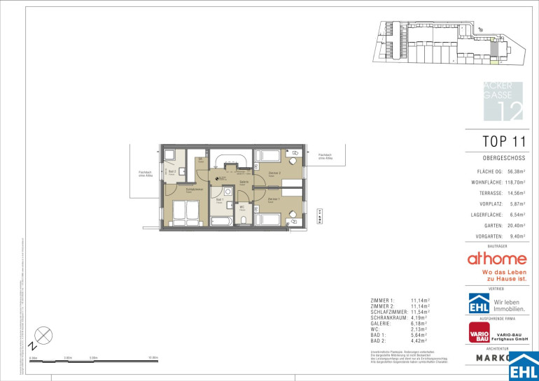
Obergeschoss
Drei angenehm ruhige Zimmer bieten flexible Nutzungsmöglichkeiten – Schlafräume, Kinderzimmer, Arbeitszimmer oder Gästezimmer. Zwei moderne Bäder ergänzen den durchdachten Grundriss und sorgen für Komfort im Alltag.
Außenflächen
Großzügige Eigengärten, Terrassen und ein Vorgarten schaffen Raum zum Durchatmen. Durch die Südost-Ausrichtung sind die Räume lichtdurchflutet, große Fensterflächen bringen Offenheit und Wärme ins Haus.
Das Wichtigste auf einen Blick
- Erstbezug – sofort beziehbar
- 12 Reihenhäuser in nachhaltiger Holzrahmenbauweise
- ca. 118 m² Wohnfläche pro Haus
- Vorgarten, Terrasse und großer Privatgarten
- 3 Zimmer + Wohnküche, 2 Bäder, viel Stauraum
- PKW-Stellplatz in der Miete inkludiert
- 19 Stellplätze im Gesamtprojekt
- hochwertige, moderne Ausstattung
- naturnahe Lage mit sehr guter Infrastruktur und Bahnanbindung
Ausstattung, die den Unterschied macht. Hier ist alles auf zeitgemäßes Wohnen ausgelegt: langlebig, komfortabel und stilvoll:
- elegante Parkettböden in den Wohnräumen
- moderne Fliesen in Bad und WC
- hochwertige Sanitärausstattung
- 3-fach-isolierte Fenster für optimale Energieeffizienz
- elektrischer Sonnenschutz
- Glasfaser-Internet (A1 & Magenta)
- Fußbodenheizung über Fernwärme
- Vorbereitung für Photovoltaik, Klimaanlage und Alarmanlage
Lage: Natur vor der Tür, Alltag ganz nah
Die Umgebung verbindet Erholung und Alltag perfekt: Der Wiener Neustädter Kanal bietet Natur, Sport und Freizeit in unmittelbarer Nähe. Schulen, Kindergärten, Nahversorger und weitere Einrichtungen sind rasch erreichbar. Die schnelle Öffi-Anbindung über Civitas Nova macht das Projekt auch für Pendler:innen besonders attraktiv.
Mietvertrag befristet für 5 Jahre + 5 Jahre Verlängerungsoption, 1 Jahr Kündigungsverzicht, 3 Monate Kündigungsfrist
Je Haus wird 1 Parkplatz um ca. EUR 39,00 dazu gemietet, ein weiterer Parkplatz ist möglich.
Nebenkosten: 3 BMM Kaution
Strom, Heizung, Warmwasser werden nach Verbrauch verrechnet
© 2025, PROPERTY PHOTOS
© EHL Wohnen GmbH
Wir weisen darauf hin, dass zwischen dem Vermittler und dem zu vermittelnden Dritten ein familiäres oder wirtschaftliches Naheverhältnis besteht.
Der Immobilienmakler erklärt, dass er – entgegen dem in der Immobilienwirtschaft üblichen Geschäftsgebrauch des Doppelmaklers – einseitig nur für den Vermieter tätig ist.
Infrastruktur / Entfernungen
Gesundheit
Arzt <1.500m
Apotheke <1.000m
Klinik <3.500m
Krankenhaus <2.000m
Kinder & Schulen
Schule <500m
Kindergarten <750m
Höhere Schule <2.500m
Universität <1.250m
Nahversorgung
Supermarkt <500m
Bäckerei <1.000m
Einkaufszentrum <1.000m
Sonstige
Bank <1.000m
Geldautomat <1.000m
Post <750m
Polizei <500m
Verkehr
Bus <500m
Autobahnanschluss <4.250m
Bahnhof <500m
Flughafen <1.500m
Angaben Entfernung Luftlinie / Quelle: OpenStreetMap
Eckdaten
| Objektnr: | 91535 |
| Art: | Haus - Reihenhaus |
| Land: | Österreich |
| Baujahr: | 2025 |
| Zustand: | Erstbezug |
| Alter: | Neubau |
| Gesamtmiete: | 1.450,00 € |
| Kaltmiete (netto): | 1.145,56 € |
| Kaltmiete: | 1.318,18 € |
| Provision: | Gemäß Erstauftraggeberprinzip bezahlt der Abgeber die Provision. |
| Betriebskosten: | 172,62 € |
| MwSt Gesamt: | 131,82 € |
| Wohnfläche: | 118,98 m² |
| Zimmer: | 4 |
| Bäder: | 2 |
| WC: | 2 |
| Terrassen: | 1 |
| Garten: | 29,80 m² |
| Heizwärmebedarf: | B 29,60 kWh/m²a |
| fGEE: | A+ 0,66 |
Ausstattung
Fliesen, Parkett, Fußbodenheizung, Bad mit Fenster, Badewanne, Dusche
Internet und TV
Information zur Internet und TV Versorgung hier
Ihre persönliche Beratung
Mag. (FH) Ingrid Neugebauer
EHL Immobilien GmbH
i.neugebauer@ehl.at
+43-1-512 76 90-418
+43 699 15212532
