Ihr Rückzugsort in einer der besten Lagen Wiens – Wohnen mit Komfort & Stil
Wohnung
,
1190
Wien
,
Barawitzkagasse
Beschreibung der Immobilie
In der Barawitzkagasse 24 entsteht ein Zuhause, das mehr ist als nur vier Wände sind – ein Ort, an dem modernes Wohnen auf echte Lebensqualität trifft. Mit nur wenigen, exklusiv ausgestatteten Wohneinheiten und 13 komfortablen PKW-Stellplätzen bietet dieses Projekt Raum für Menschen, die Wert auf Ruhe, Stil und ein hochwertiges Wohngefühl legen.
Das Gebäude umfasst zwei eigenständige Stiegen: Straßenseitig fügt sich die Architektur elegant und selbstverständlich in das charmante Grätzel ein, während die Gartenstiege im geschützten Innenhof einen stillen, grünen Rückzugsort eröffnet – ein Platz zum Durchatmen, Ankommen und Wohlfühlen.
Das Projekt vereint zeitgemäße Architektur mit höchstem Wohnkomfort und spricht all jene an, die ein Zuhause mit Qualität und Charakter in einem der begehrtesten Bezirke Wiens suchen. Die Wohnungen sind sorgfältig geplant, um unterschiedlichste Lebenssituationen zu begleiten – vom berufstätigen Paar bis hin zu Menschen, die barrierefreie Wohnqualität besonders schätzen.
Projektübersicht
- 26 Wohnungen, jeweils mit privater Freifläche
- Wohnflächen von ca. 40 bis 105 m²
- 2- bis 4-Zimmer-Wohnungen
- Zwei moderne Baukörper
- 13 KFZ-Stellplätze in der hauseigenen Garage
- Einlagerungsräume für jede Einheit
- Fahrrad- und Kinderwagenabstellraum
Ausstattung
- Fußbodenheizung mittels Luftwärmepumpe, kombiniert mit einer PV-Anlage am Dach
- Temperierung über eine Fußbodenheizung, welche im Sommer auch zur Kühlung verwendet wird
- Edler Eichen-Echtholzparkett in allen Wohnräumen
- Hochwertige Markenfliesen (Format 30 × 60 cm) in den Bädern
- Dreifach-isolierverglaste, wärmegedämmte Kunststofffenster
- Elektrische Außenjalousien aus Aluminium
- Klimaanlagen-Leerverrohrung im Dachgeschoss
- Moderne Gegensprechanlage mit Farbvideo
Lage
Die Barawitzkagasse 24 liegt im exklusiven 19. Bezirk Döbling – einer der elegantesten und begehrtesten Wohnadressen Wiens. Die Umgebung besticht durch eine harmonische Mischung aus stilvollen Neubauten, repräsentativen Altbauten und grünen Villenvierteln, die dem Grätzel eine besonders ruhige und zugleich kultivierte Atmosphäre verleihen.
In unmittelbarer Nähe finden sich zahlreiche Einkaufsmöglichkeiten sowie charmante Cafés und Restaurants, die zum Verweilen einladen. Ein BILLA und BIPA liegen nur rund 200 Meter entfernt, eine Tankstelle befindet sich ebenfalls gleich ums Eck – ideal für alle Besorgungen des täglichen Lebens. Für besondere Anlässe oder den feinen Wocheneinkauf ist der SPAR-Gourmet in lediglich 5–7 Gehminuten erreichbar. Rund 400 Meter entfernt steht zudem eine Apotheke zur Verfügung, was die hervorragende Nahversorgung perfekt abrundet.
Die öffentliche Verkehrsanbindung ist hervorragend: Die Buslinie 10A und die Straßenbahnlinie 37 befinden sich praktisch direkt vor der Haustür und bieten eine schnelle Verbindung in die umliegenden Bezirke und die Wiener Innenstadt. Der Bahnhof Heiligenstadt, in etwa 10 Gehminuten erreichbar, ermöglicht zudem den Anschluss an die U4, diverse S-Bahn-Linien sowie Regional- und Schnellzüge.
Für Erholung im Grünen stehen gleich mehrere Parks in unmittelbarer Nähe bereit – darunter der stimmungsvolle Setagayapark, der weitläufige Wertheimsteinpark sowie die traditionsreiche Hohe Warte. Auch das umliegende Radwegenetz eröffnet bequeme und sichere Routen bis ins Stadtzentrum.
Öffentliche Anbindung
- U-Bahn: U4 Heiligenstadt
- Bus: 10A, 38A, 39A
- Straßenbahn: D, 37
- S-Bahn: S40, S45
- Regionalzüge: R40, REX4, REX41
Durch die Nähe zur A22 und A23 profitieren auch Autofahrer von einer ausgezeichneten Verkehrsanbindung – der Flughafen Wien ist in rund 25 Minuten erreichbar.
Ein detaillierten Überblick finden Sie auf unserer Projekthomepage!
Provisionsfrei für den Käufer!
Fertigstellung voraussichtlich Q3 2027
Wir weisen darauf hin, dass zwischen dem Vermittler und dem zu vermittelnden Dritten ein familiäres oder wirtschaftliches Naheverhältnis besteht.
Der Vermittler ist als Doppelmakler tätig.
Infrastruktur / Entfernungen
Gesundheit
Arzt <500m
Apotheke <500m
Klinik <500m
Krankenhaus <1.000m
Kinder & Schulen
Schule <500m
Kindergarten <500m
Universität <750m
Höhere Schule <750m
Nahversorgung
Supermarkt <250m
Bäckerei <500m
Einkaufszentrum <1.250m
Sonstige
Geldautomat <250m
Bank <250m
Post <750m
Polizei <500m
Verkehr
Bus <250m
U-Bahn <500m
Straßenbahn <250m
Bahnhof <750m
Autobahnanschluss <750m
Angaben Entfernung Luftlinie / Quelle: OpenStreetMap
Eckdaten
| Objektnr: | 91488 |
| Art: | Wohnung |
| Land: | Österreich |
| Baujahr: | 2027 |
| Zustand: | Erstbezug |
| Alter: | Neubau |
| Kaufpreis: | 330.000,00 € |
| Provision: | Provision bezahlt der Abgeber. |
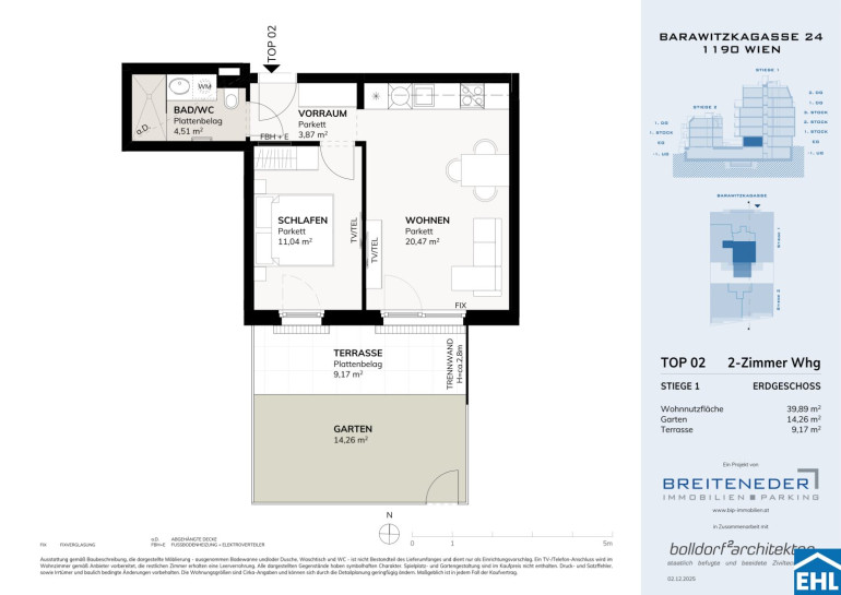
| Wohnfläche: | 39,89 m² |
| Zimmer: | 2 |
| Bäder: | 1 |
| WC: | 1 |
| Terrassen: | 1 |
| Garten: | 14,24 m² |
| Heizwärmebedarf: | B 33,40 kWh/m²a |
| fGEE: | A 0,72 |
Ausstattung
Fliesen, Parkett, Fußbodenheizung, Wohnküche / offene Küche, Personenaufzug, Dusche, Kabel/Satelliten-TV, Tiefgarage
Internet und TV
Information zur Internet und TV Versorgung hier
Ihre persönliche Beratung
Daniel Bolataschwili
EHL Immobilien GmbH
E d.bolataschwili@ehl.at
T +43-1-512 76 90-414
H +43 664 88 16 01 27
