Beschreibung der Immobilie
Mit der Barawitzkagasse 24 entsteht in Döbling ein exklusives Neubauprojekt, das wie gemacht ist für Käufer von Vorsorgewohnungen – besonders auch für Anleger, die ihr Portfolio gezielt erweitern möchten. In Zeiten volatiler Märkte bleibt die Wohnimmobilie eine der stabilsten Wertanlagen. Und gerade in Wien zeigt sich das deutlicher denn je: Die Nachfrage nach Mietwohnungen ist hoch, das Angebot knapp. Dieses Ungleichgewicht sorgt für nachhaltig solide Vermietbarkeit – vor allem in Toplagen wie Döbling.
Ein Investment, das sich rechnet – heute und langfristig
Die Kombination aus erstklassiger Lage, moderner Neubauqualität und einem Wohnungsmix, der breite Zielgruppen anspricht, macht Barawitzkagasse 24 zur idealen Vorsorgeimmobilie. Ob zur Sicherung Ihres Vermögens, als Baustein für laufende Mieteinnahmen oder als Teil eines größeren Anlagekonzepts: Hier investieren Sie in Wohnraum, der am Wiener Markt dauerhaft gesucht ist.
Nähere Informationen finden Sie auch auf der Homepage: Barawitzkagasse 24 | Exklusives Wohnen mit ruhigem Innenhof
Das Projekt auf einen Blick
In zwei modernen Wohnhäusern entstehen insgesamt 26 hochwertig ausgestattete Wohnungen – jede mit privater Freifläche – sowie 13 PKW-Stellplätze. Die durchdachten Grundrisse und Größen sind genau auf die Bedürfnisse des Wiener Markt abgestimmt: von kompakten Einheiten für Singles und Paare bis zu großzügigen Wohnungen für Familien oder anspruchsvolle Mieter.
• 26 Wohnungen mit Freifläche (Balkon, Terrasse oder Garten)
• Wohnflächen ca. 40–105 m²
• 2- bis 4-Zimmer-Wohnungen
• Zwei elegante, moderne Baukörper
• 13 KFZ-Stellplätze in der hauseigenen Garage
• Einlagerungsräume für jede Einheit
• Fahrradabstellraum
Die Ausstattung
Ausstattung, die Mieter überzeugt – und den Wert sichert, Vorsorgewohnungen leben von Qualität, die sich auszahlt: in geringerem Leerstandsrisiko, stabileren Mieten und langfristiger Werthaltigkeit. Barawitzkagasse 24 bietet eine Ausstattung, die sowohl zeitgemäß als auch langlebig ist – ein klarer Pluspunkt am Mietmarkt.
• Fußbodenheizung über Luftwärmepumpe + PV-Anlage am Dach
• Fußbodenkühlung für angenehmes Raumklima
• Eichen-Echtholzparkett in allen Wohnräumen
• Hochwertige Markenfliesen (30 × 60 cm) in den Bädern
• Dreifach-isolierverglaste, wärmegedämmte Fenster
• Elektrische Außenjalousien aus Aluminium
• Klimaanlagen-Leerverrohrung im Dachgeschoss
• Moderne Video-Gegensprechanlage
Die Lage
Nahversorgung, Gastronomie, Freizeit und Natur liegen vor der Tür. Gleichzeitig profitieren Bewohner von einer hervorragenden Anbindung an die Innenstadt – ein entscheidender Faktor für die nachhaltige Vermietbarkeit.
Öffentliche Verkehrsanbindung
• U-Bahn: U4 Heiligenstadt
• Bus: 10A, 38A, 39A
• Straßenbahn: D, 37
• S-Bahn: S40, S45
• Regionalzüge: R40, REX4, REX41
Auch mit dem Auto ist die Lage ideal: A22 und A23 sind rasch erreichbar, der Flughafen Wien in ca. 25 Minuten.
Fazit: Vorsorge in Bestlage – für Einzelkäufer und Portfolio-Investoren
Barawitzkagasse 24 bietet alles, was eine erfolgreiche Vorsorgewohnung ausmacht: Toplage, gefragte Grundrisse, hochwertige Ausstattung und ein Marktumfeld, das von hoher Mietnachfrage und Knappheit geprägt ist. Eine Investition, die laufende Erträge ermöglicht und gleichzeitig Vermögen langfristig absichert – besonders attraktiv für Anleger, die mehr als nur eine Wohnung erwerben und auf nachhaltige Vermietungssicherheit setzen.
Kaufpreise der Vorsorgewohnungen
von EUR 301.563,- bis EUR 881.842,- netto zzgl. 20% USt.
Zu erwartender Mietertrag
von ca. EUR 17,50 bis EUR 20,75 netto/m²
Ein detaillierten Überblick finden Sie auf unserer Projekthomepage!
Provisionsfrei für den Käufer!
Fertigstellung voraussichtlich Q3 2027
Bei diesem Angebot handelt es sich um eine Vorsorgewohnung, die zu Vermietungszwecken erworben wird. Der angegebene Kaufpreis versteht sich daher zzgl. 20% USt. Diese Daten sind vorbehaltlich möglicher Änderungen.
Wir weisen darauf hin, dass zwischen dem Vermittler und dem zu vermittelnden Dritten ein familiäres oder wirtschaftliches Naheverhältnis besteht.
Der Vermittler ist als Doppelmakler tätig.
Infrastruktur / Entfernungen
Gesundheit
Arzt <500m
Apotheke <500m
Klinik <500m
Krankenhaus <1.000m
Kinder & Schulen
Schule <500m
Kindergarten <500m
Universität <750m
Höhere Schule <750m
Nahversorgung
Supermarkt <250m
Bäckerei <500m
Einkaufszentrum <1.250m
Sonstige
Geldautomat <250m
Bank <250m
Post <750m
Polizei <500m
Verkehr
Bus <250m
U-Bahn <500m
Straßenbahn <250m
Bahnhof <750m
Autobahnanschluss <750m
Angaben Entfernung Luftlinie / Quelle: OpenStreetMap
Eckdaten
| Objektnr: | 91544 |
| Art: | Wohnung |
| Land: | Österreich |
| Baujahr: | 2027 |
| Zustand: | Erstbezug |
| Alter: | Neubau |
| Kaufpreis: | 325.322,00 € |
| Kaufpreis / m²: | auf Anfrage |
| Provision: | Provision bezahlt der Abgeber. |
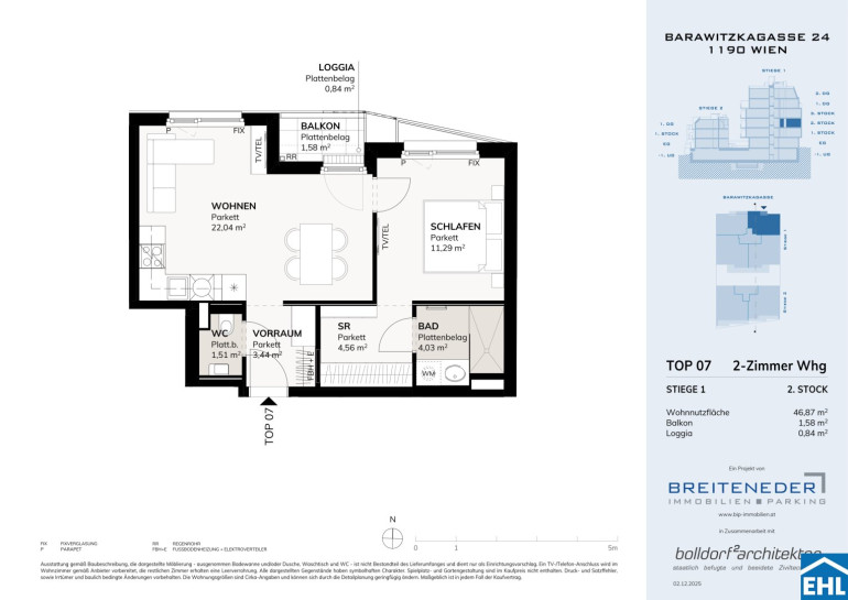
| Wohnfläche: | 46,87 m² |
| Zimmer: | 2 |
| Bäder: | 1 |
| WC: | 1 |
| Balkone: | 1 |
| Heizwärmebedarf: | B 33,40 kWh/m²a |
| fGEE: | A 0,72 |
Ausstattung
Parkett, Fliesen, Fußbodenheizung, Wohnküche / offene Küche, Personenaufzug, Nordbalkon, Dusche, Kabel/Satelliten-TV, Tiefgarage
Internet und TV
Information zur Internet und TV Versorgung hier
Ihre persönliche Beratung
Andrea PÖCHHACKER; MSc
EHL Immobilien GmbH
a.poechhacker@ehl.at
+4315127690 DW 411
+43664 83 73 481
