• NEU! • NAHE U6 • 5 ZIMMER • GARTEN • 2 TERRASSEN • KÜCHE INKL. • PKW-STELLPLATZ INKL. • 1230 WIEN • EIGENTUM •

Haus - Reihenendhaus, 1230 Wien

Lage der Immobilie

U6 - Perfekterstraße

Beschreibung der Immobilie

  • Diese Weihnachten im neuen Haus gewünscht? Hier sind Sie richtig!

Zum Verkauf gelangt ein wunderschönes 5-Zimmer-Haus mit eigener Photovoltaikanlage am Flachdach.

Durch die Nähe zur U6-Perfektastraße sowie diversen Buslinien und der Badner Bahn bietet das Haus und die Gegend eine Top-Anbindung in alle Richtungen, sowohl mit öffentlichen Verkehrsmitteln als auch mit dem Auto oder Fahrrad.

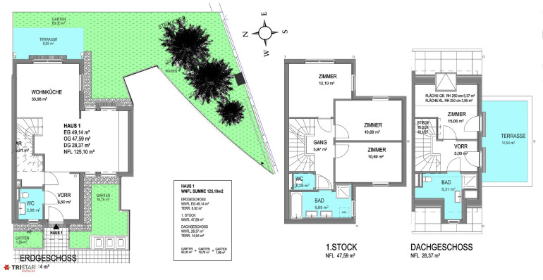
Das Haus verfügt über ca. 125 m² Wohnfläche + ca. 73 m² Gartenfläche + 2 Terrassen mit 9 und 15 m² und bietet somit mehr als genug Platz für die ganze Familie sowie Homeoffice!

Durch seine Süd-Ost-West-Ausrichtung ist das Haus lichtdurchflutet und verspricht viel Freude und Tageslicht für seine Bewohner.

  • Erdgeschoss / 1. Obergeschoss / Dachgeschoss:

Erdgeschoss:

  • Großes Vorzimmer mit ausreichend Platz für Garderobe beim Eingang
  • Wohnküche (Küche ist im Kaufpreis bereits inkludiert), Süd-Ost-West ausgerichtet
  • Toilette, Abstellraum/Technikraum
  • Terrasse mit ca. 9 m², begehbar von der Wohnküche, Süd-Ost ausgerichtet
  • Garten (Eigentum) mit ca. 73 m², Süd-Ost-West ausgerichtet
  • PKW-Stellplatz (im Kaufpreis bereits inkludiert)

1. Obergeschoss:

  • 3 Schlafzimmer (Süd, Ost, West ausgerichtet)
  • Badezimmer mit Badewanne und WM-Anschluss sowie Fenster für Tageslicht
  • Getrennte Toilette
  • Diele

Dachgeschoss:

  • Schlafzimmer (Süd-Ost ausgerichtet)
  • Badezimmer mit Dusche und Toilette sowie Fenster für Tageslicht
  • Diele
  • Terrasse ca. 15 m², südseitig ausgerichtet
  • Kein Pacht- oder Baurecht:

Es handelt sich um Eigentum – kein Pacht- oder Baurecht.

  • Photovoltaikanlage am Dach:

Modernste Ausstattung und zukunftsorientiertes Design machen dieses Haus zur perfekten Wahl.

Die Heizung im Winter sowie die Kühlung im Sommer erfolgt über den Fußboden mittels einer eigenen Luftwärmepumpe.

Auf dem Flachdach befindet sich eine Photovoltaikanlage mit Grundausstattung, bereits vorinstalliert, welche der Käufer gegen Aufpreis jetzt oder auch zu einem späteren Zeitpunkt entsprechend erweitern kann, um eigene Stromkosten klimafreundlich reduzieren zu können.

  • Küche:
  • Eine neue, vollständig ausgestattete Küche mit Geräten ist ebenfalls im Kaufpreis enthalten.
  • Überblick:

HAUS 1: Gesamtfläche ca. 234 m²

WNFL ca. 125,10 m² (5 Zimmer) + Garten ca. 73 m² + Terrasse (EG) ca. 9 m² + Terrasse (DG) ca. 15 m² + PKW-Stellplatz

Kaufpreis: EUR 729.000,— schlüsselfertig, inkl. Küche und PKW-Stellplatz

  • Top Lage:

Detailliertes Lageexposé (68 Seiten!) vorhanden und erfolgt umgehend nach Anfrage.

  • Vermittlungsprovision / Doppelmaklertätigkeit:

Der Ordnung halber wird darauf hingewiesen, dass die Vermittlungsprovision 3 % des Kaufpreises zuzüglich 20 % USt. (insgesamt 3,6 %) beträgt und mit Zustandekommen des vermittelten Rechtsgeschäfts (Annahme des Kaufanbots ohne aufschiebende Bedingungen durch den Verkäufer) fällig wird. Der Makler ist als Doppelmakler tätig.

• NEU! • NAHE U6 • 5 ZIMMER • GARTEN • 2 TERRASSEN • KÜCHE INKL. • PKW-STELLPLATZ INKL. • 1230 WIEN • EIGENTUM •

Wir weisen darauf hin, dass zwischen dem Vermittler und dem zu vermittelnden Dritten ein familiäres oder wirtschaftliches Naheverhältnis besteht.

Der Vermittler ist als Doppelmakler tätig.

Eckdaten

Objektnr: 28289
Art: Haus - Reihenendhaus
Land: Österreich
Baujahr: 2024
Zustand: Erstbezug
Alter: Neubau
Kaufpreis: 729.000,00
Kaufpreis / m²: auf Anfrage
Provision: 3% des Kaufpreises zzgl. 20% USt.
Wohnfläche: 125,10 m²
Gesamtfläche: 234,00 m²
Zimmer: 5
Bäder: 2
WC: 3
Terrassen: 2
Stellplätze: 1
Garten: 73,00 m²
Heizwärmebedarf:  B  43,10 kWh/m²a
fGEE:  A+  0,65
Immobilie merken Exposé

Ausstattung

Parkett, Fliesen, Fußbodenheizung, Einbauküche, Wohnküche / offene Küche, Südbalkon, Bad mit Fenster, Badewanne, Dusche, Parkplatz


Internet und TV

Information zur Internet und TV Versorgung hier


Immobilie anfragen


Ihre persönliche Beratung

TRISTAR Immobilien

TRISTAR Immobilien

TRISTAR Immobilien

E tristar@tristar.at

H +43 676 901 73 74