NEUBAU! Moderne Doppelhaushälfte mit Platz für jedes Familienmitglied !

Haus - Doppelhaushälfte, 2421 Kittsee

Lage der Immobilie

Kittsee befindet sich im Dreiländereck Österreich, Ungarn und Slowakei, vor den Toren liegt die slowakische Hauptstadt Bratislava.

Kittsee verfügt über eine sehr gute Infrastruktur, hier befindet sich außerdem das einzige Krankenhaus im Bezirk Neusiedl am See.

Im Schloss Batthyany findet jeden Juli der Kultursommer statt.

Beschreibung der Immobilie

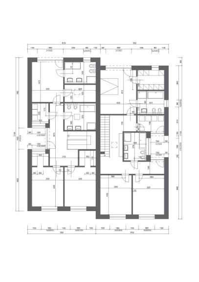
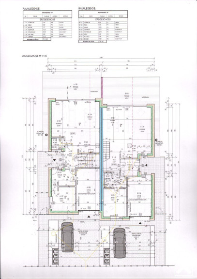
Das in Massivbau errichtete Doppelhaus besticht durch eine exzellente Raumaufteilung und eine gute Ausstattung wie 3-Scheiben-Isolierverglasung, Fassadendämmung und Außenluft/Wasserwärmepumpe.

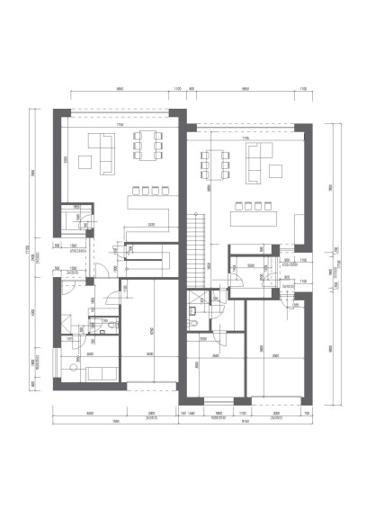
Raumaufteilung

Erdgeschoss:

  • Vorraum
  • Diele
  • offener Wohnraum mit Küche, Essbereich und Wohnzimmer
  • Schlafzimmer/Büro
  • Bad mit Wc

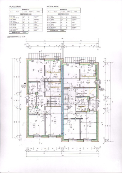
Obergeschoss:

  • Diele
  • Abstellraum
  • Technikraum
  • Bad mit Wanne, Doppelwaschtisch und Wc
  • 2 Schlafzimmer
  • großes Schlafzimmer mit Schrankraum und eigenem Badezimmer
  • Loggia

Für den Fuhrpark stehen Garage und ein Stellplatz zur Verfügung.

Von der Terrasse blickt man zum Nachbarn, dem ehrwürdigen Alten Schloss Kittsee mit seiner jahrhundertelangen Geschichte!

Eckdaten

Objektnr: 0001011125
Art: Haus - Doppelhaushälfte
Land: Österreich
Baujahr: 2016
Kaufpreis: 300.000,00
Provision: 3% des Kaufpreises plus 20% USt.
Wohnfläche: 181,78 m²
Grundstücksfl.: 404,00 m²
Zimmer: 5
Bäder: 3
Terrassen: 1
Heizwärmebedarf:  B  33,00 kWh/m²a
fGEE:  A  0,71
Immobilie merken Exposé

Ausstattung

Fußbodenheizung


Internet und TV

Information zur Internet und TV Versorgung hier


Immobilie anfragen


Ihre persönliche Beratung

Raiffeisen Immobilien Vermittlung Ges.m.b.H

Walter Haider

Raiffeisen Immobilien Vermittlung

E teamnoesued@riv.at

T +43517517

H +43 664 60 517 517 98