Immobilie merken

Neubauwohnungen in zentraler Lage in 2130 Mistelbach

Wohnung , 2130 Mistelbach

Lage der Immobilie

Lagebeschreibung


Das Neubau-Wohnhausprojekt in der Mitschastraße 26, 2130 Mistelbach befindet sich in zentrumsnaher Stadtlage mit ausgezeichneter infrastruktureller Versorgung. Der Standort verbindet eine ruhige, angenehme Wohnumgebung mit der unmittelbaren Nähe zu allen wichtigen Einrichtungen des täglichen Bedarfs.


Einkaufsmöglichkeiten, Supermärkte, Bäckereien, Apotheken sowie medizinische Versorgung befinden sich in fußläufiger Entfernung. Schulen, Kindergarten und weitere Betreuungseinrichtungen sind ebenfalls in wenigen Gehminuten erreichbar, was den Standort besonders attraktiv für Familien macht.


Die Öffentliche Verkehrsanbindung ist sehr gut: Der Bahnhof Mistelbach bietet regelmäßige Verbindungen Richtung Wien, die A5-Nordautobahn ist in kurzer Fahrzeit erreichbar und ermöglicht eine rasche Anbindung an das Wiener Stadtgebiet. Busverbindungen befinden sich ebenfalls in unmittelbarer Nähe.


Mistelbach überzeugt mit einem breiten Freizeit- und Kulturangebot, darunter Gastronomie, Naherholungsflächen sowie diverse Veranstaltungsorte. Die Kombination aus Stadtleben, guter Infrastruktur und naturnaher Umgebung schafft eine hohe Wohnqualität für unterschiedliche Zielgruppen.


Die Mitschastraße selbst ist eine ruhige Seitenstraße, die dennoch durch die Nähe zum Zentrum sämtliche Vorteile einer sehr gut erschlossenen Lage bietet. Somit eignet sich das Projekt ideal für Eigennutzer wie auch für Anleger.

Beschreibung der Immobilie

In der Mitschastraße 26 sind fünfzehn hochwertige, barrierefreie Wohnungen in moderner Massivbauweise entstanden. Auf einem ca. 1.376 m² großen Grundstück wurde ein Wohngebäude mit drei Geschossen (EG, 1. OG, DG) errichtet

Die Wohnungen bieten 18–76 m² Wohnnutzfläche und verfügen je nach Einheit über Balkon, Terrasse, Wohnterrasse oder Eigengarten. Jede Wohnung erhält ein eigenes Kellerabteil. Insgesamt stehen 24 PKW-Stellplätze sowie ein Kinderspielplatz im begrünten Außenbereich zur Verfügung.

Eckdaten

Objektnr: 00010110010009
Art: Wohnung
Land: Österreich
Baujahr: 2023
Kaufpreis: 221.700,00
Provision: 3% des Kaufpreises plus 20% USt.
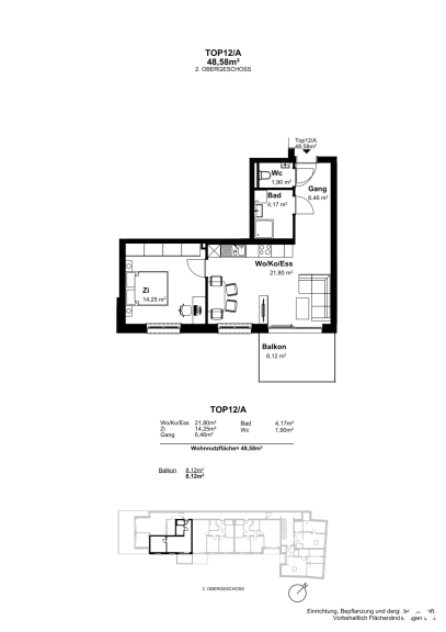
Wohnfläche: 48,58 m²
Zimmer: 2
Bäder: 1
WC: 1
Balkone: 1
Heizwärmebedarf:  B  45,70 kWh/m²a
fGEE:  C  1,21

Ausstattung

Fernwärme



Internet und TV

Information zur Internet und TV Versorgung hier




Immobilie anfragen




Ihre persönliche Beratung

Raiffeisen Immobilien Vermittlung Ges.m.b.H

Andreas Zach

Raiffeisen Immobilien Vermittlung

teamwien@riv.at

436646051751780