Exklusive Stadtwohnung mit 2 Terrassen 89m2, Grill und Jacuzzi! 4 Zimmern im DG in 1220 Wien.

Wohnung - Dachgeschoß, 1220 Wien,Donaustadt

Lage der Immobilie

Exklusive Stadtwohnung mit Die Wohnung befindet sich im Dachgeschoß eines Gebäudes in der 1220 Wien in Wien. Sie liegt in einer zentralen Lage mit vielen Einrichtungen in unmittelbarer Nähe. In der direkten Umgebung gibt es einen Arzt, eine Apotheke, eine Schule, einen Kindergarten, einen Supermarkt, eine Bäckerei, ein Einkaufszentrum, einen Geldautomaten, eine Bank, eine Post, eine Polizei sowie verschiedene öffentliche Verkehrsmittel wie Busse, U-Bahnen, Straßenbahnen und

Beschreibung der Immobilie

Ein wahres Juwel!

Willkommen in Ihrem neuen Zuhause - einem luxuriösen Penthouse, das Ihnen alles bietet für ein komfortables und stilvolles Leben.

Der Höhepunkt dieser Dachgeschosswohnung sind zwei spektakuläre Terrassen mit einem atemberaubenden Rundblick auf die Umgebung. 

Genießen Sie Ihren Morgenkaffee auf einer Terrasse und entspannen Sie sich am Abend auf der anderen, während Sie mit dem Glas Champagner im Jacuzzi den Sonnenuntergang beobachten. Die perfekte Kulisse für unvergessliche Momente mit Familie und Freunden in einer ruhigen und privaten Atmosphäre.

Der offene Grundriss und die großen Fenster sorgen für viel natürliches Licht und verleihen der Wohnung eine besondere Ausstrahlung.

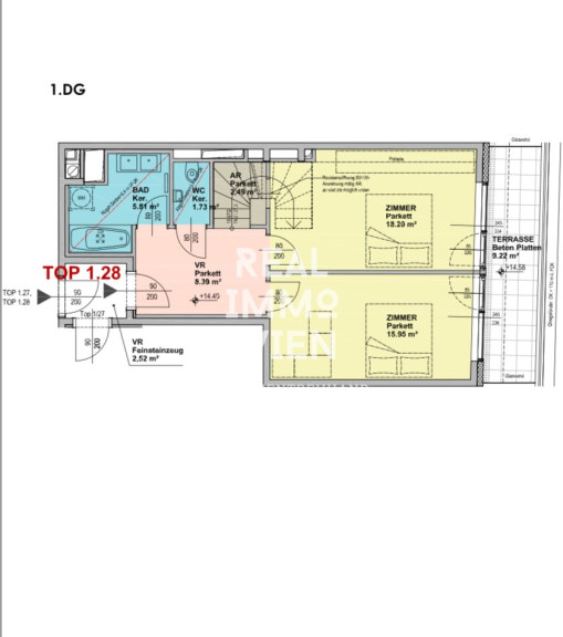
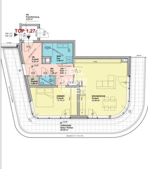
Die Fläche von 103,25m² erstreckt sich auf zwei Etagen mit vier geräumigen Zimmern, die ausreichend Platz haben für Ihre Familie und Ihre Träume.

Erste Ebene verfügt über 3 Zimmer:

  • TV-Zimmer (einen Salon)
  • ein Schlafzimmer (Master-Bedroom) 
  • ein Gästezimmer (oder Kinderzimmer)
  • 2 separate WCs
  • 2 Badezimmer (eine mit Badewanne und die andere mit der Duschkabine).

Auf der zweiten Ebene wartet auf Sie ein Wohnzimmer mit offener Wohnküche.

Das ganze Penthouse ist modern ausgestattet:

  • Bäder mit hochwertigen Armaturen und stilvollen Fliesen
  • Bodenheizung 
  • Klimaanlage 
  • Eigener Jacuzzi 

Zwei großartige Dachterrassen:

  • Erste Stock 45,81 Quadratmeter 
  • Zweiter Stock 202,59 Quadratmeter

Zwei Garagenstehplätze gehören auch dazu! 

Die Lage der Wohnung ist einzigartig! Ideal für Singles und die Familien. Dank der ausgezeichneten Verkehrsverbindungen sind Sie in kürzester Zeit im Stadtzentrum. Die Bushaltestelle und Straßenbahn sind nur 500 Meter, und die U-Bahn ist 500 Meter entfernt. 

Für den täglichen Bedarf finden Sie in der Umgebung alles, was Sie brauchen: eine Apotheke, Ärzte, Supermarkt, Bäckerei und ein Einkaufszentrum. Um bequem und stressfrei Ihre Einkäufe zu erledigen. In unmittelbarer Nähe befinden sich Schulen, Kindergärten und Spielplätze.

Diese Dachgeschosswohnung in 1220 Wien ist ein wahres Juwel und bietet Ihnen die perfekte Kombination aus Luxus, Komfort und Lage. Zögern Sie nicht länger und vereinbaren Sie noch heute einen Besichtigungstermin, um sich selbst von all den Vorzügen dieser Immobilie zu überzeugen. Wir freuen uns darauf, Ihnen Ihr neues Traumzuhause vorzustellen!

https://www.realimmo.wien/wohnung-kaufen


Infrastruktur / Entfernungen

Gesundheit
Arzt <500m
Apotheke <500m
Klinik <2.500m
Krankenhaus <3.500m

Kinder & Schulen
Schule <500m
Kindergarten <1.000m
Universität <2.000m
Höhere Schule <1.500m

Nahversorgung
Supermarkt <500m
Bäckerei <500m
Einkaufszentrum <500m

Sonstige
Geldautomat <500m
Bank <500m
Post <500m
Polizei <1.000m

Verkehr
Bus <500m
U-Bahn <500m
Straßenbahn <500m
Bahnhof <500m
Autobahnanschluss <2.000m

Angaben Entfernung Luftlinie / Quelle: OpenStreetMap

Eckdaten

Objektnr: 55590
Art: Wohnung - Dachgeschoß
Land: Österreich
Baujahr: 2014
Zustand: Gepflegt
Möbliert: Voll
Alter: Neubau
Kaufpreis: 1.200.000,00
Provision: 3% des Kaufpreises zzgl. 20% USt.
Wohnfläche: 103,25 m²
Nutzfläche: 103,25 m²
Zimmer: 4
Bäder: 2
WC: 2
Terrassen: 2
Heizwärmebedarf:  B  30,95 kWh/m²a
fGEE:  B  0,85
Immobilie merken Exposé

Ausstattung

Parkett, Fußbodenheizung, Einbauküche, Wohnküche / offene Küche, Personenaufzug, Nordbalkon, Südbalkon, Angeschl. Bar, Badewanne, Dusche, Kabel/Satelliten-TV, Tiefgarage


Internet und TV

Information zur Internet und TV Versorgung hier


Immobilie anfragen


Ihre persönliche Beratung

Real Immo Wien Immobilientreuhand - Inh. Gerald Frank

Ludmila Mogilevsky

Real Immo Wien Immobilientreuhand - Inh. Gerald Frank

E mogilevsky@realimmo.wien

T +4315120488

H +436642137925