Lage der Immobilie
Die Immobilie befindet sich in der begehrten und ruhigen Wohnlage des Keferfeldes. Das Umfeld bietet eine ideale Kombination aus angenehmer Nachbarschaft und hervorragender Infrastruktur. Das nahegelegene Hummelhofbad lädt zu Freizeit und Erholung ein, während Arzt, Apotheke und Bäckerei bequem zu Fuß erreichbar sind. Bus- und Straßenbahnhaltestellen befinden sich in unmittelbarer Nähe und sorgen für eine schnelle Anbindung in die Linzer Innenstadt. Familien profitieren zusätzlich von kurzen Wegen zu Kindergarten und Schule, die das Wohngebiet perfekt abrunden.Beschreibung der Immobilie
In bester Ruhelage des Keferfelds befindet sich dieses Grundstück mit Wohnhaus, das sowohl für sofortiges Wohnen als auch für Neubau- oder Umbauprojekte geeignet ist - hier stehen Ihnen alle Weg offen.
Am bestehenden Gebäude wurden bereits wesentliche Sanierungsarbeiten durchgeführt: Erneuerung bzw. Ergänzung von Elektro-, Heizungs- und Wasserinstallationen, neue Bodenbeläge im Wohnbereich und Obergeschoss, teils neue Innentüren und Fliesen sowie vorbereitete Heizungsverrohrung für alternative Energiequellen.
Das Badezimmer im Obergeschoss wurde vor ca. 15 Jahren modernisiert, im Erdgeschoss und Keller wurden neue und moderne Eingangstüren eingebaut.
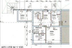
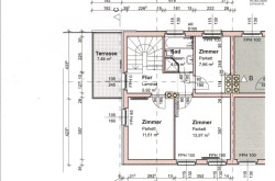
Die Raumaufteilung umfasst im Erdgeschoss einen Windfang, eine separate Küche, ein Wohn-Esszimmer und ein teilsaniertes WC. Im Obergeschoss befinden sich drei Zimmer und ein Bad mit Dusche, Badewanne und WC. Der Keller erstreckt sich unter dem gesamten Gebäude und bietet zusätzlichen Stauraum, weist jedoch noch Sanierungsbedarf auf - er bietet jedoch noch viel Potential.
Das Haus ist mit geringem Aufwand sofort beziehbar und bietet gleichzeitig großes Entwicklungspotenzial. Für umfangreichere Wohnprojekte steht eine mögliche Bruttogeschoßfläche von rund 291 m2 zur Verfügung.
Wir weisen darauf hin, dass wir als gewerblicher Doppelmakler tätig sind und im Erfolgsfall die gesetzliche Provision verrechnen. Besichtigungen und Auskünfte sind kostenlos.
Lassen Sie sich diese Gelegenheit nicht entgehen und vereinbaren Sie noch heute einen Besichtigungstermin. Wir freuen uns auf Ihre Kontaktaufnahme unter 0732 945658 oder willkommen@lewog.at.
Wir weisen darauf hin, dass zwischen dem Vermittler und dem zu vermittelnden Dritten ein familiäres oder wirtschaftliches Naheverhältnis besteht.
Der Vermittler ist als Doppelmakler tätig.
Infrastruktur / Entfernungen
Gesundheit
Arzt <500m
Apotheke <1.000m
Klinik <2.000m
Krankenhaus <1.000m
Kinder & Schulen
Kindergarten <500m
Schule <1.000m
Universität <2.000m
Höhere Schule <3.000m
Nahversorgung
Supermarkt <500m
Bäckerei <500m
Einkaufszentrum <1.000m
Sonstige
Bank <1.000m
Geldautomat <1.000m
Post <500m
Polizei <1.500m
Verkehr
Bus <500m
Straßenbahn <1.000m
Bahnhof <1.000m
Autobahnanschluss <1.000m
Flughafen <4.500m
Angaben Entfernung Luftlinie / Quelle: OpenStreetMap
Eckdaten
| Kaufpreis: | 513.000,00 € |
| Fläche: | 95,00 m² |
| Zimmer: | 4 |
Basisdaten zur Immobilie
| Objektnr: | 7047/99998024 |
| Art: | Haus - Doppelhaushälfte |
| Land: | Österreich |
| Baujahr: | 1958 |
| Alter: | Altbau |
| Kaufpreis: | 513.000,00 € |
| Provision: | 3% des Kaufpreises zzgl. 20% USt. |
| Betriebskosten: | 131,00 € |
| Heizkosten: | 263,00 € |
| Wohnfläche: | 95,00 m² |
| Grundstücksfl.: | 486,00 m² |
| Zimmer: | 4 |
| Bäder: | 1 |
| WC: | 2 |
| Keller: | 52,00 m² |
| Heizwärmebedarf: | F 213,00 kWh/m²a |
| fGEE: | E 2,65 |
Ausstattung
Dielenboden, Fliesen, Parkett, Öl, Zentralheizung, Einbauküche, Westbalkon, Garage
Internet und TV
Information zur Internet und TV Versorgung hier
Ihre persönliche Beratung
Immobilientreuhänder Thomas Watzinger
LEWOG Beteiligungs GmbH
willkommen@lewog.at
+43 732 94 58 56
+43 664 84 93 953
