Pinsdorf Harmony 5 - TOP 5 Baustart März 2026 Bezahlung nach Fertigstellung !!!

Wohnung - Etage, 4812 Pinsdorfberg , Moosweg 37

Beschreibung der Immobilie

Pinsdorf Harmony 5 – Leben in der Natur, nahe Gmunden Nebenwohnsitz ist möglich
Moderne barrierefreie Neubauwohnungen in sonniger Ruhelage

Nur rund 4 km vom Zentrum Gmundens entfernt entsteht in Pinsdorf ein kleines, feines Wohnprojekt mit fünf hochwertigen Neubauwohnungen zwischen 61 m² und 114 m² – eingebettet in herrliche Natur und mit bestem Anschluss an Stadt und Infrastruktur.

Die naturnahe Umgebung mit weitläufigen Grünflächen lädt zum Entspannen und Wohlfühlen ein. Trotz der idyllischen Lage erreichen Sie das Stadtzentrum von Gmunden in wenigen Minuten – sowohl mit dem Auto als auch mit der Bahn.

Jede Wohnung verfügt über eine großzügige südseitige Terrasse oder einen eigenen Garten. Die energieeffiziente Beheizung erfolgt über eine moderne Luftwärmepumpe – nachhaltig, umweltschonend und zukunftssicher.

Risikofreie Abwicklung:

- Reservierung bei Kaufinteresse

- Die gesamte Bezahlung erfolgt erst nach Fertigstellung der Wohnung

Ihr Vorteil: Keine Anzahlung bzw laufenden Zahlungen gemäß Baufortschritt



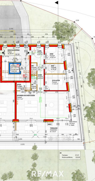
Raumaufteilung:

61,19 m² Terrasse
52,11 m² Wohnen Essen Kochen
11,93 m² Schlafzimmer
10,62 m² Zimmer
6,76 m² Bad
6,97 m² Garderobe
6,6 m² Speis und Abstellraum
WC und Gang


Große Terrassen oder Eigengärten in Südausrichtung

Ruhige, sonnige Lage inmitten der Natur

Moderne Luftwärmepumpe für nachhaltige Energieversorgung

10 Kfz-Stellplätze (Kaufpreis je Stellplatz: € 12.000,-)




Lebensqualität im Salzkammergut

Die Lage in Pinsdorf, am Tor zum Salzkammergut, vereint naturnahes Wohnen mit der Nähe zu einer der schönsten Städte Oberösterreichs. Gmunden – direkt am Traunsee gelegen – begeistert mit historischer Altstadt, herrlichem Seezugang, vielfältigem Kulturangebot und einer ausgezeichneten Infrastruktur. Schulen, Geschäfte, Cafés und Freizeiteinrichtungen sind schnell erreichbar und machen die Region für alle Generationen attraktiv. Der nächste Eurospar ist nur 500 m entfernt.

Perfekte Verkehrsanbindung

Über die nahe B145 gelangen Sie rasch zu den Autobahnauffahrten Regau oder Steyrermühl. Linz und Salzburg erreichen Sie in unter einer Stunde. So genießen Sie die Ruhe des Landlebens, ohne auf urbane Flexibilität verzichten zu müssen.

Geplanter Projektzeitraum:

Baustart: März 2026

Fertigstellung: voraussichtlich September 2027

Jetzt vormerken lassen!

Gerne senden wir Ihnen unser detailliertes Exposé mit allen verfügbaren Grundrissen, der Bau- und Ausstattungsbeschreibung sowie der aktuellen Preisliste. Die Download-Links zu allen Unterlagen erhalten Sie nach Kontaktaufnahme.

Gemäß § 5, Abs. 3 Maklergesetz weisen wir daraufhin, dass wir als Doppelmakler tätig sind.
Wir bitten um Verständnis, dass wir aufgrund der Nachweispflicht gegenüber dem Abgeber nur Anfragen mit vollständiger Angabe der Adresse und Telefonnummer
bearbeiten können.
Alle Angaben wurden nach bestem Wissen und Gewissen erstellt.
Für Auskünfte und Angaben, die uns von Seiten der Eigentümer und Dritten zur
Verfügung gestellt wurden, übernehmen wir keine Haftung.
Dieses Angebot ist unverbindlich und freibleibend. Zwischenverwertung, Irrtümer, Druckfehler und Änderungen vorbehalten.
Angaben gemäß gesetzlichem Erfordernis:
Heizwärmebedarf:43.0 kWh/(m²a)
Klasse Heizwärmebedarf:B
Faktor Gesamtenergieeffizienz:0.74
Klasse Faktor Gesamtenergieeffizienz:A

Eckdaten

Objektnr: 3845_526
Art: Wohnung - Etage
Land: Österreich
Zustand: Erstbezug
Alter: Neubau
Kaufpreis: 689.000,00
Provision: 3.00 %
Wohnfläche: 103,56 m²
Zimmer: 3
Bäder: 1
WC: 1
Terrassen: 1
Stellplätze: 1
Keller: 7,83 m²
Heizwärmebedarf:  B  43,00 kWh/m²a
fGEE:  A  0,74
Immobilie merken Exposé

Ausstattung

Erdwärme, Zentralheizung, Personenaufzug, Parkplatz


Internet und TV

Information zur Internet und TV Versorgung hier


Immobilie anfragen


Ihre persönliche Beratung

RE/MAX Select

Johannes Starrermayr

RE/MAX Select

E j.starrermayr@remax-select.at

H +43 664 884 305 75