5-Zimmer-Wohnung - Homeoffice/Büro/Ordination möglich - 2 Eingänge - im attraktiven Wildgarten-Viertel - Provisionsfrei für Käufer:innen

Wohnung , 1120 Wien , Lore-Kutschera-Weg 12

Beschreibung der Immobilie

m Wildgarten, 12.Bezirk, sind die letzten Eigentumswohnungen bereit für ihre neuen Bewohner:innen.

Der Wildgarten ist ein vielseitiges Wohnquartier, das sowohl urbane und ländliche Qualitäten verbindet und für ein gemeinschaftliches Miteinander steht.

Das autofreie Quartier verfügt über eine sehr vielseitige Bebauung sowie zahlreichen Grünflächen, Ruhe- und Begegnungszonen, Gemeinschaftsgärten mit Hochbeeten und Naschhecken und einem offenen Freiraumkonzept. Das Nachbarschaftszentrum bietet zusätzliche Indoor-Räumlichkeiten wie Büros, Veranstaltungsräume und einer Werkstatt. Zusätzlich gibt es im Wildgarten einen Co-Working Space, wo flexibel oder auch dauerhaft Arbeitsplätze gemietet werden können.

Das Infrastrukturangebot bietet derzeit einen Billa direkt im Wohnqaurtier sowie eine Pizzeria. Für alle jene, die ein Auto besitzen, können Tiefgaragenplätze in der Sammelgarage gemietet werden. Außenliegende Parkplätze stehen entlang des Quartiers zur Verfügung. Die öffentliche Anbindung ist durch die Buslinie 63A gewährleistet (Richtung U4 Meidling Hauptstraße und U6 Niederhofstraße). Ab vorauss. 2032 soll es eine neue S-Bahn Station in der Benyastraße geben.

Highlights Bauplatz 11+20:

  • 9 Häuser in verschiedenen Größen
  • 3 Eigentumswohnungen noch verfügbar
  • 2 bis 3 Zimmer
  • ca. 49 m² bis 75 m² Wohnfläche
  • 1 Gewerbeeinheit (Büro/Ordination) mit 123 m² noch verfügbar - Verkauf im Edelrohbau
  • Balkon/ Loggia/ Terrasse/ Eigengarten im offenen Freiraumkonzept
  • autofreies Gelände
  • Tiefgaragenplätze zur Miete
  • Begegnungszonen, Gemeinschaftsgärten und Naschgärten
  • Kindergarten und Spielplätze im Grünen
  • Billa direkt am Gelände
  • Fußbodenheizung
  • provisionsfrei für Käufer:innen

Gerne präsentieren wir Ihnen den Wildgarten und die verfügbaren Wohnungen im Rahmen einer Besichtigung. Auch bei Fragen rund um die Finanzierung unterstützen wir Sie gerne und freuen uns über Ihre Anfrage!

Infrastruktur / Entfernungen

Gesundheit
Arzt <1.025m
Apotheke <825m
Klinik <1.500m
Krankenhaus <1.025m

Kinder & Schulen
Schule <575m
Kindergarten <250m
Universität <3.700m
Höhere Schule <3.500m

Nahversorgung
Supermarkt <300m
Bäckerei <500m
Einkaufszentrum <1.525m

Sonstige
Geldautomat <1.250m
Bank <1.275m
Post <1.475m
Polizei <1.500m

Verkehr
Bus <200m
U-Bahn <1.625m
Straßenbahn <1.325m
Bahnhof <1.375m
Autobahnanschluss <1.700m

Angaben Entfernung Luftlinie / Quelle: OpenStreetMap

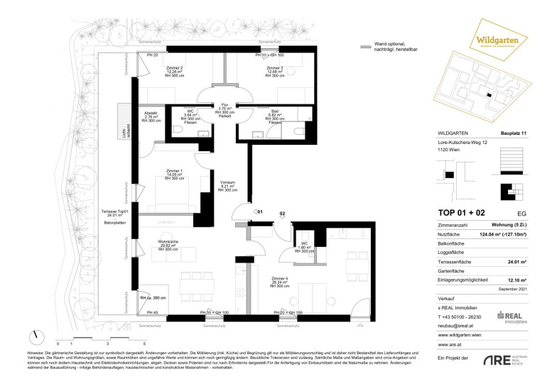
Eckdaten

Objektnr: 960/74263
Art: Wohnung
Land: Österreich
Kaufpreis: 549.000,00
Provision: PROVISIONSFREI
Nutzfläche: 124,04 m²
Zimmer: 5
Bäder: 1
WC: 3
Terrassen: 1
Keller: 12,10 m²
Heizwärmebedarf:  B  26,73 kWh/m²a
fGEE:  A+  0,67
Immobilie merken Exposé

Ausstattung

Personenaufzug, Dusche


Internet und TV

Information zur Internet und TV Versorgung hier


Immobilie anfragen


Ihre persönliche Beratung

Region Wien & NÖ Ost

Mag. Alexander Kepka

s REAL Immobilienvermittlung GmbH

E alexander.kepka@sreal.at

T +43 (0)5 0100 - 26330

H +43 664 8181970