NEUBAUWOHNUNG MIT 2 BALKONE

Wohnung , 1230 Wien

Lage der Immobilie

- Ruhige Wohngegend mit guter Infrastruktur und vielen Grünflächen - U-Bahnstaion sowie Baadner Bahn zu Fuss in wenigen Minuten erreichbar - Knoten Vösendorf (A2, A21, S1) sowie Südost Tangente (A23) in wenigen Fahrminuten erreichbar - Vielfältige Einkaufsmöglichkeiten, Restaurants und Schulen - Verschiedene Freizeit- und Sportmöglichkeiten in der Umgebung (z.B. Golfplatz, Fitnessstudio, Schwimmbad)

Beschreibung der Immobilie

Zum Verkauf gelangen 16 topmoderne, schlüsselfertige Wohnungen mit Außenflächen (Garten, Balkon, Terrassen) sowie 1 Gechäftslokal und 9 Tiefgaragen-Stellplätze.

Die ideal aufgeteilten 1 bis 4 Zimmer Wohnungen können auch als Anlegerwohnungen zum Nettopreis (auf Anfrage) erworben werden.

Ausgestattet mit moderner und hochwertiger Technik sowie zeitlosem Design bieten sie außergewöhnlichen Wohnkomfort.

Die Wohnungen sind vorraussichtlich ab dem 4. Quartal 2024 bezugsfertig.

Highlights:

  • Ziegelmassiv Bauweise
  • Dämmung für niedrigen Heizbedarf
  • Luft-Wasser-Wärmepumpe mit PV-Unterstützung für optimalen Energieverbrauch
  • Dielen-Parkettboden
  • Fussbodenheizung
  • 3-Fach Isolierverglasung Fenster inkl. UV-Schutz
  • Vorbereitung für Kimaanlagen (Split-Geräte) in den Wohnungen
  • E-Ladestation für jeden Garagenplatz
  • Abstellraum für Kinderwagen/Fahrrad
  • Lift
  • Keller

Sollten Sie an diesem Objekt Interesse haben und einen Besichtigungstermin wünschen oder sonstige Fragen haben, so ersuchen wir Sie, sich mit uns in Verbindung zu setzen.

Top 1: Geschäftslokal 28m³

Top 2: Gartenwohnung 37m²

Top 3: Gartenwohnung 47m²

Top 4: 71m² + 2 Balkone

Top 5: 73m² + 2 Balkone

Top 6: 39m²

Top 7: 38m²

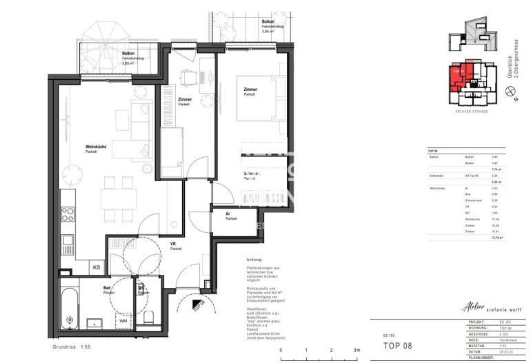
Top 8: 73m² + 2 Balkone

Top 9: 73m² + 2 Balkone

Top 10: 38m²

Top 11: 39m²

Top 12: 85m² Dachgeschoss + Terrasse

Top 13: 115m² Dachgeschoss + Terrasse

Top 15: 68m² Stadthaus + Garten + Dachterrasse

Top 16: 52m² Stadthaus + Garten

Top 17: 43m² Stadthaus + Garten

Top 18: 88m² Stadthaus + Dachterrasse

Der Verkaufspreis für Anleger beträgt 431.800€ netto.

Infrastruktur / Entfernungen

Gesundheit
Arzt <500m
Apotheke <500m
Klinik <2.000m
Krankenhaus <2.000m

Kinder & Schulen
Schule <1.000m
Kindergarten <500m
Universität <5.000m
Höhere Schule <4.500m

Nahversorgung
Supermarkt <500m
Bäckerei <1.500m
Einkaufszentrum <1.000m

Sonstige
Geldautomat <500m
Bank <1.500m
Post <1.500m
Polizei <1.500m

Verkehr
Bus <500m
U-Bahn <1.000m
Straßenbahn <3.000m
Bahnhof <500m
Autobahnanschluss <1.000m

Angaben Entfernung Luftlinie / Quelle: OpenStreetMap

Eckdaten

Objektnr: 55624
Art: Wohnung
Land: Österreich
Baujahr: 2024
Alter: Neubau
Kaufpreis: 510.400,00
Kaufpreis / m²: auf Anfrage
Provision: 3% des Kaufpreises zzgl. 20% USt.
Wohnfläche: 70,93 m²
Zimmer: 3,50
Balkone: 2
Heizwärmebedarf:  B  36,40 kWh/m²a
fGEE:  A+  0,68
Immobilie merken Exposé

Internet und TV

Information zur Internet und TV Versorgung hier


Immobilie anfragen


Ihre persönliche Beratung

Real Immo Wien Immobilientreuhand - Inh. Gerald Frank

Maruf Saltaji

Real Immo Wien Immobilientreuhand - Inh. Gerald Frank

E m.saltaji@realimmo.wien

T +43 15120488

H +43 66499524938