Umgebautes Presshaus in Raggendorf

Haus - Einfamilienhaus, 2215 Raggendorf

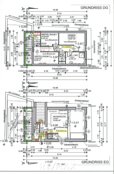
Beschreibung der Immobilie

Highlights der Immobilie auf einen Blick:

- Sehr ruhige Lage
- Charme mit alter Kellerröhre
- 2018 saniert

Achtung: Kein Hauptwohnsitz möglich

Sie haben Interesse an diesem großartigen Objekt? Senden Sie uns eine Anfrage und Sie erhalten genauere Details sowie weitere Bilder der Immobilie!

Sie haben die Finanzierung Ihres Wohntraums noch nicht abgeklärt?
Finden Sie mehr Informationen, um Ihren Wunsch für ein neues Eigenheim zu realisieren:
Raiffeisen Wohnkredit: Hier klicken

Eckdaten

Objektnr: 3679_1315
Art: Haus - Einfamilienhaus
Land: Österreich
Möbliert: Teil
Kaufpreis: 50.000,00
Provision: 3.00 %
Wohnfläche: 57,00 m²
Grundstücksfl.: 91,00 m²
Zimmer: 4
Bäder: 1
WC: 2
Immobilie merken Exposé

Internet und TV

Information zur Internet und TV Versorgung hier


Immobilie anfragen


Ihre persönliche Beratung

RE/MAX Eco in Gänserndorf

Philipp Puschina

RE/MAX Eco in Gänserndorf

E p.puschina@remax-eco.at

H +43 660 402 39 37