Lagerflächen in der Fabrik 1230 zu mieten

Halle / Lager / Produktion - Lager, 1230 Wien

Lage der Immobilie

U-Bahn: U6 Bus: 58A, 58B, 60A, 62A, 64A, 66A Zug: S2, S3, S4

Beschreibung der Immobilie

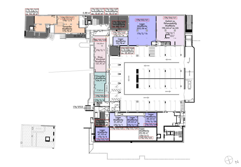
Lagerflächen in der Fabrik 1230 zu mieten Mitten im aufstrebenden Stadtteil Atzgersdorf im 23. Bezirk in Wien bietet die Fabrik1230 moderne, flexibel gestaltbare Büro-, Ordinations- und Gewerbeflächen in einem außergewöhnlichen Ambiente. Die Kombination aus historischem Industriecharme und zeitgemäßer Architektur schafft ein inspirierendes Arbeitsumfeld. Darüber hinaus ist das Gebäude mit der ÖGNI-Platin-Zertifizierung ausgezeichnet, was höchste Standards in Nachhaltigkeit, Energieeffizienz und Nutzerkomfort gewährleistet. Die Anbindung an den öffentlichen und individuellen Verkehr garantiert beste Erreichbarkeit. Zusätzlich stehen 42 Stellplätze in der Tiefgarage zur Verfügung. Das Projekt umfasst rund 4.000 m² Büroflächen, ein 1.400 m² großes Gesundheitszentrum mit Apotheke sowie vielseitige Veranstaltungsbereiche. Großzügige Terrassen mit grünen Akzenten schaffen eine angenehme Atmosphäre und fördern die Work-Life-Balance. Ein Fitnesscenter sowie die geplante Gastronomie im historischen Gebäudeteil runden das Angebot ab. Verfügbare Büroflächen: 1. OG, Top 02.101, ca. 157,65 m² 1. OG, Top 02.102, ca. 102,98 m² 1. OG, Top 03.101, ca. 98,06 m² 3. OG, Top 01.302, ca. 163,83 m² + 54,79 m² Terrasse 3. OG, Top 02.301, ca. 504,84 m² + ca. 258,18 m² Terrasse 3. OG, Top 01.308, ca. 84,17 m² 4. OG, Top 02.401, ca. 432,05 m² + ca. 9,62 m² Terrasse 4. OG, Top 01.402, ca. 445,54 m² + 9,62 m² Terrasse 4. OG, Top 01.401, ca. 170,11 m² 5. OG, Top 02.501, ca. 365,61 m² + 102,86 m² Terrasse 5. OG, Top 01.501, ca. 316,51 m² + 62,60 m² Terrasse Nettomiete/m²/Monat: € 14,00 - € 18,00 Verfügbare Ordinationsflächen: 2. OG, Top 01.202.8, ca. 29,76 m² 2. OG, Top 01.202.7, ca. 23,85 m² 2. OG, Top 01.202.6, ca. 23,89 m² 2. OG, Top 01.202.5, ca. 24,24 m² 2. OG, Top 01.202.4, ca. 24,28 m² 2. OG, Top 01.202.3, ca. 23,92 m² Nettomiete/m²/Monat: € 25,00 Betriebskostenakonto/netto/m²/Monat: dzt. ca. € 3,00 Terrasse Nettomiete/m²/Monat: € 5,00 UG, Top 02.01, ca. 202,06 m² - Lager UG, Top 02.02, ca. 40,65 m² - Lager UG, Top 02.03, ca. 131,91 m² - Shop, Werkstatt UG, Top 03.01, ca. 104,91 m² - Gewerbe UG, Top 01.01, ca. 172,76 m² - Gewerbe Nettomiete/m²/Monat: € 6,00 – € 8,00 Miete Stellplatz zu je € 120,00 zzgl. Betriebskosten iHv ca. € 30 zzgl. USt (p. M.)

Eckdaten

Objektnr: 109240613_33
Art: Halle / Lager / Produktion - Lager
Land: Österreich
Baujahr: 2024
Gesamtmiete: 2.182,25
Kaltmiete (netto): 1.212,36 €
Kaltmiete: 1.818,54 €
Miete / m²: 6,00 €
Provision: 3 BMM zzgl. USt.
Betriebskosten: 606,18 €
Lagerfläche: 202,06 m²
Heizwärmebedarf:  C  61,40 kWh/m²a
fGEE:  A+  0,63
Immobilie merken Exposé

Internet und TV

Information zur Internet und TV Versorgung hier


Immobilie anfragen


Ihre persönliche Beratung

ÖRAG Immobilien Vermittlung GmbH

Stefan Patzl

ÖRAG Immobilien Vermittlung GmbH

E stefan.patzl@oerag.at

T 0043153473249