Wohnen im Herzen Wiens: Charmante Altbauwohnung Nähe Graben / Kohlmarkt / Goldenes Quartier / Stephansplatz
Wohnung
,
1010
Wien
Beschreibung der Immobilie
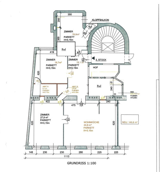
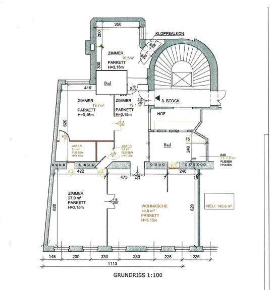
Zur Vermietung gelangt eine klassische Altbauwohnung in einem repräsentativem Althaus Nähe Graben / Kohlmarkt / Goldenes Quartier / Stephansplatz.
Diese Wohnung befindet sich im 3. Liftstock und bietet folgende Raumaufteilung:
- großzügiger Vorraum
- Wohnküche
- 3 Schlafzimmer:
- 1 Schlafzimmer mit Klopfbalkon
- 1 Schlafzimmer mit Garderobe
- 1 weiteres Schlafzimmer
- 2 Bader:
- 1 Bad mit Dusche und WC
- 1 Bad mit Badewanne, Dusche, WC und Waschmaschine
- AR
Ausstattung
Die Wohnung bietet einen durchgehend verlegten Parkettboden in den Wohn- und Schlafräumen, sämtliche Sanitärräume sind verfliest. Für typisches Altbauflair sorgen klassische Kastenfenster und Flügeltüren. Ein Highlight ist sicherlich die moderne Komplettküche mit verlängertem Stauraum in den Essbereich, welche mit Mikrowelle, Backofen, Geschirrspüler und Gasherd, Kühl- und Gefrierkombi ausgestattet ist. Geheizt wird mittels Gasetagenheizung. Die Raumhöhe beträgt 3,15 m.
Lage
Diese Citylage bietet Ihnen zahlreiche Einkaufsmöglichkeiten, Cafés und Restaurants, sowie ein umfangreiches Angebot an kulturellen Aktivitäten in der Umgebung. Beste Infrastruktur und öffentliche Verkehrsanbindung (U1,U3, Bus 1A, 2A) sind gegeben.
Besonderheiten
- Tolle und zentrale Innenstadtlage
- Moderne Ausstattung kombiniert mit charmantem Altbauflair
- Wunderschönes Haus aus der Jahrhundertwende
Hinweis gemäß Energieausweisvorlagegesetz: Ein Energieausweis wurde vom Eigentümer bzw. Verkäufer, nach unserer Aufklärung über die generell geltende Vorlagepflicht, sowie Aufforderung zu seiner Erstellung noch nicht vorgelegt. Daher gilt zumindest eine dem Alter und der Art des Gebäudes entsprechende Gesamtenergieeffizienz als vereinbart. Wir übernehmen keinerlei Gewähr oder Haftung für die tatsächliche Energieeffizienz der angebotenen Immobilie.
Wir weisen darauf hin, dass zwischen dem Vermittler und dem zu vermittelnden Dritten ein familiäres oder wirtschaftliches Naheverhältnis besteht.
Der Immobilienmakler erklärt, dass er – entgegen dem in der Immobilienwirtschaft üblichen Geschäftsgebrauch des Doppelmaklers – einseitig nur für den Vermieter tätig ist.
Infrastruktur / Entfernungen
Gesundheit
Arzt <500m
Apotheke <500m
Klinik <1.000m
Krankenhaus <1.500m
Kinder & Schulen
Schule <500m
Kindergarten <1.000m
Universität <500m
Höhere Schule <500m
Nahversorgung
Supermarkt <500m
Bäckerei <500m
Einkaufszentrum <1.000m
Sonstige
Geldautomat <500m
Bank <500m
Post <500m
Polizei <500m
Verkehr
Bus <500m
U-Bahn <500m
Straßenbahn <1.000m
Bahnhof <500m
Autobahnanschluss <3.500m
Angaben Entfernung Luftlinie / Quelle: OpenStreetMap
Eckdaten
| Gesamtmiete: | 3.752,17 € |
| Fläche: | 146,60 m² |
| Zimmer: | 4 |
Basisdaten zur Immobilie
| Objektnr: | 7286 |
| Art: | Wohnung |
| Land: | Österreich |
| Baujahr: | 1912 |
| Zustand: | Gepflegt |
| Alter: | Altbau |
| Gesamtmiete: | 3.752,17 € |
| Kaltmiete (netto): | 3.071,25 € |
| Kaltmiete: | 3.411,06 € |
| Provision: | Gemäß Erstauftraggeberprinzip bezahlt der Abgeber die Provision. |
| Betriebskosten: | 299,81 € |
| MwSt Gesamt: | 341,11 € |
| Wohnfläche: | 146,60 m² |
| Zimmer: | 4 |
| Bäder: | 2 |
| WC: | 2 |
| Balkone: | 1 |
Ausstattung
Parkett, Fliesen, Gas, Etagenheizung, Wohnküche / offene Küche, Personenaufzug, Bad mit Fenster, Badewanne, Dusche
Internet und TV
Information zur Internet und TV Versorgung hier
Ihre persönliche Beratung
Sabrina Ritter
Spiegelfeld Immobilien GmbH
sabrina.ritter@spiegelfeld.eu
+43 1 5132313-20
