360° TOUR // GESCHÄFTSLOKAL / BÜROLOKAL
Büro / Praxis
,
1030
Wien
Beschreibung der Immobilie
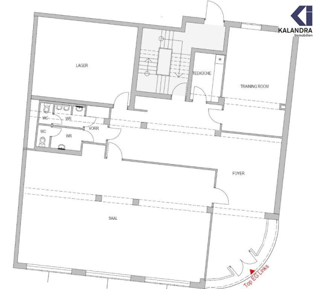
Diese ca. 241m² große Geschäftsfläche ist im Erdgeschoß eines Neubaugebäudes (BJ 1988) gelegen und bietet folgende
Raumaufteilung:
Vorraum/ großer Empfang, 6 Räume unterschiedlicher Größe (siehe Plan), Teeküche, 3 WC,
ein straßenseitiger, ein hofseitiger Zugang.
Ausstattung:
- in den Räumen durchgehend PVC-Boden,
- Naßräume verfliest,
- eingerichtete Teeküche,
- Parkgarage mit 80 PKW-Stellplätzen im Haus,
- Haus-Zentralheizung.
Die monatlichen Kosten für die Beheizung betragen dzt. ca. € 125,- + 20% USt. und werden gesondert vorgeschrieben.
Es wird ein auf 10 Jahre befristeter Mietvertrag mit 3-jährigem, mieterseitigen Kündigungsverzicht angeboten.
Kautionsbetrag: 6 Bruttomonatsmieten (Bankgarantie möglich)
360° Tour:
https://360.kalandra.at/view/portal/id/VV1LS
Infrastruktur / Entfernungen
Gesundheit
Arzt <500m
Apotheke <500m
Klinik <500m
Krankenhaus <500m
Kinder & Schulen
Schule <500m
Kindergarten <500m
Universität <500m
Höhere Schule <500m
Nahversorgung
Supermarkt <500m
Bäckerei <500m
Einkaufszentrum <1.000m
Sonstige
Geldautomat <500m
Bank <500m
Post <500m
Polizei <500m
Verkehr
Bus <500m
U-Bahn <1.000m
Straßenbahn <500m
Bahnhof <500m
Autobahnanschluss <2.000m
Angaben Entfernung Luftlinie / Quelle: OpenStreetMap
Eckdaten
| Kaltmiete (netto): | 2.940,00 € |
| Fläche: | 245,00 m² |
| Zimmer: | 4 |
Basisdaten zur Immobilie
| Objektnr: | 17875 |
| Art: | Büro / Praxis |
| Land: | Österreich |
| Baujahr: | 1900 |
| Zustand: | Neuwertig |
| Kaltmiete (netto): | 2.940,00 € |
| Kaltmiete: | 3.510,85 € |
| Provision: | 3 Bruttomonatsmieten zzgl. 20% USt. |
| Betriebskosten: | 570,85 € |
| MwSt Gesamt: | 702,17 € |
| Nutzfläche: | 245,00 m² |
| Zimmer: | 4 |
| WC: | 2 |
| Terrassen: | 1 |
| Stellplätze: | 1 |
Ausstattung
Zentralheizung, Personenaufzug
Internet und TV
Information zur Internet und TV Versorgung hier
Ihre persönliche Beratung
Mag. Robin Kalandra
robin@kalandra.at
+43-1533326913
+43-69911804004
F +43-1-533-32-69-20

