Exklusives Villengrundstück in Toplage Rosenberg – 1.900 m² für anspruchsvolle Wohnkonzepte
Haus
- Einfamilienhaus,
8010
Graz
Lage der Immobilie
Die Liegenschaft befindet sich in einer der besten und prestigeträchtigsten Wohnlagen von Graz, am Rosenberg im Bezirk Geidorf. Das unmittelbare Umfeld ist geprägt von repräsentativen Villen, großzügigen Gärten und einer äußerst geringen Bebauungsdichte. Die Position am Ende einer Sackgasse garantiert ein Höchstmaß an Ruhe, Privatsphäre und Sicherheit – Eigenschaften, die diese Lage seit Jahrzehnten besonders wertstabil und gefragt machen. Gleichzeitig genießen Sie eine ausgezeichnete Anbindung an das urbane Leben: Schulen, Universität, medizinische Versorgung, Nahversorgung sowie öffentliche Verkehrsmittel sind in kurzer Distanz erreichbar, ebenso das Grazer Stadtzentrum. Die Kombination aus absoluter Ruhelage, grüner Umgebung und städtischer Nähe macht diese Wohngegend zu einer der exklusivsten Adressen der Stadt – ideal für anspruchsvolle Eigennutzer mit langfristiger Perspektive.Beschreibung der Immobilie
In einer der begehrtesten und exklusivsten Wohnlagen von Graz gelangt dieses außergewöhnliche Baugrundstück zum Verkauf. Die Liegenschaft bietet ideale Voraussetzungen für die Realisierung einer großzügigen Villa oder eines architektonisch anspruchsvollen Wohnrefugiums für höchste Ansprüche.
Das laut Grundbuch rund 1.938 m² große Grundstück ist als WR – Wohnen Rein gewidmet und weist eine Bebauungsdichte von 0,2–0,3 auf. Dadurch eröffnet sich ein attraktives Entwicklungspotenzial mit einer möglichen Bruttogeschossfläche von ca. 390 bis 580 m² – ein seltener Spielraum in dieser Lage. Das direkte Straßengrundstück vor dem Haus steht auch im Eigentum und hat eine separate Fläche von ca. 182 m².
Die leichte Hanglage mit Südwest-Ausrichtung sorgt für hervorragende Lichtverhältnisse, ganztägige Sonne und ein besonders angenehmes Wohngefühl. Der Blick ins Grüne unterstreicht den exklusiven Rückzugscharakter der Liegenschaft.
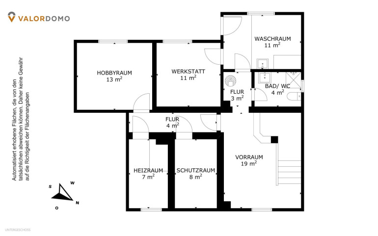
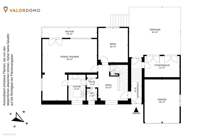
Auf dem Grundstück befindet sich derzeit ein Einfamilienhaus aus den 1970er-Jahren in renovierungsbedürftigem Zustand. Der bestehende Altbestand kann entweder modernisiert oder im Zuge einer Neubebauung ersetzt werden – ganz nach Ihren individuellen Vorstellungen. Positiv hervorzuheben sind bereits getätigte Investitionen wie die Dacherneuerung inklusive Wärmedämmung (2015) sowie die Glasfaseranbindung bis auf das Grundstück.
Dieses Grundstück richtet sich an Käufer, die keine Kompromisse eingehen möchten und einen Ort suchen, an dem sich architektonische Qualität, Lage und Privatsphäre auf höchstem Niveau vereinen.
Auf Anfrage stellen wir Ihnen gerne detaillierte Unterlagen, Kataster- und Widmungspläne, Luftaufnahmen sowie einen virtuellen Rundgang durch den Altbestand zur Verfügung.
Noch nichts gefunden? Wir informieren Sie über geeignete Immobilienangebote noch vor allen anderen.
Legen Sie jetzt Ihren individuellen Suchagenten unter folgendem Link an. Wir schicken Ihnen passende Immobilien exklusiv vorab zu.
Suchagent anlegen - https://valordomo-immobilien.service.immo/registrieren/de
Der Vermittler ist als Doppelmakler tätig.
Infrastruktur / Entfernungen
Gesundheit
Arzt <500m
Apotheke <1.000m
Klinik <1.000m
Krankenhaus <1.000m
Kinder & Schulen
Schule <500m
Kindergarten <500m
Universität <500m
Höhere Schule <1.000m
Nahversorgung
Supermarkt <1.000m
Bäckerei <1.000m
Einkaufszentrum <3.000m
Sonstige
Geldautomat <1.000m
Bank <1.000m
Post <1.500m
Polizei <2.000m
Verkehr
Bus <500m
Straßenbahn <1.000m
Bahnhof <2.000m
Autobahnanschluss <7.000m
Angaben Entfernung Luftlinie / Quelle: OpenStreetMap
Eckdaten
| Objektnr: | 5408/432 |
| Art: | Haus - Einfamilienhaus |
| Land: | Österreich |
| Baujahr: | 1971 |
| Zustand: | Teil_vollrenovierungsbed |
| Alter: | Neubau |
| Kaufpreis: | 1.490.000,00 € |
| Provision: | 3% des Kaufpreises zzgl. 20% USt. |
| Betriebskosten: | 90,00 € |
| Heizkosten: | 125,00 € |
| MwSt Gesamt: | 34,00 € |
| Wohnfläche: | 220,00 m² |
| Grundstücksfl.: | 1.938,00 m² |
| Gesamtfläche: | 2.120,00 m² |
| Zimmer: | 7 |
| Bäder: | 2 |
| WC: | 3 |
| Balkone: | 1 |
| Terrassen: | 1 |
| Keller: | 100,00 m² |
| Heizwärmebedarf: | E 178,00 kWh/m²a |
| fGEE: | D 2,48 |
Ausstattung
Fliesen, Kunststoffboden, Teppichboden, Parkett, Öl, Zentralheizung, Einbauküche, Bad mit Fenster, Badewanne, Dusche, Garage, Parkplatz
Internet und TV
Information zur Internet und TV Versorgung hier
Ihre persönliche Beratung
DI (FH) Julian Englich
ValorDomo Immobilien GmbH
office@valordomo.com
+43 676 3136555
+43 676 3136555
