ab 1.3.2026 – 2 Zimmer Neubauwohnung mit westseitiger Terrasse + Garten !!!

Wohnung , 1120 Wien , Anton-Scharff-Gasse

Lage der Immobilie

Anton-Scharff-Gasse Gaudenzdorfer Gürtel Schönbrunnerstraße Bruno-Kreisky-Park

Beschreibung der Immobilie

Liebe Wohnungssuchende!

Da die Wohnung aktuell noch vermietet ist und wir Besichtigungen mit den Mietern koordinieren müssen, bitten wir um etwas Vorlaufzeit und um Übermittlung konkreter Terminvorschläge Ihrerseits über das  Kontaktformular:

www.sulek.immobilien/besichtigung (bitte Herrn Michael Stadlmayr auswählen!)

Wenn Sie einen Besichtigungstermin wünschen, teilen Sie uns bitte im Vorfeld folgendes mit:

  • Einzugsdatum: Wann ist Ihr gewünschter Einzugstermin?
  • Haushaltsgröße: Wie viele Personen möchten einziehen?
  • Haushaltsnettoeinkommen: Was machen Sie beruflich?

*************************************

HINWEIS:

Die Bildaufnahmen stammen aus der Wiedervermarktung einer baugleichen Wohnung im Erdgeschoss bei unterschiedlichen Gartengrößen!Die Wohnung wird unmöbliert vergeben!

*************************************

Wohnung.

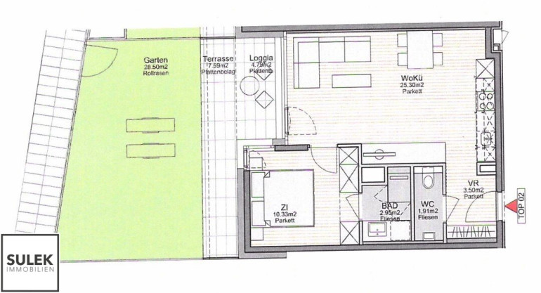
Diese perfekt aufgeteilte 2-Zimmer-Wohnung im Erdgeschoss bietet auf insgesamt rund 44 m2 Wohnfläche alles was das Herz begehrt. Der gepflegte Zustand der Wohnung und der gesamten Anlage bieten gleichwohl ein charmantes und wohnliches, als auch äußerst vornehmes Ambiente. 

  • Großzügiger Vorraum: Viel Platz für Garderobe und zusätzliche Schränke.

  • Offene Wohn-Küche: Ca. 25 m² groß und mit hochwertigen Miele-Geräten ausgestattet.

  • Außenbereich: Westseitige Loggia und Terrasse mit einem ca. 28 m² großen Eigengarten (hofseitig gelegen).

  • Schlafzimmer mit En-Suite Bad: Direkt angeschlossenes Badezimmer mit Badewanne und Waschbecken.

  • Separate Toilette inklusive Handwaschbecken

Geheizt wird die Wohnung mittels Fernwärme mit Fußbodenheizung. Ein Kellerabteil runden das Angebot perfekt ab.

 

Liegenschaft.

Bei dem gegenständlichen Projekt handelt es sich um ein in 2016 fertiggestelltes Gebäude, in welchem 63 neue Wohneinheiten geschaffen wurden. 

Die Wohnungen wurden unter Zuhilfenahme hochwertigster Materialien technisch wie optisch komplett neu hergestellt und nun steht eine dieser Wohnungen wieder zur Vermietung! Sämtliche verwendeten Materialien und Produkte werden auch höchsten Ansprüchen gerecht. Geheizt werden alle Wohneinheiten über eine neu verbaute Fußbodenheizung, welche über eine Hauszentralheizung gespeist wird.

Selbstverständlich ist jeder Wohnung eine Loggia und ein Kellerabteil zugeordnet - ein großer Fahrradraum, sowie eine Waschküche stehen allen Mietern zur Verfügung. Weiters sind Garagenparkplätze im Haus verfügbar und können separat für ca. € 110,- angemietet werden.

 

Lage/Infrastruktur.

Die Wohnung liegt in der Anton-Scharff-Gasse im 12. Wiener Gemeindebezirk. Die Anbindung an den öffentlichen Verkehr ist durch die naheliegenden Stationen der Buslinie 12A, sowie Straßenbahnlinien 6, 18 und die fußläufig erreichbare U-Bahn-Station "Margaretengürtel" (5 Gehminuten - 400m) bestens gegeben.

Sämtliche Geschäfte zur Deckung des täglichen Bedarfs liegen in unmittelbarer Nähe (Billa - 280m, Hofer - 300m). Auch mehrere Parks sind nur einen Katzensprung entfernt, sowie diverse Restaurants, Fitnessstudios.

Wichtig zu wissen.

  • Heiz- und Stromkosten sind in der Miete NICHT inkludiert.
  • Um mit regelmäßigen und lückenlosen Mietzahlungen zu rechnen, verlangt der Eigentümer zur Bonitätsprüfung die letzten drei Gehaltszettel und bei Selbstständigen den aktuellsten Einkommenssteuerbescheid. 

*************************************

Sollten Sie nach Durchsicht des Inserats eine Besichtigung wünschen, bitten wir um Anfrage über das Kontaktformular und Nennung ein paar konkreter Terminvorschläge.
*************************************

Die zur Verfügung gestellten Informationen beruhen auf die Angaben des Abgebers, der Gemeinde und der Hausverwaltung bzw. der jeweiligen Professionisten. Für die Richtigkeit und Vollständigkeit der Angaben kann keine Gewähr bzw. Haftung übernommen werden. Weiteres weisen wir auf ein wirtschaftliches und/oder familiäres Naheverhältnis hin. Festgehalten wird, dass unser Maklerunternehmen gem. §17 MaklerG einseitig nur für den Vermieter tätig wird, nicht für den Mieter!

Bitte beachten Sie, dass unser Unternehmen keine Reisekosten übernimmt, die im Zusammenhang mit der Besichtigung von Immobilien anfallen. Alle anfallenden Kosten für Anreise, Unterkunft und Verpflegung müssen von den Interessenten selbst getragen werden. Des Weiteren übernehmen wir keine Haftung für Kosten, die durch kurzfristige Stornierungen oder Änderungen von Besichtigungsterminen entstehen können. Wir danken Ihnen für Ihr Verständnis.
*************************************

Noch nichts gefunden? Wir informieren Sie über geeignete Immobilienangebote noch vor allen anderen.
Legen Sie jetzt Ihren individuellen Suchagenten unter folgendem Link an. Wir schicken Ihnen passende Immobilien exklusiv vorab zu.
Suchagent anlegen - https://sulek-immobilien.service.immo/registrieren/de

Wir weisen darauf hin, dass zwischen dem Vermittler und dem zu vermittelnden Dritten ein familiäres oder wirtschaftliches Naheverhältnis besteht.

Der Immobilienmakler erklärt, dass er – entgegen dem in der Immobilienwirtschaft üblichen Geschäftsgebrauch des Doppelmaklers – einseitig nur für den Vermieter tätig ist.

Infrastruktur / Entfernungen

Gesundheit
Arzt <250m
Apotheke <500m
Klinik <250m
Krankenhaus <1.000m

Kinder & Schulen
Schule <500m
Kindergarten <250m
Universität <750m
Höhere Schule <750m

Nahversorgung
Supermarkt <250m
Bäckerei <500m
Einkaufszentrum <1.000m

Sonstige
Geldautomat <500m
Bank <500m
Post <250m
Polizei <500m

Verkehr
Bus <250m
U-Bahn <500m
Straßenbahn <500m
Bahnhof <500m
Autobahnanschluss <3.500m

Angaben Entfernung Luftlinie / Quelle: OpenStreetMap

Eckdaten

Objektnr: 26151
Art: Wohnung
Land: Österreich
Baujahr: 2016
Zustand: Gepflegt
Alter: Neubau
Gesamtmiete: 999,00
Kaltmiete (netto): 813,60 €
Kaltmiete: 908,18 €
Provision: Gemäß Erstauftraggeberprinzip bezahlt der Abgeber die Provision.
Betriebskosten: 94,58 €
MwSt Gesamt: 90,82 €
Wohnfläche: 43,99 m²
Zimmer: 2
Bäder: 1
WC: 1
Terrassen: 1
Garten: 28,50 m²
Heizwärmebedarf:  B  38,20 kWh/m²a
fGEE:  C  1,28
Immobilie merken Exposé

Ausstattung

Parkett, Fliesen, Fußbodenheizung, Zentralheizung, Wohnküche / offene Küche, Personenaufzug, Westbalkon, Badewanne, Kabel/Satelliten-TV, Tiefgarage, Wasch/Trockenraum


Internet und TV

Information zur Internet und TV Versorgung hier


Immobilie anfragen


Ihre persönliche Beratung

Mittelsmann Philipp Sulek GmbH

Michael Stadlmayr

Mittelsmann Philipp Sulek GmbH

E ms@sulek-immobilien.at

T +43 1 226 27 20

H +43 676 325 27 15