Lage der Immobilie
Diese attraktive Wohnung in der Herzgasse 1100 Wien besticht durch ihre ideale Lage mit Nord-Südausrichtung. Nur wenige Schritte entfernt befinden sich die Quellenstraße, der Reumannplatz und der Matzleinsdorfer Platz, von dem Sie eine hervorragende Anbindung an den öffentlichen Verkehr haben. In unmittelbarer Nähe finden Sie alles für den täglichen Bedarf: Arzt, Apotheke, Schule, Kindergarten sowie zahlreiche Einkaufsmöglichkeiten. Kurze Wege zu Bus, U-Bahn, Straßenbahn und Bahnhof runden das Angebot ab.Beschreibung der Immobilie
Sonnige Loggia-Wohnung nahe Quellenstraße – ruhig, effizient & gut geschnitten 🌿
Diese charmante 3-Zimmer-Eigentumswohnung in zentraler Lage des 10. Bezirks überzeugt durch ihre durchdachte Raumaufteilung, niedrigen Betriebskosten und eine beheizbare Süd-Loggia, die zum Entspannen einlädt.
✨ Wohnhighlights
-
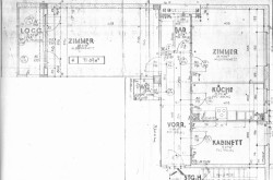
ca. 72 m² Wohnfläche + 6 m² verglaste Süd-Loggia
-
Hervorragende Raumaufteilung – getrennte Wohn- und Schlafbereiche
-
Großzügiges Wohnzimmer (ca. 27 m²) mit Zugang zur Loggia, die auch als zusätzlicher Wohnraum nutzbar ist
-
Zwei ruhige Schlafzimmer (ca. 10 m² und 15 m²), hofseitig ausgerichtet
-
Separate Küche (ca. 8 m²) mit Fenster und Gasanschluss
-
Zentral begehbar – ideal für Familien, Paare oder Homeoffice
Die Wohnung befindet sich in einem gepflegten Zustand und bietet eine solide Basis für individuelle Modernisierung nach eigenem Geschmack.
🏠 Gebäude & Ausstattung
-
Wärmegedämmte Fassade und Mehrfach-Isolierverglasung sorgen für optimalen Wärme- und Schallschutz
-
Beheizbare Loggia – im Winter gemütlich, im Sommer klimatisierend
-
Ruhige Hoflage – trotz zentraler Anbindung
-
Trockenes, großes Kellerabteil inklusive
💰 Kosten & Kaufpreis
-
Betriebskosten inkl. Lift: € 151,79 zzgl. € 15,18 USt.
-
Reparaturrücklage: € 88,29
➡ Gesamt monatlich: € 225,26
Kaufpreis: € 265.000,00
Aktueller Stand der Reparaturrücklage: € 155.000,00 (+)
📍 Lage
In unmittelbarer Nähe der Quellenstraße gelegen profitieren Sie von einer hervorragenden Infrastruktur: Einkaufsmöglichkeiten, Schulen, Kindergärten, öffentliche Verkehrsmittel (U1, Straßenbahn, Bus) sowie zahlreiche Freizeitangebote befinden sich in Gehdistanz.
Fazit
Eine helle, gut geschnittene Wohnung mit niedrigen Betriebskosten, beheizbarer Loggia und solider Substanz – ideal für alle, die zentral, ruhig und effizient wohnen möchten.
Wir weisen darauf hin, dass zwischen dem Vermittler und dem zu vermittelnden Dritten ein familiäres oder wirtschaftliches Naheverhältnis besteht.
Der Vermittler ist als Doppelmakler tätig.
Infrastruktur / Entfernungen
Gesundheit
Arzt <250m
Apotheke <500m
Klinik <250m
Krankenhaus <1.250m
Kinder & Schulen
Schule <250m
Kindergarten <250m
Universität <1.250m
Höhere Schule <2.000m
Nahversorgung
Supermarkt <250m
Bäckerei <250m
Einkaufszentrum <1.000m
Sonstige
Geldautomat <500m
Bank <500m
Post <500m
Polizei <500m
Verkehr
Bus <250m
U-Bahn <750m
Straßenbahn <250m
Bahnhof <750m
Autobahnanschluss <2.000m
Angaben Entfernung Luftlinie / Quelle: OpenStreetMap
Eckdaten
| Kaufpreis: | 265.000,00 € |
| Fläche: | 76,54 m² |
| Zimmer: | 3 |
Basisdaten zur Immobilie
| Objektnr: | 4760/673 |
| Art: | Wohnung |
| Land: | Österreich |
| Baujahr: | 1973 |
| Zustand: | Gepflegt |
| Alter: | Neubau |
| Kaufpreis: | 265.000,00 € |
| Provision: | 9.540,00 € inkl. 20% USt. |
| Betriebskosten: | 151,79 € |
| MwSt Gesamt: | 15,18 € |
| Wohnfläche: | 76,54 m² |
| Nutzfläche: | 81,69 m² |
| Zimmer: | 3 |
| Bäder: | 1 |
| WC: | 1 |
| Keller: | 4,00 m² |
| Heizwärmebedarf: | B 41,40 kWh/m²a |
| fGEE: | D 2,26 |
Ausstattung
Gas, Etagenheizung, Personenaufzug, Südbalkon, Dusche
Internet und TV
Information zur Internet und TV Versorgung hier
Ihre persönliche Beratung
Victor Vassilev
Per.Fact Immo E.U.
vassilev@perfact-immo.at
0676/4774191
