Außergewöhnliches Designhaus in Vitis

Haus - Einfamilienhaus, 3902 Vitis

Beschreibung der Immobilie

Zum Verkauf gelangt dieses helle, ruhige und ca. 152 m2 große Erstbezug mit 4 Zimmern und großem Garten in ruhiger Lage in Vitis. Das Haus besticht durch den durchdachten Grundriss, sowie der hochwertigen Ausstattung. 

Raumaufteilung:

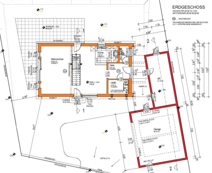
Erdgeschoss:

- Vorzimmer

- Toilette mit Handwaschbecken und

- Technikraum mit Waschmaschinenanschluss 

-  Wohnküche mit hochwertiger Küche mit Kochinsel und Geräten von .........

Obergeschoss:

- zwei Kinderzimmer

- Badezimmer mit Waschtisch, Dusche und WC

- Master Schlafzimmer mit begehbarem Schrankraum und Zugang zum Master Bad mit Eckbadewanne, Dusche,  Doppelhandwaschbecken und WC

Von der ca. 48 m2 großen Garage gelangt man in den ca. 22 m2 großen Abstellraum.

Ausstattung:

- Passivhaus mit kontrollierter Wohnraumlüftung

- Elektrische Raffstores

- 3-fach verglaste Fenster

- Anschlüsse für Smarthome

- Vorbereitung für PV Anlage

- Glasfaser

- 36 cm dicke Dämmung

- Badaustattung von Villeroy und Boch

- Küchengeräte von KÜPPERSBUSCH

Eckdaten

Objektnr: 4196
Art: Haus - Einfamilienhaus
Land: Österreich
Zustand: Erstbezug
Alter: Neubau
Kaufpreis: 560.000,00
Wohnfläche: 152,00 m²
Grundstücksfl.: 921,00 m²
Bäder: 2
WC: 3
Heizwärmebedarf:  B  23,90 kWh/m²a
Immobilie merken Exposé

Ausstattung

Einbauküche, Wohnküche / offene Küche, Bad mit Fenster, Badewanne, Dusche, Garage, Alarmanlage


Internet und TV

Information zur Internet und TV Versorgung hier


Immobilie anfragen


Ihre persönliche Beratung

Rana Wintersteiner

J. u. E. Wild Immobilientreuhänder GmbH

E rw@immobilienwild.at

T +43 1 616 32 77 275

H +43 660 762 27 16

F +43 1 616 32 77 216