Gartenwohnung in Stockerau und dazu leistbares Wohnen
Wohnung
- Etage,
2000
Stockerau
Beschreibung der Immobilie
Ein „bissl „außerhalb, aber doch sehr nahe an Wien sollte es sein, umgeben von viel Grün, ruhig gelegen, geräumig, aber gemütlich, eventuell mit Garten oder Terrasse, denn Sie möchten gerne Ihre Ruhe genießen können und in herrlicher Umgebung mit einem Glaserl Wein auf das schöne Leben anstoßen?!
Wir haben diese Wohnung für Sie gefunden!
BESONDERE HIGHLIGHTS UND
AUSSTATTUNGSMERKMALE
• Einige Wohnungen noch frei!
• Nah an Wien und Umgebung (40 Minuten mit dem Zug zum Hbf. Wien)
• Fast ein Erstbezug
• Nah an den Öffis und der Autobahn
• Naturschutzgebiet in 7 Minuten zu Fuß erreichbar, zum Spazierengehen, Joggen, Radfahren, Erholen, Wandern, Schwimmen, ...
• Deckenkühlung (passive Kühlung im Sommer durch die Betondecke) und Heizung (thermische Heizdecke, per Fernwärme)
• 3-Scheiben-Isolierverglasung
• Küche samt moderner Ausstattung von Lutz: Kühl- und Gefrierkombination, Geschirrspüler, Einbauherd, Umluft, ...
• Parkett in Eiche
• elektrische Außenrollläden oder Raffstores
• Farb-Video Gegensprechanlage
• Einlagerungsräume
• Teilweise PV-Anlagen für die Haustechnik
• Feinsteinzeug für Bäder, WC´s und Stiegenhäuser
• Waschmaschinenanschluss
• Hauseigene SAT-Anlagen
• Große Auswahlmöglichkeit an Objekten mit
Terrasse, Garten, Loggia oder Balkon
• Garagen und E- Tankstellen
• Kinderwagen und Fahrradabstellräume
• Jugend und Kinderspielplatz
Die Schaubilder dienen zur Illustration und können von planlichen und natürlichen Gegebenheiten abweichen. Änderungen vorbehalten.
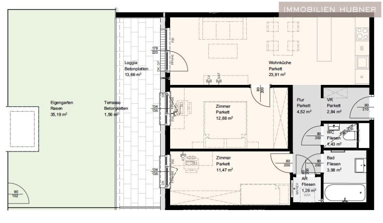
RAUMAUFTEILUNG
• Geräumiger Vorraum
• 2 Schlafzimmer
• Wohnraum mit Küchenzeile
• Duschbad und WC
• Abstellraum
• Garten, Terrasse, Loggia
• ALLE Räume mit Zugang ins Freie!
ÖFFENTLICHE VERKEHRSANBINDUNG
GRÄTZL UND UMGEBUNG
• Naturschutzgebiet vor der Haustüre (Stockerauer Au) in 7 Minuten zu Fuß erreichbar
• Nähe der Donauuferautobahn
• gute Infrastruktur, Nahversorger, Shops, Kultur ( Belvedereschlössl, Automobilmuseum), Schulen, Banken, Kino, Landesklinikum Stockerau,
E-Tankstellen
S3, S4 der Wiener Schnellbahnlinien,
mit Park @ Ride Anlagen sowie eine nextbike-Verleihstation.
ERSTZAHLUNG
• 3 BMM Kaution
• erste Monatsmiete im Voraus
WEITERE MONATLICHE KOSTEN
• Wasser, Heizung... werden von der ISTA nach tatsächlichem Verbrauch abgerechnet
• Strom - wird direkt nach Verbrauch abgerechnet (Wien Energie bzw. Netznutzung Wiener Netze)
• ggf. TV/Internet, Haushaltsversicherung, GIS, o.Ä.
VERTRAGSBEDINGUNGEN
• Befristung: 10 Jahre
• Kündigungsverzicht: 12 Monate (mieterseitig)
• Kündigungsfrist: 3 Monate
• gefordertes Mindestnettoeinkommen (Haushalt): Die Miete sollte maximal 40% des Nettoeinkommens betragen, sollte zumindest die 50% Quote erfüllt sein, kann eine höhere Kaution hinterlegt werden
Weitere Wohnungen in der Anlage frei zwischen 39m2 und 82m2 ( Gartenwohnungen, 1.bis 3. Stock) wählbar, mit Freiflächen und zusätzlicher Anmietung eines Stellplatzes.
Nähere Infos unter: www.daskoloman.at
Falls Sie Fragen haben oder einen Beratungsterminwünschen, stehe ich Ihnen selbstverständlich gerne zur Verfügung.
KONTAKT
Frau Anette Mazanec
Tel: +43 664 44 888 79
Email: anette.mazanec@hubner-immobilien.com
| Angaben gemäß gesetzlichem Erfordernis: | |||
| Miete | € | 835,67 | zzgl 10% USt. |
| Betriebskosten | € | 161,06 | zzgl 10% USt. |
| Umsatzsteuer | € | 99,68 | |
| ------------------------------------------------------------------ | |||
| Gesamtbetrag | € | 1096,41 | |
Eckdaten
| Objektnr: | 3610_7028 |
| Art: | Wohnung - Etage |
| Land: | Österreich |
| Baujahr: | 2024 |
| Zustand: | Erstbezug |
| Alter: | Neubau |
| Gesamtmiete: | 1.096,41 € |
| Kaltmiete (netto): | 835,67 € |
| Kaltmiete: | 1.096,41 € |
| Wohnfläche: | 62,31 m² |
| Zimmer: | 3 |
| Bäder: | 1 |
| WC: | 1 |
| Terrassen: | 1 |
| Garten: | 35,19 m² |
Ausstattung
Zentralheizung, DV-Verkabelung, Sporteinrichtungen
Internet und TV
Information zur Internet und TV Versorgung hier
Ihre persönliche Beratung
Anette Mazanec
Hubner Immobilien GmbH
E anette.mazanec@hubner-immobilien.com
H +43 664 44 888 79
