Beschreibung der Immobilie
Willkommen im Arsenal – einer grünen Oase im Herzen Wiens. Diese historische Anlage umfasst rund 1.000 Wohnungen und vereint bewegte Geschichte mit Wohnkomfort in Grünruhelage und Zentrumsnähe.
Es erwarten Sie eine Vielzahl an Freizeitmöglichkeiten - ob spazieren gehen, laufen oder mit den Kindern am Spielplatz Zeit verbringen.
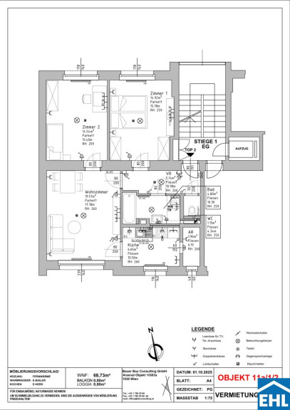
Die Wohnung befindet sich im Erdgeschoss und verfügt über eine Einbauküche, zwei Schlafzimmer, ein Wohn- Esszimmer, ein Badezimmer mit Badewanne und Waschmaschinenanschluss, ein separates WC, einen Abstellraum und einen Vorraum.
Erhalten Sie hier einen Einblick in das Arsenal: https://arsenal-living.at/
Ausstattung:
- Voll ausgestattete Küche
- Parkettböden in den Wohnräumen
- Fliesen in den Nassräumen
- Badezimmer mit Badewanne und Waschmaschinenanschluss
- ein separates WC
- Großteils Fahrradräume und Waschküchen
Folgende Infrastruktur ist direkt im Arsenal vorhanden:
- Gasthaus - „Wiener Cucina“
- Postfiliale
- Arzt
- Tennisplätze
- Kindergarten
- Kinderspielplätze
- Nahversorger
- Heeresgeschichtliches Museum
Die Wohnung ist nicht barrierefrei.
Bei Bedarf kann ein Hofstellplatz (EUR 80,- brutto) oder ein Tiefgaragenplatz (EUR 120,- brutto) angemietet werden. Befristung: 7 Jahre, 1 Jahr Kündigungsverzicht, 3 Monate Kündigungsfrist
Öffentliche Verkehrsanbindung:
- Buslinie 69A
- Straßenbahn 18
- Verkehrsknotenpunkt Hauptbahnhof liegt nur wenige Gehminuten entfernt: Straßenbahnlinie D
zzgl. Heizkosten € 41,24 netto + € 8,25 Ust. = € 49,49 brutto
Befristung: 7 Jahre, 1 Jahr Kündigungsverzicht
Nebenkosten: 3BMM Kaution, Vertragserrichtungsgebühr
Wir weisen darauf hin, dass zwischen dem Vermittler und dem zu vermittelnden Dritten ein familiäres oder wirtschaftliches Naheverhältnis besteht.
Der Immobilienmakler erklärt, dass er – entgegen dem in der Immobilienwirtschaft üblichen Geschäftsgebrauch des Doppelmaklers – einseitig nur für den Vermieter tätig ist.
Infrastruktur / Entfernungen
Gesundheit
Arzt <375m
Apotheke <475m
Klinik <1.000m
Krankenhaus <1.525m
Kinder & Schulen
Schule <675m
Kindergarten <450m
Universität <500m
Höhere Schule <1.225m
Nahversorgung
Supermarkt <375m
Bäckerei <550m
Einkaufszentrum <975m
Sonstige
Geldautomat <650m
Bank <800m
Post <925m
Polizei <1.000m
Verkehr
Bus <200m
U-Bahn <1.100m
Straßenbahn <625m
Bahnhof <475m
Autobahnanschluss <950m
Angaben Entfernung Luftlinie / Quelle: OpenStreetMap
Eckdaten
| Objektnr: | 69099 |
| Art: | Wohnung |
| Land: | Österreich |
| Zustand: | Gepflegt |
| Alter: | Neubau |
| Gesamtmiete: | 1.250,00 € |
| Kaltmiete (netto): | 981,21 € |
| Kaltmiete: | 1.136,36 € |
| Provision: | Gemäß Erstauftraggeberprinzip bezahlt der Abgeber die Provision. |
| Betriebskosten: | 155,15 € |
| MwSt Gesamt: | 113,64 € |
| Wohnfläche: | 68,73 m² |
| Zimmer: | 3 |
| Bäder: | 1 |
| WC: | 1 |
| Heizwärmebedarf: | C 67,30 kWh/m²a |
| fGEE: | C 1,32 |
Ausstattung
Parkett, Fliesen, Fernwärme, Einbauküche, Personenaufzug, Badewanne
Internet und TV
Information zur Internet und TV Versorgung hier
Ihre persönliche Beratung
Josef Michelfeit
EHL Immobilien GmbH
E j.michelfeit@ehl.at
T +43-1-512 76 90-403
