GROSSZÜGIGES GASTROMIEPROJEKT MÖGLICH IN FAVORITEN
Gastgewerbe
- Gastronomie/Restaurant,
1100
Wien
,
Quellenstraße
Lage der Immobilie
Mitten in FavoritenBeschreibung der Immobilie
RESTAURANT UND IMBISS I
ZUSAMMENLEGBAR
ODER SEPARAT NUTZBAR
SUCHEN AMBITTIONIERTEN NACHFOLGER
Lage
Quellenstraße
nähe Absberggasse
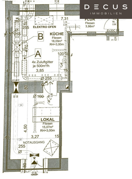
Objekt
Das Restaurant bietet dzt. Platz für ca 40 Personen + Schanigarten ca 10 Pers.
Der Imbiss verfügt über 8 Plätze.
Ein zweiter Schanigarten ist beantragbar,
wenn eine eigene Firma für den Imbiss gegründet wird.
Ausstattung
Es ist ein gewisser Investitionsbedarf gegeben.
- Lüftung für das kleine Lokal und für die Küche dort
- ev. Zusammenkegung und Umbau der Lokale
. Neugestaltung des Schanigartens,
- Antrag auf Vergößerung des Schanigartens. (dzt sind's ca 2 Parkplätze)
- Komplettierung der Küchenasstattung
- Komplettierung der Vorbereitungsraumausstattung
- Einrichtung erneuern
- Ausmalen
- Firmenschilder neu schaffen
Es ist kein Bier- oder Lieferantenvertrag zu übernehmen!
Es ist eine aufrechte Betriebstättengenehmigung selbstverständlich vorhanden.
Die Bar ist mit Barpult und großartiger Kaffeemaschune und allen Schikanen zur Verfügung.
Die Küche hat einige Gerätschaft.
Es gibt einen separaten Zugang - ideal ür Lieferungen. dieser ist im Grundriss nicht eingetragen!)
Die Heizung ist eine Gasetagenheizung.
Eine Lüftungsanlage ist selbstverständlich vorhanden.
(alledings dzt. nicht für das kleine Lokal und nicht für die Küche)
Zwei trockenr Kellerabteile mit je ca.4m" sind mit dem Lift erreichbar.
Der große Schirm des Schanigartens und ein Bierzapfgerät
sind im Besitz einer Bierlieiferfirma.
Der Vertrag kann behalten oder aufgekündigt werden.
Miete
Die Miete wird um 25 % anlässlich der Weitergabe angehoben.
Nettomiete dzt € 2.000 + BK + USt
zukünftige Nettomiete: € 2.500 + BK + USt
Kaution 3 BMM
angemessene Ablöse
Provision
3 BMM inkl 20% USt
Lage und Umgebung
Mitten im Zehnten! :)
Die infrastrukturelle Versorgung ist gut.
Die Verkehrsanbindung ist auch gut.
Der Vermittler ist als Doppelmakler tätig.
DECUS Immobilien GmbH – Wir beleben Räume
Für weitere Informationen und Besichtigungen steht Ihnen gerne Herr Elemér Szüts unter der Mobilnummer +43 664 11 888 16und per E-Mail unter szuets@decus.at persönlich zur Verfügung.
www.decus.at | office@decus.at
Wichtige Informationen
Bitte beachten Sie, dass per 13.06.2014 eine neue Richtlinie für Fernabsatz- und Auswärtsgeschäfte in Kraft getreten ist.
Ab 1.4.2024 entfallen die Grundbuchs- und Pfandrechtseintragungsgebühren vorübergehend für Eigenheime bis zu einer Bemessungsgrundlage von EUR 500.000,-. Voraussetzung ist das dringende Wohnbedürfnis, ausgenommen davon sind vererbte oder geschenkte Immobilien. Die Befreiung ist jedoch für den Einzelfall zu prüfen, DECUS Immobilien übernimmt hierzu keine Haftung.
Ab 01.07.2023 gilt das Erstauftraggeber-Prinzip bei Wohnungsmietverträgen, ausgenommen davon sind Dienst-/Natural-/Werkswohnungen. Wir dürfen gem. § 17 Maklergesetz darauf hinweisen, dass wir auf die Doppelmaklertätigkeit gem. § 5 Maklergesetz bei Wohnungsmietverträgen verzichten und nur noch einseitig tätig sind (bei den restlichen Vermittlungsarten nicht) und ein wirtschaftliches Naheverhältnis zu unseren Auftraggebern besteht.
Im Falle eines Abschlusses mit Ihnen oder einem von Ihnen namhaft gemachten Dritten bzw. bei beidseitiger Willensübereinstimmung beträgt unser Honorar (lt. Honorarverordnung für Immobilienmakler) 2 Bruttomonatsmieten (BMM) bei Dienst-/Natural-/Werkwohnungen sowie Suchaufträgen, 3 BMM bei Gewerbe-, PKW-, Keller- und Lagermietverträgen sowie bei Kaufobjekten 3 % des Kaufpreises, zuzüglich der gesetzlichen Umsatzsteuer.
Dieses Objekt wird Ihnen unverbindlich und freibleibend angeboten. Oben angeführte Angaben basieren auf Informationen und Unterlagen des Eigentümers und sind unsererseits ohne Gewähr.
Nähere Informationen sowie unsere AGBs und die Nebenkostenübersichtsblatt finden Sie auf unserer Homepage www.decus.at unter "Service" - "Rechtliches zum FAGG" sowie im Anhang der zugesendeten Objekt-Exposés!
Infrastruktur / Entfernungen
Gesundheit
Arzt <750m
Apotheke <250m
Klinik <1.000m
Krankenhaus <2.500m
Kinder & Schulen
Schule <250m
Kindergarten <250m
Universität <250m
Höhere Schule <2.000m
Nahversorgung
Supermarkt <250m
Bäckerei <250m
Einkaufszentrum <1.500m
Sonstige
Geldautomat <250m
Bank <250m
Post <500m
Polizei <1.250m
Verkehr
Bus <250m
U-Bahn <1.000m
Straßenbahn <250m
Bahnhof <500m
Autobahnanschluss <500m
Angaben Entfernung Luftlinie / Quelle: OpenStreetMap
Eckdaten
| Objektnr: | 1151851 |
| Art: | Gastgewerbe - Gastronomie/Restaurant |
| Land: | Österreich |
| Baujahr: | 1900 |
| Möbliert: | Voll |
| Alter: | Altbau |
| Kaltmiete (netto): | 2.500,00 € |
| Kaltmiete: | 2.750,00 € |
| Provision: | 3 Bruttomonatsmieten zzgl. 20% USt. |
| Betriebskosten: | 250,00 € |
| MwSt Gesamt: | 550,00 € |
| Wohnfläche: | 125,00 m² |
| Nutzfläche: | 125,00 m² |
| Gesamtfläche: | 125,00 m² |
| WC: | 3 |
| Keller: | 8,00 m² |
| Heizwärmebedarf: | D 127,00 kWh/m²a |
| fGEE: | D 2,35 |
Ausstattung
Elektro, Gas, Etagenheizung, Einbauküche, Personenaufzug, Angeschl. Bar, Kabel/Satelliten-TV, Swimmingpool, Gastterrasse
Internet und TV
Information zur Internet und TV Versorgung hier
Ihre persönliche Beratung
Elemér Szüts
DECUS Immobilien GmbH
E szuets@decus.at
T +43 664 11 888 16
H +43 664 11 888 16
F +43 1 35 600 10
