VIELSEITIGE GEWERBEFLÄCHE IN EBELSBERG - CA. 211,63 m² - KLIMATISIERT
Büro / Praxis
,
4030
Linz
,
Panholzerweg 1
Lage der Immobilie
Die Räumlichkeiten am Panholzerweg in Linz besticht durch ihre zentrale Lage und hervorragende Infrastruktur. In unmittelbarer Nähe finden Sie alles, was Sie zum täglichen Leben benötigen: Arzt, Apotheke, Kindergarten und Schule sind schnell erreichbar. Auch Supermärkte, Bäckereien und Banken befinden sich in der Umgebung. Die Anbindung an den öffentlichen Verkehr ist optimal, mit Bus- und Straßenbahnhaltestellen nur wenige Gehminuten entfernt.Beschreibung der Immobilie
Diese klimatisierte Einheit bietet Ihnen nicht nur ein helles und modernes Ambiente, sondern auch eine Lage, die keine Wünsche offenlässt.
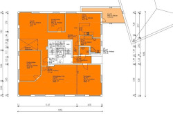
Mit einer großzügigen Fläche von 211,63 m² im 3.Obergeschoss eröffnet sich Ihnen viel Raum für Ihre individuellen Geschäftsideen. Die offene und flexible Raumaufteilung ermöglicht eine kreative Gestaltung – egal ob Sie Büroräume, Yogastudio oder Behandlungsräume einrichten möchten.
Die Verkehrsanbindung ist ebenfalls hervorragend. Egal, ob Sie mit dem Bus oder der Straßenbahn unterwegs sind – Sie erreichen schnell und bequem alle wichtigen Ziele in Linz. So wird jede Pendelstrecke zum Kinderspiel.
Tiefgaragenplätze und Kellerfläche können angemietet werden.
Zögern Sie nicht und vereinbaren Sie noch heute einen Besichtigungstermin und erleben Sie, wie diese vielseitige Fläche Ihre Geschäftsideen Wirklichkeit werden lässt.
Wir weisen darauf hin, dass zwischen dem Vermittler und dem zu vermittelnden Dritten ein familiäres oder wirtschaftliches Naheverhältnis besteht.
Der Vermittler ist als Doppelmakler tätig.
Infrastruktur / Entfernungen
Gesundheit
Arzt <75m
Apotheke <275m
Krankenhaus <4.325m
Klinik <2.725m
Kinder & Schulen
Kindergarten <525m
Schule <575m
Universität <5.125m
Höhere Schule <6.700m
Nahversorgung
Supermarkt <450m
Bäckerei <175m
Einkaufszentrum <3.150m
Sonstige
Bank <225m
Geldautomat <1.225m
Post <1.250m
Polizei <1.275m
Verkehr
Bus <100m
Straßenbahn <100m
Bahnhof <1.625m
Autobahnanschluss <2.175m
Flughafen <5.675m
Angaben Entfernung Luftlinie / Quelle: OpenStreetMap
Eckdaten
| Kaltmiete (netto): | 1.650,71 € |
| Fläche: | 211,63 m² |
Basisdaten zur Immobilie
| Objektnr: | 1937/7645957 |
| Art: | Büro / Praxis |
| Land: | Österreich |
| Kaltmiete (netto): | 1.650,71 € |
| Kaltmiete: | 2.240,71 € |
| Provision: | 3 Bruttomonatsmieten |
| Betriebskosten: | 590,00 € |
| Heizkosten: | 150,00 € |
| MwSt Gesamt: | 478,14 € |
| Nutzfläche: | 211,63 m² |
| Heizwärmebedarf: | 84,00 kWh/m²a |
| fGEE: | 1,45 |
Ausstattung
Personenaufzug, Dusche, Garage
Internet und TV
Information zur Internet und TV Versorgung hier
Ihre persönliche Beratung
Michaela Hochreiter
AREV Immobilien GmbH
michaela.hochreiter@arev.at
+43 732 605533 364
+43 664 8185330
