Beschreibung der Immobilie
TERRASSEN NEUBAUWOHNUNG NAHE CHRISTINE NÖSTLINGER PARK
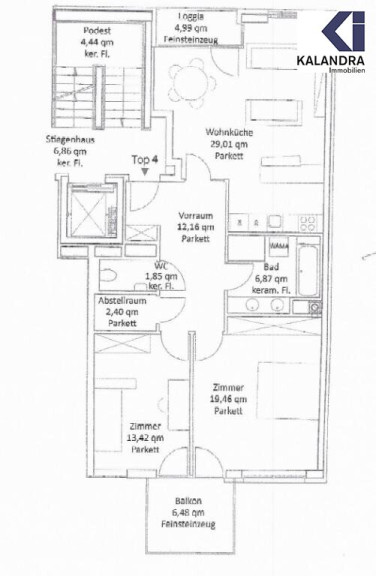
Diese im 2 Liftstock eines Neubaus ( BJ 2015) gelegene Terrassenwohnung mit insgesamt 84 m² gliedert sich wie folgt:
Raumaufteilung:
Zentraler 12m² Vorraum,29 m² großes Wohnzimmer mit offener Küche und strassenseitigem 6,5 m² südostseitigem Balkon 2.Schlafzimmer ( 13m² & 19m² ) mit Ausgang auf die 5m² große westseitige Loggia, 6m² Wannenbad, separates WC , Abstellraum
Ausstattung:
Moderner Neubau mit Eichenparkettböden,
Fußbodenheizung,
hochwertige Badezimmerkeramik,
elektrische Außenbeschattung,
teilweise Beleuchtungskörper,
Einbauschränke,
Komplettküche,
2. Liftstock,
Kellerabteil
Die Wohnung besticht durch den sehr guten Grundriss und die moderne Ausstattung.
Für HEizung und Warmwasser wird ein Akkonto von 117,26 Euro monatlich vorgeschrieben.
Infrastruktur:
Das 2015 errichtete Wohnhaus zeichnet sich durch seine gute Lage aus.
In unmittelbarer Nähe liegt das Postsportzentrum.
Die Anbindung an den öffentlichen Verkehr über die Straßenbahnlinien 9, 42, Schnellbahn S 45, Buslinien 10A, 42 A ermöglicht eine höhe Mobilität. Gute städtische Infrastruktur vorhanden.
Der Immobilienmakler erklärt, dass er – entgegen dem in der Immobilienwirtschaft üblichen Geschäftsgebrauch des Doppelmaklers – einseitig nur für den Vermieter tätig ist.
Infrastruktur / Entfernungen
Gesundheit
Arzt <500m
Apotheke <500m
Klinik <500m
Krankenhaus <1.500m
Kinder & Schulen
Schule <500m
Kindergarten <500m
Universität <1.500m
Höhere Schule <500m
Nahversorgung
Supermarkt <500m
Bäckerei <1.000m
Einkaufszentrum <1.000m
Sonstige
Geldautomat <500m
Bank <1.000m
Post <1.000m
Polizei <500m
Verkehr
Bus <500m
U-Bahn <1.000m
Straßenbahn <500m
Bahnhof <1.000m
Autobahnanschluss <3.000m
Angaben Entfernung Luftlinie / Quelle: OpenStreetMap
Eckdaten
| Objektnr: | 16578 |
| Art: | Wohnung |
| Land: | Österreich |
| Baujahr: | 2015 |
| Zustand: | Neuwertig |
| Gesamtmiete: | 1.700,00 € |
| Kaltmiete (netto): | 1.403,67 € |
| Kaltmiete: | 1.673,06 € |
| Provision: | Gemäß Erstauftraggeberprinzip bezahlt der Abgeber die Provision. |
| Betriebskosten: | 269,39 € |
| MwSt Gesamt: | 26,94 € |
| Wohnfläche: | 84,00 m² |
| Zimmer: | 3 |
| Balkone: | 1 |
Ausstattung
Personenaufzug
Internet und TV
Information zur Internet und TV Versorgung hier
Ihre persönliche Beratung
Mag. Robin Kalandra
KALANDRA Immobilien Robert Kalandra e.U.
E robin@kalandra.at
T +43-1533326913
H +43-69911804004
F +43-1-533-32-69-20

