2-Zimmer-Wohnung mit Loggia – zu mieten im Neubauprojekt „Herz & Heim“ in Simmering, 1110 Wien
Wohnung
- Etage,
1110
Wien
Lage der Immobilie
Die Lage könnte nicht besser sein. In unmittelbarer U-Bahn Nähe (U3), mit Straßenbahn (71) und Buslinie (N) vor der Tür, sowie der Autobahnauffahrt Gürtel/Landstraße sind sie bestens an alle Verkehrswege angebunden. Die Simmeringer Hauptstraße bietet fußläufig erreichbar eine Vielzahl an Einkaufsmöglichkeiten, Restaurants, Kindergärten, Schulen und Ärzten.Beschreibung der Immobilie
Eckdaten
| Objektnr: | 109242565_19 |
| Art: | Wohnung - Etage |
| Land: | Österreich |
| Baujahr: | 2026 |
| Zustand: | Erstbezug |
| Möbliert: | Teil |
| Gesamtmiete: | 845,00 € |
| Kaltmiete (netto): | 673,27 € |
| Kaltmiete: | 845,00 € |
| Betriebskosten: | 94,91 € |
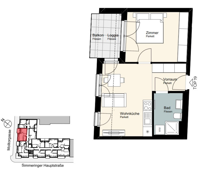
| Wohnfläche: | 37,95 m² |
| Zimmer: | 2 |
| Bäder: | 1 |
| Heizwärmebedarf: | B 31,30 kWh/m²a |
| fGEE: | A+ 0,67 |
Ausstattung
Parkett, Fußbodenheizung, Einbauküche, Personenaufzug, Westbalkon, Dusche
Internet und TV
Information zur Internet und TV Versorgung hier
Ihre persönliche Beratung
Lara Steinbacher
ÖRAG Immobilien Vermittlung GmbH
E lara.steinbacher@oerag.at
T 0043153473261
H 004366488962125
