JETZT einziehen - Gartenwohnung mit Georgi Berg Blick!
Wohnung
,
4563
Micheldorf in Oberösterreich
,
Bader-Moser-Straße
Lage der Immobilie
Die Lage dieser Immobilie ist in der Franz-Lehar-Straße in Micheldorf, einer Gemeinde in Oberösterreich. Die Straße befindet sich in einer ruhigen und gepflegten Wohngegend. In unmittelbarer Nähe gibt es eine Apotheke, eine Schule und einen Supermarkt für den täglichen Bedarf. Auch eine Bank mit Geldautomat ist in der Umgebung vorhanden. Die Anbindung an den öffentlichen Nahverkehr ist durch eine Buslinie sowie den Bahnhof gewährleistet. Der nächstgelegene FlughafenBeschreibung der Immobilie
Herzlich Willkommen in Ihrer neuen Traumwohnung in Micheldorf, Oberösterreich!
Einzug in die Mietwohnung 26.02 2026 möglich.
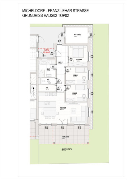
Diese wunderschöne Gartenwohnung im Erdgeschoss bietet Ihnen alles, was Sie sich für Ihr neues Zuhause wünschen können. Mit einer großzügigen Wohnfläche von 89,88m² und 4 Zimmern bietet sie ausreichend Platz für Sie und Ihre Familie.
Als Erstbezug erwartet Sie hier eine topmoderne Wohnung, die Sie nach Ihren Wünschen gestalten können. Der offene Wohn- und Essbereich mit direktem Zugang zur Terrasse und dem eigenen Garten lädt zum Entspannen und Verweilen ein. Die Terrasse bietet Ihnen einen herrlichen Grünblick und ist der perfekte Ort für gemütliche Grillabende oder Sonnenstunden im Freien.
Auch in puncto Ausstattung lässt diese Wohnung keine Wünsche offen. Hochwertige Fliesen und Parkettböden sorgen für eine stilvolle Atmosphäre. Für angenehme Wärme an kalten Tagen sorgt die Fußbodenheizung. Der Südbalkon bzw. die Südterrasse verspricht zudem sonnige Stunden und eine herrliche Aussicht.
Das Badezimmer ist mit einer Badewanne und einer Dusche ausgestattet und verfügt über ein Fenster, das für natürliches Licht und Frischluft sorgt. Auch für Ihre Fahrzeuge ist gesorgt - neben einem Carport steht Ihnen noch ein weiterer Stellplatz zur Verfügung.
Die Lage der Wohnung ist ebenfalls unschlagbar. Eine gute Verkehrsanbindung ist durch Bus, Bahnhof und Flughafen gegeben. Auch Einkaufsmöglichkeiten, Schulen und eine Apotheke sind in unmittelbarer Nähe vorhanden. So haben Sie alles, was Sie für Ihren Alltag benötigen, in Reichweite.
Überzeugen Sie sich selbst von dieser traumhaften Gartenwohnung und vereinbaren Sie noch heute einen Besichtigungstermin. Wir freuen uns darauf, Sie in Ihrem neuen Zuhause willkommen zu heißen!
Wir weisen darauf hin, dass zwischen dem Vermittler und dem zu vermittelnden Dritten ein familiäres oder wirtschaftliches Naheverhältnis besteht.
Der Immobilienmakler erklärt, dass er – entgegen dem in der Immobilienwirtschaft üblichen Geschäftsgebrauch des Doppelmaklers – einseitig nur für den Vermieter tätig ist.
Infrastruktur / Entfernungen
Gesundheit
Arzt <2.750m
Apotheke <100m
Klinik <2.750m
Krankenhaus <3.675m
Kinder & Schulen
Schule <550m
Kindergarten <6.975m
Nahversorgung
Supermarkt <475m
Bäckerei <3.250m
Sonstige
Bank <450m
Geldautomat <450m
Polizei <3.125m
Post <3.175m
Verkehr
Bus <375m
Autobahnanschluss <4.625m
Bahnhof <850m
Flughafen <600m
Angaben Entfernung Luftlinie / Quelle: OpenStreetMap
Eckdaten
| Objektnr: | 4417/1206 |
| Art: | Wohnung |
| Land: | Österreich |
| Baujahr: | 2026 |
| Zustand: | Erstbezug |
| Alter: | Neubau |
| Gesamtmiete: | 1.517,40 € |
| Kaltmiete (netto): | 1.064,00 € |
| Kaltmiete: | 1.314,00 € |
| Provision: | Gemäß Erstauftraggeberprinzip bezahlt der Abgeber die Provision. |
| Betriebskosten: | 250,00 € |
| Heizkosten: | 60,00 € |
| MwSt Gesamt: | 143,40 € |
| Wohnfläche: | 89,88 m² |
| Zimmer: | 4 |
| Bäder: | 1 |
| WC: | 1 |
| Terrassen: | 1 |
| Stellplätze: | 2 |
| Garten: | 109,43 m² |
| Heizwärmebedarf: | B 44,00 kWh/m²a |
| fGEE: | A+ 0,61 |
Ausstattung
Parkett, Fliesen, Fußbodenheizung, Südbalkon, Bad mit Fenster, Badewanne, Dusche, Carport, Parkplatz
Internet und TV
Information zur Internet und TV Versorgung hier
Ihre persönliche Beratung
Bmstr. Georg Altmüller
NEUWOG Immobilientreuhand und Liegenschaftserrichtungs GmbH
E info@neuwog.at
T +43 7227 2005340
H +43 676 3388238
