Gut geschnittene 2,5 Zimmer Wohnung mit neuer Küche mit Balkon in 1210 Wien
Wohnung
- Etage,
1210
Wien
Lage der Immobilie
Die Wohnung befindet sich in der Leopoldauer Straße, im Herzen des lebenswerten 21. Bezirks in Wien, Österreich. Diese Lage bietet eine exzellente Balance zwischen urbanem Komfort und naturnahem Wohnen. Der 21. Bezirk, auch bekannt als Floridsdorf, ist bekannt für seine hohe Lebensqualität und zahlreiche Grünflächen. In unmittelbarer Nähe zur Immobilie finden Sie verschiedene Einkaufsmöglichkeiten für den täglichen Bedarf, darunter Supermärkte, Apotheken und kleine Fachgeschäfte. Die ausgezeichnete Anbindung an den öffentlichen Verkehr, mit mehreren Bus- und Straßenbahnlinien sowie der Nähe zu den S-Bahn-Stationen, ermöglicht eine schnelle und unkomplizierte Erreichbarkeit des Stadtzentrums und anderer wichtiger Knotenpunkte Wiens. Für Familien sind Schulen und Kindergärten bequem erreichbar, und Sport- sowie Freizeiteinrichtungen bieten vielfältige Möglichkeiten für eine ausgeglichene Work-Life-Balance. Zusammengefasst bietet diese Immobilie eine perfekte Lage für all jene, die das Beste aus zwei Welten genießen möchten: die ruhige Idylle und die urbane Vielfalt Wiens.Beschreibung der Immobilie
Eckdaten
| Objektnr: | 10916667 |
| Art: | Wohnung - Etage |
| Land: | Österreich |
| Baujahr: | 2014 |
| Gesamtmiete: | 1.299,00 € |
| Kaltmiete (netto): | 944,22 € |
| Kaltmiete: | 1.235,71 € |
| Provision: | provisionsfrei für den Mieter |
| Betriebskosten: | 178,31 € |
| Heizkosten: | 52,74 € |
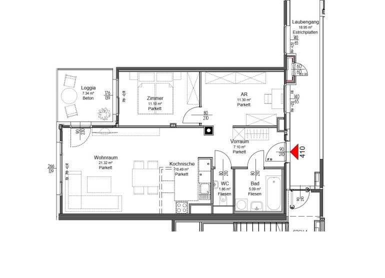
| Wohnfläche: | 68,30 m² |
| Zimmer: | 3 |
| Bäder: | 1 |
| WC: | 1 |
| Heizwärmebedarf: | B 28,25 kWh/m²a |
| fGEE: | B 0,94 |
Ausstattung
Parkett, Fernwärme, Zentralheizung, Einbauküche, Personenaufzug, Südbalkon, Badewanne
Internet und TV
Information zur Internet und TV Versorgung hier
Ihre persönliche Beratung
Christian Spassov
ÖRAG Immobilien Vermittlung GmbH
christian.spassov@oerag.at
0043153473434
