Neuwertige 2 Zimmer mit großem Balkon - Pirchäckerstraße 36 - Top 15

Wohnung - Etage, 8053 Graz

Lage der Immobilie

Das moderne Wohnhaus liegt in der Pirchäckerstraße 36-38 im Bezirk Wetzelsdorf, einem beliebtem Wohnbezirk in Graz. Die Anbindung an das öffentliche Verkehrsnetz ist sehr gut. Einkaufsmöglichkeiten, Schulen und Kindergärten sind in der nahen Umgebung vorhanden und fußläufig erreichbar. Durch die gute Lage und Anbindung ist die Grazer Innenstadt ebenfalls schnell zu erreichen. Naherholungsgebiete sind in der nahen Umgebung vorhanden. Bei Bedarf ist man in kürzester Zeit auf der Autobahn.

Beschreibung der Immobilie

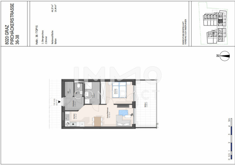
Diese ca. 44,37 m² große Wohnung befindet sich im 1. OG des Hauses Pirchäckerstraße 36-38 in einer modernen, neu errichteten Wohnanlage. Mit der geräumigen Wohnküche und dem Schlafzimmer ist diese Wohnung ein perfektes Zuhause für Singles und Paare. Das helle, freundliche Ambiente und die moderne Ausstattung sorgt dafür, dass Sie sich hier mit Sicherheit wohl fühlen werden! RAUMAUFTEILUNG: Vorraum, offene Wohnküche, Schlafzimmer, Bad, Toilette, Abstellraum, Kellerabteil, Balkon. AUSSTATTUNG : Die Wohnung ist mit hochwertigen Parkettböden im Wohn- und Schlafbereich, sowie modernen Fliesenböden im Sanitärbereich ausgestattet. Das Badezimmer verfügt unter anderem über eine Dusche und einem Waschmaschinenanschluss. Darüber hinaus verfügt die Wohnung über eine exklusive Einbauküche inklusive Elektrogeräte. Die Wohnung wird mittels Fernwärme beheizt. Das Warmwasser wird ebenfalls zentral über Fernwärme aufbereitet. Der Wohnung ist ein Kellerabteil zugeordnet. LAGE: zentrale, schöne Lage in der Pirchäckerstraße 36 HEIZUNG: Die Heizkosten werden direkt vom Wärmelieferanten verrechnet und sind in den Betriebskosten nicht inkludiert! PARKEN: Es besteht die Möglichkeit, Parkplätze ab € 84,00 in der hauseigenen Tiefgarage anzumieten. Der Immobilienmakler erklärt, dass er - entgegen dem in der Immobilienwirtschaft üblichen Geschäftsgebrauch des Doppelmaklers - einseitig nur für den Vermieter tätig ist.

Eckdaten

Objektnr: 126529_60
Art: Wohnung - Etage
Land: Österreich
Baujahr: 2024
Zustand: Neuwertig
Möbliert: Teil
Gesamtmiete: 620,99
Kaltmiete (netto): 479,83 €
Kaltmiete: 527,81 €
Provision: Gemäß Erstauftraggeberprinzip bezahlt der Abgeber die Provision.
Betriebskosten: 84,71 €
Wohnfläche: 44,37 m²
Zimmer: 2
Bäder: 1
WC: 1
Balkone: 1
Keller: 2,00 m²
Heizwärmebedarf:  B  31,40 kWh/m²a
fGEE:  A+  0,68
Immobilie merken Exposé

Ausstattung

Fliesen, Parkettboden, Zentralheizung, Fußbodenheizung, Einbauküche, Personenaufzug, Dusche


Internet und TV

Information zur Internet und TV Versorgung hier


Immobilie anfragen


Ihre persönliche Beratung

IMMOcontract Immobilien Vermittlung GmbH

Jan Sarkantyu

IMMOcontract Immobilien Vermittlung GmbH

E J.Sarkantyu@IMMOcontract.at

T 00436644231913

H 00436644231913

F 004331689080092781