Attraktive Bürofläche- in der Nähe des Grazer Zentrums- zu mieten
Büro / Praxis
- Bürofläche,
8020
Graz
Lage der Immobilie
Der Nikolaiplatz zählt zu den zentralsten und gefragtesten Lagen in Graz. Die unmittelbare Nähe zur Innenstadt sowie zur Mur sorgt für eine ausgezeichnete Erreichbarkeit und ein urbanes Arbeitsumfeld. Die Anbindung an den öffentlichen Verkehr ist hervorragend: Straßenbahn- und Bushaltestellen befinden sich in unmittelbarer Nähe. Auch der Hauptbahnhof Graz ist rasch erreichbar. Zahlreiche Geschäfte des täglichen Bedarfs, Restaurants, Cafés, Banken und Dienstleister befinden sich fußläufig in der Umgebung. Durch die zentrale Lage bietet der Standort sowohl für Mitarbeiter als auch für Kunden und Geschäftspartner höchste Attraktivität.Beschreibung der Immobilie
Eckdaten
| Objektnr: | 109245683 |
| Art: | Büro / Praxis - Bürofläche |
| Land: | Österreich |
| Baujahr: | 2001 |
| Gesamtmiete: | 4.531,59 € |
| Kaltmiete (netto): | 3.031,46 € |
| Kaltmiete: | 3.776,33 € |
| Miete / m²: | 10,50 € |
| Provision: | 3 BMM zzgl. USt. |
| Betriebskosten: | 744,87 € |
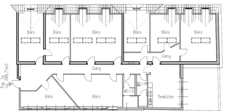
| Bürofläche: | 288,71 m² |
| Heizwärmebedarf: | C 91,49 kWh/m²a |
| fGEE: | C 1,16 |
Internet und TV
Information zur Internet und TV Versorgung hier
Ihre persönliche Beratung
Swjatoslaw Sumann
ÖRAG Immobilien Vermittlung GmbH
swjatoslaw.sumann@oerag.at
004366488962190
