Flexibles Büro auf 154 m² - Seestadt direkte U2 Anbindung

Büro / Praxis - Bürofläche, 1220 Wien

Lage der Immobilie

Seestadt, Essling, direkt gegenüber der U2-Station Seestadt

Beschreibung der Immobilie

BESCHREIBUNG:

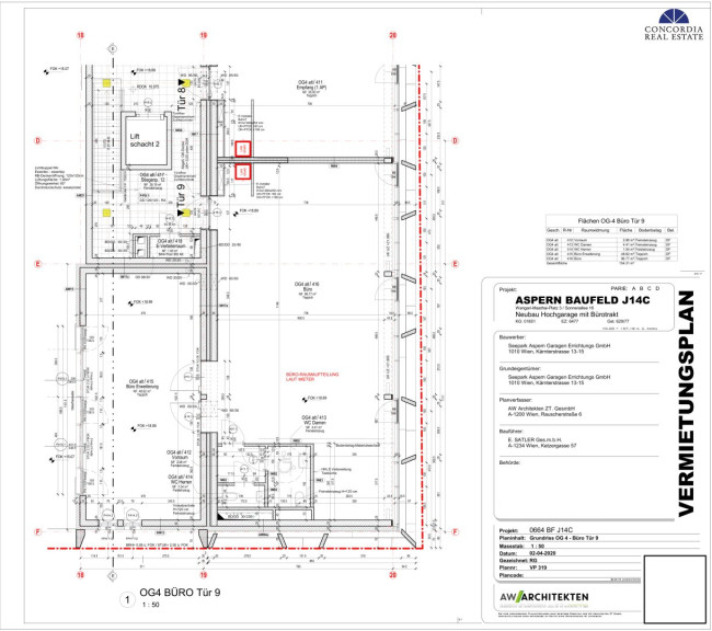
Open Space- Flexibles Büro auf 154 m²
Von der U2-Station Seestadt sind Sie in 1 Minute beim Objekt. 

HIGHLIGHTS:

flexible Bürogrundrisse
innovatives Energie- und Betriebskonzept
redundantes Grundwasser-Wärmepumpensystem für Kälte/Wärme
Photovoltaikanlage im Kombination mit smarten Ladestellen
TQB zertifiziert

BÜROAUSSTATTUNG:

Kühlung mit Be- und Entlüftungsanlage
öffenbare Fenster
Doppelboden mit Bodentanks für die elektrische Versorgung
IT-Verkabelung Cat 7 mit 19"Serverschrank
Teppichfliesen
Beleuchtung
getrennte Sanitärbereiche
Küchenanschlüsse

HINWEIS: Die dargestellten Möblierungsvorschläge dienen der Illustration und wurden mithilfe künstlicher Intelligenz generiert.

Lagerflächen im 1. Untergeschoss vorhanden

PKW-Stellplätze im angrenzenden Parkhaus BOE zur Anmietung (auch Kurzparker) ausreichend vorhanden

2019 VON DER ÖGNB AUSGEZEICHNET!

Österreichische Gesellschaft für nachhaltiges Bauen (ÖGNB) und klimaaktiv Bauen und Sanieren

Wir weisen darauf hin, dass zwischen dem Vermittler und dem zu vermittelnden Dritten ein familiäres oder wirtschaftliches Naheverhältnis besteht.

Infrastruktur / Entfernungen

Gesundheit
Arzt <500m
Apotheke <1.000m
Klinik <500m
Krankenhaus <3.500m

Kinder & Schulen
Schule <500m
Kindergarten <500m
Universität <500m
Höhere Schule <500m

Nahversorgung
Supermarkt <500m
Bäckerei <500m
Einkaufszentrum <4.000m

Sonstige
Geldautomat <2.000m
Bank <500m
Post <500m
Polizei <500m

Verkehr
Bus <500m
U-Bahn <500m
Straßenbahn <1.000m
Bahnhof <500m
Autobahnanschluss <4.000m

Angaben Entfernung Luftlinie / Quelle: OpenStreetMap

Eckdaten

Objektnr: 655
Art: Büro / Praxis - Bürofläche
Land: Österreich
Baujahr: 2020
Alter: Neubau
Kaltmiete (netto): 1.711,13 €
Kaltmiete: 2.038,88 €
Miete / m²: 11,08 €
Provision: 3 Bruttomonatsmieten zzgl. 20% USt.
Betriebskosten: 327,75 €
MwSt Gesamt: 407,78 €
Nutzfläche: 154,43 m²
Bürofläche: 154,43 m²
Heizwärmebedarf:  B  36,45 kWh/m²a
fGEE:  A+  0,59
Immobilie merken Exposé

Ausstattung

Doppelboden, Alternativ, Einbauküche, Personenaufzug, Parkhaus


Internet und TV

Information zur Internet und TV Versorgung hier


Immobilie anfragen


Ihre persönliche Beratung

Concordia Real Estate Immobilienvermittlungs Ges.m.b.H

Sandra Huber

Concordia Real Estate Immobilienvermittlungs Ges.m.b.H

E office@concordiareal.at

T +4315331981-341


Concordia Real Estate Immobilienvermittlungs Ges.m.b.H - Immobilen Makler

Kärntner Straße 13-15, 1010 Wien

Tel.: +43 (0)1 533 19 81

https://concordiareal.at