Lage der Immobilie
Die Lage am Fuße des Wilhelminenbergs zählt zu den besonders begehrten Wohngegenden Wiens. Umgeben von viel Grün und gelegen in einer verkehrsberuhigten Sackgasse, bietet das Projekt ein außergewöhnlich ruhiges und angenehmes Wohnklima. Der nahegelegene Wilhelminenberg sowie zahlreiche Grün- und Naherholungsflächen laden zu Spaziergängen, sportlichen Aktivitäten und erholsamen Auszeiten im Alltag ein. Gleichzeitig ist die öffentliche Anbindung hervorragend, wodurch eine schnelle Erreichbarkeit der Wiener Innenstadt und wichtiger Knotenpunkte gewährleistet ist.Beschreibung der Immobilie
URBANES WOHNEN TRIFFT AUF GRÜNE LEBENSQUALITÄT
Am Fuße des Wilhelminenbergs entsteht ein hochwertiges Wohnprojekt, das urbanen Komfort mit naturnaher Lebensqualität verbindet. Die moderne, zeitlos klare Architektur legt den Fokus auf Großzügigkeit, Licht und ein harmonisches Wohngefühl und fügt sich sensibel in die gewachsene Umgebung ein. Eine ruhige, abgestimmte Farb- und Materialwahl unterstreicht den hochwertigen Charakter des Hauses.
Das Wohngebäude umfasst vier exklusive Wohneinheiten, wobei sich jede Wohnung über ein eigenes Stockwerk erstreckt und dadurch ein hohes Maß an Privatsphäre bietet. Die Dachgeschosswohnung ist als großzügige Maisonette ausgeführt und überzeugt mit beeindruckenden Raumhöhen, mehreren Ebenen sowie weitläufigen Terrassen mit Ausblick über Wien.
Die moderne Bauweise in Kombination mit einer energieeffizienten Luft-Wärmepumpe, Fußbodenheizung sowie Deckenkühlung sorgt für zeitgemäßen Wohnkomfort und nachhaltige Energieeffizienz. Großzügige Fensterflächen mit hochwertiger Holz-Aluminium-Ausführung, außenliegendem Sonnenschutz und Dreifachverglasung schaffen helle, angenehme Wohnräume.
Private Freiräume in Form von Balkonen, Terrassen und einem Eigengarten bei der Gartenwohnung erweitern den Wohnraum ins Freie und ermöglichen aus jeder Wohnung einen angenehmen Blick ins Grüne. Eine barrierefreie Erschließung, Lift, Tiefgarage sowie praktische Allgemeinräume runden das durchdachte Gesamtkonzept ab.
Eine Tiefgarage ist im Haus vorhanden; für jede Wohnung ist ein Stellplatz vorgesehen, der optional gegen Aufpreis erworben werden kann.
HIGHLIGHTS
-
Vier exklusive Wohnungen, jeweils ein Stockwerk pro Einheit
-
Dachgeschoss-Maisonette über mehrere Ebenen mit Terrassen und Weitblick
-
Private Außenflächen für jede Wohnung (Garten, Balkon oder Terrasse)
-
Moderne, energieeffiziente Haustechnik mit Luft-Wärmepumpe, Fußbodenheizung und Deckenkühlung
-
Hochwertige Ausstattung mit Eichenparkett, Feinsteinzeug, Markenarmaturen und Raffstores
-
Holz-Aluminium-Fenster mit Dreifachverglasung und großzügigen Fensterflächen
-
Barrierefreier Zugang, Lift, Tiefgarage, großzügige Lagermöglichkeiten
-
Ruhige Lage in grüner Umgebung am Fuße des Wilhelminenbergs
GROSSZÜGIGE FAMILIENWOHNUNG MIT BALKON
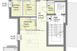
Diese offen gestaltete 4-Zimmer-Wohnung erstreckt sich über die gesamte Ebene und bietet dadurch ein hohes Maß an Privatsphäre sowie ein besonders angenehmes Wohngefühl. Der offen gestaltete Wohnbereich bildet den zentralen Mittelpunkt der Wohnung und überzeugt durch seine Großzügigkeit und klare Raumstruktur.
Große Fensterflächen sorgen für eine helle, freundliche Atmosphäre und führen direkt auf den Balkon, der den Wohnraum ins Freie erweitert und einen ruhigen Platz für entspannte Stunden im Alltag bietet.
Die durchdachte Raumaufteilung mit gut proportionierten Zimmern ermöglicht vielfältige Nutzungsmöglichkeiten und eignet sich ideal für Familien, Paare oder anspruchsvolle Eigennutzer, die Wert auf Komfort, Ruhe und hochwertige Wohnqualität legen.
Raumaufteilung:
-
Vorraum
-
Großzügige Wohnküche mit Zugang zum Balkon
-
Drei Schlafzimmer mit angenehmen Raumproportionen
-
Badezimmer
-
Separates WC
-
Wirtschaftsraum
Flächen:
-
Wohnfläche ca. 114 m²
-
Balkon ca. 9,5m²
DECUS Immobilien GmbH – Wir beleben Räume
Für weitere Informationen und Besichtigungen steht Ihnen gerne Herr Nikolaus Karigl unter der Mobilnummer +43 660 45 434 59und per E-Mail unter karigl@decus.at persönlich zur Verfügung.
www.decus.at | office@decus.at
Wichtige Informationen
Bitte beachten Sie, dass per 13.06.2014 eine neue Richtlinie für Fernabsatz- und Auswärtsgeschäfte in Kraft getreten ist.
Ab 1.4.2024 entfallen die Grundbuchs- und Pfandrechtseintragungsgebühren vorübergehend für Eigenheime bis zu einer Bemessungsgrundlage von EUR 500.000,-. Voraussetzung ist das dringende Wohnbedürfnis, ausgenommen davon sind vererbte oder geschenkte Immobilien. Die Befreiung ist jedoch für den Einzelfall zu prüfen, DECUS Immobilien übernimmt hierzu keine Haftung.
Ab 01.07.2023 gilt das Erstauftraggeber-Prinzip bei Wohnungsmietverträgen, ausgenommen davon sind Dienst-/Natural-/Werkswohnungen. Wir dürfen gem. § 17 Maklergesetz darauf hinweisen, dass wir auf die Doppelmaklertätigkeit gem. § 5 Maklergesetz bei Wohnungsmietverträgen verzichten und nur noch einseitig tätig sind (bei den restlichen Vermittlungsarten nicht) und ein wirtschaftliches Naheverhältnis zu unseren Auftraggebern besteht.
Im Falle eines Abschlusses mit Ihnen oder einem von Ihnen namhaft gemachten Dritten bzw. bei beidseitiger Willensübereinstimmung beträgt unser Honorar (lt. Honorarverordnung für Immobilienmakler) 2 Bruttomonatsmieten (BMM) bei Dienst-/Natural-/Werkwohnungen sowie Suchaufträgen, 3 BMM bei Gewerbe-, PKW-, Keller- und Lagermietverträgen sowie bei Kaufobjekten 3 % des Kaufpreises, zuzüglich der gesetzlichen Umsatzsteuer.
Dieses Objekt wird Ihnen unverbindlich und freibleibend angeboten. Oben angeführte Angaben basieren auf Informationen und Unterlagen des Eigentümers und sind unsererseits ohne Gewähr.
Nähere Informationen sowie unsere AGBs und die Nebenkostenübersichtsblatt finden Sie auf unserer Homepage www.decus.at unter "Service" - "Rechtliches zum FAGG" sowie im Anhang der zugesendeten Objekt-Exposés!
Infrastruktur / Entfernungen
Gesundheit
Arzt <500m
Apotheke <500m
Klinik <1.000m
Krankenhaus <500m
Kinder & Schulen
Schule <500m
Kindergarten <500m
Universität <1.500m
Höhere Schule <2.000m
Nahversorgung
Supermarkt <500m
Bäckerei <500m
Einkaufszentrum <500m
Sonstige
Geldautomat <500m
Bank <500m
Post <500m
Polizei <500m
Verkehr
Bus <500m
U-Bahn <1.000m
Straßenbahn <500m
Bahnhof <1.000m
Autobahnanschluss <5.500m
Angaben Entfernung Luftlinie / Quelle: OpenStreetMap
Eckdaten
| Kaufpreis: | 879.000,00 € |
| Fläche: | 113,65 m² |
| Zimmer: | 4 |
Basisdaten zur Immobilie
| Objektnr: | 1151904 |
| Art: | Wohnung |
| Land: | Österreich |
| Zustand: | Erstbezug |
| Alter: | Neubau |
| Kaufpreis: | 879.000,00 € |
| Provision: | Provision bezahlt der Abgeber. |
| Wohnfläche: | 113,65 m² |
| Zimmer: | 4 |
| Bäder: | 2 |
| WC: | 2 |
| Balkone: | 1 |
| Heizwärmebedarf: | B 40,00 kWh/m²a |
| fGEE: | A 0,74 |
Ausstattung
Fußbodenheizung, Westbalkon
Internet und TV
Information zur Internet und TV Versorgung hier
Ihre persönliche Beratung
Nikolaus Karigl
DECUS Immobilien GmbH
karigl@decus.at
+43 660 45 434 59
+43 660 45 434 59
F +43 1 35 600 10
