Wohnen mit Garten: Ihr 2-Zimmer-Juwel wartet!
Wohnung
- Erdgeschoß,
1130
Wien
Lage der Immobilie
Die Auhofstraße 258 vereint exklusive Wohnqualität mit einer Lage, die ihresgleichen sucht. Eingebettet in die grüne Idylle des traditionsreichen Bezirks Hietzing, einer der prestigeträchtigsten Adressen Wiens, genießen Sie hier die perfekte Balance aus Ruhe, Natur und urbaner Nähe. Nur wenige Schritte entfernt sorgen die U4-Station Hütteldorf, diverse S-Bahn- und Buslinien für eine schnelle, bequeme Anbindung ins Wiener Stadtzentrum. Zugleich eröffnet sich direkt vor der Haustür ein reichhaltiges Angebot an erstklassigen Einkaufsmöglichkeiten, feiner Gastronomie, renommierten Bildungseinrichtungen sowie umfassender medizinischer Versorgung. Für aktive Erholung und entspannte Stunden im Freien bietet die Umgebung eine Vielzahl an Möglichkeiten – vom malerischen Wiental-Radweg über gepflegte Parks bis hin zu den weitläufigen Grünflächen des Wienerwalds. Hier wohnen Sie dort, wo andere Erholung suchen – inmitten von Natur und dennoch in bester Verbindung zur pulsierenden Metropole Wien.Beschreibung der Immobilie
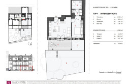
Diese charmante Zwei-Zimmer-Gartenwohnung im Gartengeschoss des exklusiven Projekt "Nr. 258 Auhofstraße" bietet auf ca. 41,8 m² Wohnfläche eine gelungene Kombination aus historischem Ambiente und modernem Wohnkomfort.
Der offene Wohn- und Essbereich mit direktem Zugang zur großzügigen Terrasse schafft ein helles, einladendes Raumgefühl. Das Schlafzimmer ist ruhig gelegen und bietet direkten Blick ins Grüne. Ein praktischer Abstellraum sowie ein stilvolles Badezimmer mit hochwertiger Sanitärausstattung runden den Grundriss ab.
Ein besonderes Highlight sind der 50,73 m² große Gartenanteil sowie eine 12,57 m² große Terrasse – perfekt für entspannte Stunden im Freien und private Rückzugsmomente.
Der Vermittler ist als Doppelmakler tätig.
Infrastruktur / Entfernungen
Gesundheit
Arzt <500m
Apotheke <1.000m
Klinik <3.000m
Krankenhaus <1.000m
Kinder & Schulen
Schule <500m
Kindergarten <500m
Universität <2.000m
Höhere Schule <5.000m
Nahversorgung
Supermarkt <500m
Bäckerei <1.000m
Einkaufszentrum <3.000m
Sonstige
Geldautomat <500m
Bank <500m
Post <2.000m
Polizei <1.000m
Verkehr
Bus <500m
U-Bahn <500m
Straßenbahn <500m
Bahnhof <1.000m
Autobahnanschluss <3.000m
Angaben Entfernung Luftlinie / Quelle: OpenStreetMap
Eckdaten
| Kaufpreis: | 388.000,00 € |
| Fläche: | 41,80 m² |
| Zimmer: | 2 |
Basisdaten zur Immobilie
| Objektnr: | 1939/162405 |
| Art: | Wohnung - Erdgeschoß |
| Land: | Österreich |
| Baujahr: | 2025 |
| Zustand: | Erstbezug |
| Kaufpreis: | 388.000,00 € |
| Provision: | 13.968,00 € inkl. 20% USt. |
| Wohnfläche: | 41,80 m² |
| Nutzfläche: | 41,80 m² |
| Gesamtfläche: | 105,10 m² |
| Zimmer: | 2 |
| Bäder: | 1 |
| Terrassen: | 1 |
| Garten: | 50,73 m² |
| Heizwärmebedarf: | B 40,20 kWh/m²a |
| fGEE: | A 0,82 |
Ausstattung
Parkett, Fußbodenheizung, Zentralheizung, Personenaufzug, Ostbalkon, Dusche, Kabel/Satelliten-TV
Internet und TV
Information zur Internet und TV Versorgung hier
Ihre persönliche Beratung
Julian Pelzmann
IMMOcontract Immobilien Vermittlung GmbH
J.Pelzmann@IMMOcontract.at
+43 664 6000 8409
+43 664 6000 8409
